MCarré Conseil est une agence spécialiste de l'immobilier d’entreprise du sud de l’Île-de-France (en Essonne et dans le sud de la Seine-et-Marne et du Val-De-Marne). Elle vous accompagne à chaque é ...
En savoir plus

508 m² divisible dès 230 m²
HT HC
Location bureau - 508 m²
Tigery (91250)
Dernière mise à jour : Il y a 1 mois
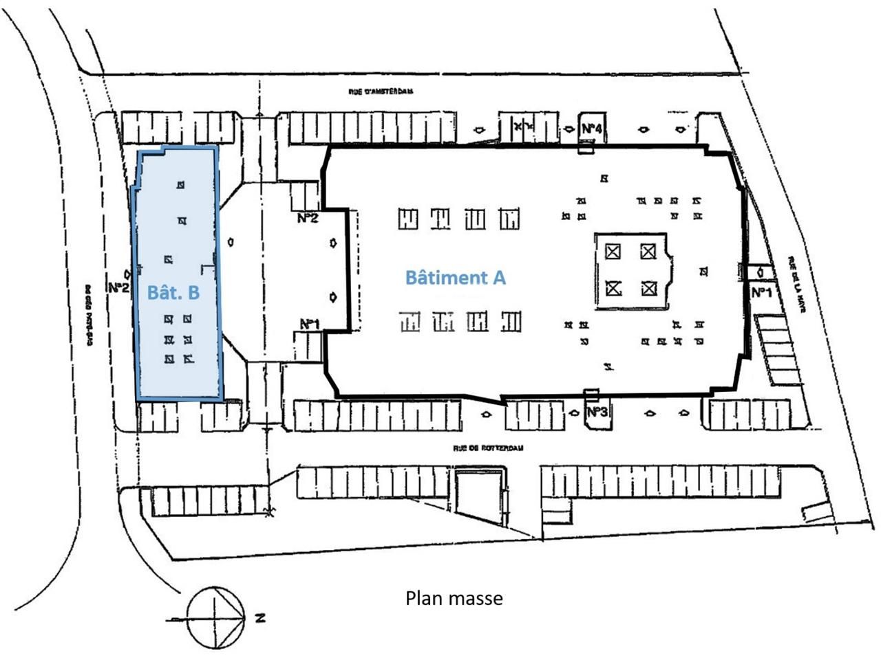
A proximité de la Francilienne, au sein d'un ensemble immobilier clos composé de 2 bâtiments en R+1, nous vous proposons à la location des surfaces de bureaux.
Impôt Foncier : 17,4 €/HT/m²/an
Régime Fiscal : TVA
Dépôt de garantie : 3 mois de loyer HT/HC
Honoraires : 15% HT du loyer annuel HT HC
Taxe Bureau : 2,7 €/m²/an
Information sur le Bail :
Taxe stationnement : 3,94 euros HT/m²/an
Prestations :
Accessibilité:
Autoroute Autoroute A5
Route Nationale 104 Francilienne
Route Nationale 6
RER RER D2 Moissy Cramayel
Les informations sur les risques auxquels ce bien est exposé sont disponibles sur le site Géorisques : www.georisques.gouv.fr
| Étage | Type | Surfaces | Dispo | Loyer | Charges | Type de bailRév. annuelle |
|---|---|---|---|---|---|---|
| 1 | Bureaux | 278 | Immédiate | 130 m²/an HT HC | 17,35 HT/m²/an | 3/6/9 ansIndice ILAT |
| 1 | Bureaux | 230 | Immédiate | 130 m²/an HT HC | 17,35 HT/m²/an | 3/6/9 ansIndice ILAT |
Impôt Foncier : 17,4 €/HT/m²/an
Régime Fiscal : TVA
Dépôt de garantie : 3 mois de loyer HT/HC
Honoraires : 15% HT du loyer annuel HT HC
Taxe Bureau : 2,7 €/m²/an
Information sur le Bail :
Taxe stationnement : 3,94 euros HT/m²/an
Prestations :
- Chauffage par convecteurs électriques
- Faux-plafonds avec luminaires encastrés
- 1 parking VL/50 m²
- Année de construction : 1991 - Rénovation : 2019
Accessibilité:
Autoroute Autoroute A5
Route Nationale 104 Francilienne
Route Nationale 6
RER RER D2 Moissy Cramayel
Les informations sur les risques auxquels ce bien est exposé sont disponibles sur le site Géorisques : www.georisques.gouv.fr
Voir plus
Afficher les consommations énergétiques
Localisation et transport aux alentours
Favoris
Exporter
Appeler
Contacter
Signaler cette annonce



