L’agence CBRE Nice-Sophia Antipolis conseille et accompagne les chefs d’entreprise dans leurs projets immobiliers quels que soient leur taille et leur secteur d’activité. Spécialistes de la transac ...
En savoir plus

5 763 m² divisible dès 478 m²
HT HC
Location bureau - 5763 m²
Sophia Antipolis (06560)
Dernière mise à jour : Il y a 4 mois
BUREAUX NEUFS A LOUER - SOPHIA ANTIPOLIS
Idéalement situé à Sophia Antipolis (06560), quartier Les Lucioles, au sein d'un immeuble en R+3 en cours de restructuration complète, CBRE vous propose à la location des plateaux de bureaux entièrement rénovés, aménagés en open-space, climatisés, bénéficiant d'un patio central paysagé, de terrasses et de 240 places de parking. Disponibilité : 1T2027
Nombreux services de proximité à moins de 5 mn : centre de vie de St Philippe : bureau de poste, restaurants, snacks, centre médical, pharmacie, banque, tabac/presse, supermarché, transports en commun
Positionnez votre entreprise au centre de l'innovation dans les secteurs clés de la technologie, de la santé, de l'environnement et des smart cities. Sophia Antipolis est un catalyseur de croissance, offrant un accès privilégié aux ressources, aux financements et aux talents nécessaires pour réussir. Rejoignez un écosystème dynamique, stimulant et tourné vers l'avenir.
Envie de découvrir ce bien ? Contactez-nous dès maintenant pour organiser une visite personnalisée et obtenir toutes les informations essentielles à la réussite de votre projet immobilier.
Autoroute A8 à 10 mn
Aéroport international de Nice à 20 mn
Bus : réseau interurbain ENVIBUS & ZOU
Gare TGV/TER Antibes à 20 mn
Régime Fiscal : T.V.A.
Dépôt de garantie : 3 mois de loyer HT/HC
Paiement Loyer : trimestriel
Honoraires : 15% HT du loyer annuel HT/HC à la charge du preneur
Prestations :
Accessibilité:
Aeroport International de Nice à 20 mn
Autoroute A8 à 10 mn (sortie 44)
Bus réseau interurbain
SNCF TGV/TER Antibes à 20 mn
Les informations sur les risques auxquels ce bien est exposé sont disponibles sur le site Géorisques : www.georisques.gouv.fr
Idéalement situé à Sophia Antipolis (06560), quartier Les Lucioles, au sein d'un immeuble en R+3 en cours de restructuration complète, CBRE vous propose à la location des plateaux de bureaux entièrement rénovés, aménagés en open-space, climatisés, bénéficiant d'un patio central paysagé, de terrasses et de 240 places de parking. Disponibilité : 1T2027
Nombreux services de proximité à moins de 5 mn : centre de vie de St Philippe : bureau de poste, restaurants, snacks, centre médical, pharmacie, banque, tabac/presse, supermarché, transports en commun
Positionnez votre entreprise au centre de l'innovation dans les secteurs clés de la technologie, de la santé, de l'environnement et des smart cities. Sophia Antipolis est un catalyseur de croissance, offrant un accès privilégié aux ressources, aux financements et aux talents nécessaires pour réussir. Rejoignez un écosystème dynamique, stimulant et tourné vers l'avenir.
Envie de découvrir ce bien ? Contactez-nous dès maintenant pour organiser une visite personnalisée et obtenir toutes les informations essentielles à la réussite de votre projet immobilier.
Autoroute A8 à 10 mn
Aéroport international de Nice à 20 mn
Bus : réseau interurbain ENVIBUS & ZOU
Gare TGV/TER Antibes à 20 mn
| Étage | Type | Surfaces | Dispo | Loyer | Charges | Type de bailRév. annuelle |
|---|---|---|---|---|---|---|
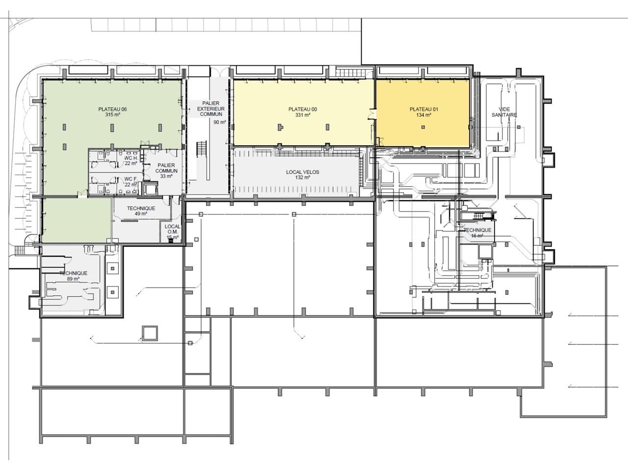
| RDC | Bureaux | 646 | Mars 2027 | 240 m²/an HT HC | 6-9 ansIndice ILAT | |
| 1 | Bureaux | 2419 | Mars 2027 | 240 m²/an HT HC | 6-9 ansIndice ILAT | |
| 2 | Bureaux | 2220 | Mars 2027 | 240 m²/an HT HC | 6-9 ansIndice ILAT | |
| 3 | Bureaux | 478 | Mars 2027 | 245 m²/an HT HC | 6-9 ansIndice ILAT |
Régime Fiscal : T.V.A.
Dépôt de garantie : 3 mois de loyer HT/HC
Paiement Loyer : trimestriel
Honoraires : 15% HT du loyer annuel HT/HC à la charge du preneur
Prestations :
- Immeuble indépendant d'une surface totale d'environ 5 763 m² entièrement restructuré
- Curage complet et désamiantage dans le cadre d'un nouveau permis : climatisation/chauffage, électricité, éclairage.
- L'ensemble des revêtements et aménagements seront neufs
- Création d'un patio central paysagé et Rooftop accessible
- Parkings : 240 places dont 41 intérieurs
- Immeuble indépendant
- Surface RDC : 646 m²
Accessibilité:
Aeroport International de Nice à 20 mn
Autoroute A8 à 10 mn (sortie 44)
Bus réseau interurbain
SNCF TGV/TER Antibes à 20 mn
Les informations sur les risques auxquels ce bien est exposé sont disponibles sur le site Géorisques : www.georisques.gouv.fr
Voir plus
Afficher les consommations énergétiques
Favoris
Exporter
Appeler
Contacter
Signaler cette annonce
