Leader mondial des services dédiés à l'immobilier d'entreprise, Cushman & Wakefield accompagne ses clients dans la transformation de leurs modes de travail, de consommation et de vie. Nos 43 000 co ...
En savoir plus

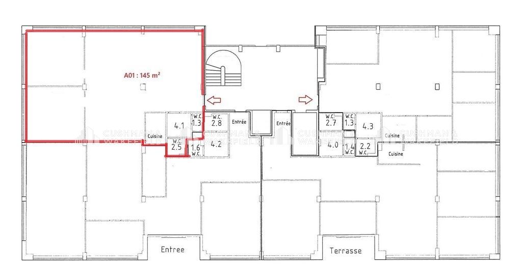
632 m² divisible dès 145 m²
HT HC
Location bureau - 632 m²
Schiltigheim (67300)
Dernière mise à jour : Il y a 20 jours
Lots de bureaux, disponibles à la location, au sein d'un immeuble récent édifié sur 3 niveaux, bénéficiant du label THPE, au sein de l''Espace Européen de l''Entreprise à Schiltigheim. Nombreux parkings, ascenseur et fibre dans l'immeuble. Lot de bureaux, disponible à la location, au sein d'un immeuble récent édifié sur 3 niveaux, bénéficiant du label THPE. Nombreux parkings, ascenseur et fibre dans l'immeuble. Ces locaux sont idéalement situés au sein de l''Espace Européen de l''Entreprise (EEE ou E3), qui constitue un des pôles tertiaires majeurs de l''agglomération tant par sa taille que par sa situation géographique. L'Espace Européen de l'Entreprise (EEE) à Schiltigheim est une zone d'activités tertiaires et d'innovation s'étendant sur 120 hectares. Il accueille environ 550 entreprises, 9 000 salariés et 1 500 étudiants. Situé à proximité des autoroutes A4 et A350, l'EEE est desservi par le Bus à Haut Niveau de Service (BHNS) G, reliant la gare de Strasbourg en 9 minutes. Le site offre un cadre de travail agréable avec 25 % d'espaces verts, un lac de 7 hectares et des infrastructures telles que des pistes cyclables et des chemins piétons arborés. Des services variés, dont des restaurants, hôtels, crèches et installations sportives, contribuent à en faire un véritable lieu de vie. N'hésitez, à contacter le département "Bureaux'" de Cushman et Wakfield, pour découvrir ces locaux de bureaux qui sont à louer sur l'Espace Européen . Sol : moquette ou PVC . Plinthes avec courants faibles et forts . Revêtement mural en toile de verre peinte . Plafonds en dalles minérales . Luminaires en basse tension, équipés de détecteurs . Chauffage/climatisation réversible . Sanitaires privatifs Cloisonnement : Lot A01 : 2 bureaux - 1 open space - 1 espace kitchenette Lot C03-04 : 1 accueil - 8 bureaux - 1 open-space - 1 petite salle de réunion - 1 cuisine - terrasse Lot C01 - : à confirmer Abri à vélos Parkings extérieurs : 1 parking pour 16 m² Bus : lignes 70 et G BHNS (bus à haut niveau de service reliant la gare TGV en 14 min) arrêt Vienne Accès routier : A4 sortie Schiltigheim
Voir plus
Afficher les consommations énergétiques
Surfaces divisibles : 3
| Surface | LoyerHT/HC/m²/an | Étage / Batiment |
| 337 m² | 140 € | 2 |
| 145 m² | 140 € | 0 |
| 150 m² | 140 € | 2 |
Localisation et transport aux alentours
Favoris
Exporter
Appeler
Contacter
Signaler cette annonce
