L’agence CBRE Lyon conseille et accompagne les chefs d’entreprise dans leurs projets immobiliers quels que soient leur taille et leur secteur d’activité. Spécialistes de la transaction de bureaux, ...
En savoir plus

1 307 m² divisible dès 152 m²
HT HC
Location bureau - 1307 m²
Sainte-Foy-lès-Lyon (69110)
Dernière mise à jour : Il y a 1 an
Immeuble de bureaux neuf en structure bois et carbone, à basse consommation. Disponible à la location au sein du parc tertiaire de Ste Foy les Lyon.
Le pôle économique Ouest de la Métropole de Lyon s'étend sur 14 communes. Ce territoire offrant un cadre de vie et de travail de qualité, à proximité des services et commerces, a conquis de nombreuses entreprises dans les domaines de l'alimentaire, l'ingénierie, la bio technologie, la chimie et les établissements d'enseignements supérieurs. Le site est desservi par des axes de communication majeurs tels que l'autoroute A6, A89 et le Périphérique Nord. Les transports en commun permettent également de rejoindre les différents pôles d'activités grâce à de nombreuses lignes de bus depuis l'arrêt de métro Gare de Vaise.
Régime Fiscal : T.V.A.
Dépôt de garantie : 3 mois de loyer HT/HC
Paiement Loyer : trimestriel
Honoraires : 20% HT du loyer annuel HT/HC à la charge du preneur
Information sur le Bail :
Loyer terrasse : 70 eurosHT/m2 Loyer parking extérieur: 400 euros HT/unité/an Loyer parking en sous-sol: 600 euros HT/unité/an Charge: 8 à 10 euros HT/m²/an
Prestations :
Accessibilité:
Bus C19 à 5 min à pied
Route D342 à 3 min
Les informations sur les risques auxquels ce bien est exposé sont disponibles sur le site Géorisques : www.georisques.gouv.fr
Le pôle économique Ouest de la Métropole de Lyon s'étend sur 14 communes. Ce territoire offrant un cadre de vie et de travail de qualité, à proximité des services et commerces, a conquis de nombreuses entreprises dans les domaines de l'alimentaire, l'ingénierie, la bio technologie, la chimie et les établissements d'enseignements supérieurs. Le site est desservi par des axes de communication majeurs tels que l'autoroute A6, A89 et le Périphérique Nord. Les transports en commun permettent également de rejoindre les différents pôles d'activités grâce à de nombreuses lignes de bus depuis l'arrêt de métro Gare de Vaise.
| Étage | Type | Surfaces | Dispo | Loyer | Charges | Type de bailRév. annuelle |
|---|---|---|---|---|---|---|
| 2 | Bureaux | 230,18 | Immédiate | 165 m²/an HT HC | 35 HT/m²/an | 3-6-9 ansIndice ILAT |
| 2 | Bureaux | 203,31 | Immédiate | 165 m²/an HT HC | 35 HT/m²/an | 3-6-9 ansIndice ILAT |
| 1 | Bureaux | 267,75 | Immédiate | 165 m²/an HT HC | 35 HT/m²/an | 3-6-9 ansIndice ILAT |
| 1 | Bureaux | 204,15 | Immédiate | 165 m²/an HT HC | 35 HT/m²/an | 3-6-9 ansIndice ILAT |
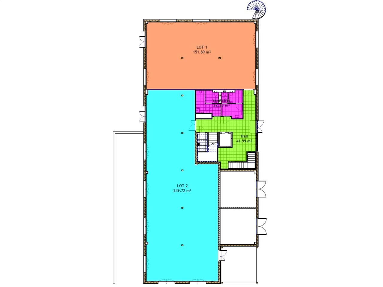
| RDC | Bureaux | 249,72 | Immédiate | 165 m²/an HT HC | 35 HT/m²/an | 3-6-9 ansIndice ILAT |
| RDC | Bureaux | 151,89 | Immédiate | 165 m²/an HT HC | 35 HT/m²/an | 3-6-9 ansIndice ILAT |
Régime Fiscal : T.V.A.
Dépôt de garantie : 3 mois de loyer HT/HC
Paiement Loyer : trimestriel
Honoraires : 20% HT du loyer annuel HT/HC à la charge du preneur
Information sur le Bail :
Loyer terrasse : 70 eurosHT/m2 Loyer parking extérieur: 400 euros HT/unité/an Loyer parking en sous-sol: 600 euros HT/unité/an Charge: 8 à 10 euros HT/m²/an
Prestations :
- Bâtiment bois, sol béton bas carbone
- Surfaces utiles brutes
- Terrasse ou balcon pouvant aller jusqu'à 28m²
- Parkings en sous sol et en extérieur (23 places au total)
- Local vélo
- 1 borne double électrique pour véhicule
- Point eau kitchenette
- Surface RDC : 401,61 m²
Accessibilité:
Bus C19 à 5 min à pied
Route D342 à 3 min
Les informations sur les risques auxquels ce bien est exposé sont disponibles sur le site Géorisques : www.georisques.gouv.fr
Voir plus
Afficher les consommations énergétiques
Favoris
Exporter
Appeler
Contacter
Signaler cette annonce










