Conseil en immobilier d'entreprise, Cushman & Wakefield est un acteur incontournable au rayonnement international. Cushman & Wakefield offre des solutions dans toutes les étapes que comporte un p ...
En savoir plus



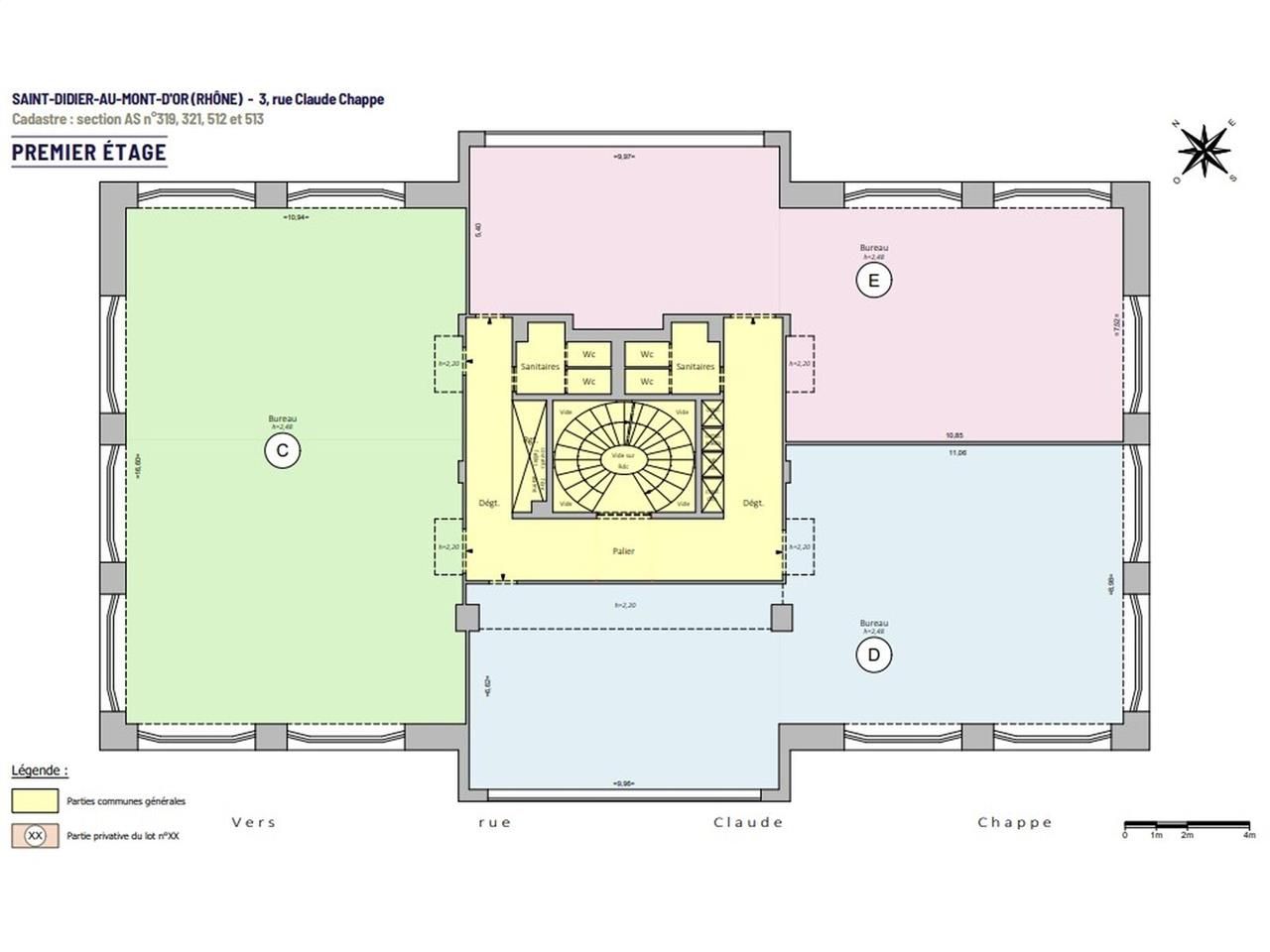
1 593 m² divisible dès 159 m²
HT HC
PARC D'AFFAIRES DE CRECY - Location bureau - 1593 m²
Saint-Didier-au-Mont-d'Or (69370)
Dernière mise à jour : Il y a 3 mois
PARC D''AFFAIRES DE CRECY
Immeuble PARC D'AFFAIRES DE CRECY
Cushman & Wakefield propose à la location ou à la vente des bureaux situés au Parc Crécy, rue Claude Chappe à Saint-Didier-au-Mont-d'Or. Cet immeuble entièrement rénové développe une surface totale de 1 593 m², divisible à partir de 159 m², offrant une grande souplesse d'aménagement. Les plateaux, lumineux grâce à de larges ouvertures sur un environnement paysager calme et verdoyant, sont proposés nus ou cloisonnés selon les besoins. Un plateau clé en main de 270 m², entièrement cloisonné et prêt à l'emploi, est disponible au 2e étage. Les surfaces permettent d'accueillir des configurations en open space ou en bureaux cloisonnés, adaptées aux PME comme aux grandes entreprises. Les parties communes modernisées assurent un cadre de travail confortable et professionnel. Plusieurs places de stationnement extérieures complètent ce bien et facilitent l'accessibilité des occupants et visiteurs. L'emplacement offre un accès rapide aux axes routiers et aux transports en commun environnants et services.
Impôt Foncier : 14 €//m²/an(OM incluse)
Régime Fiscal : T.V.A.
Dépôt de garantie : 3 mois de loyer HT/HC
Paiement Loyer : Trimestriel
Honoraires : 15 % HT du loyer annuel HT/HC à la charge du preneur.
Prestations :
Accessibilité:
Métro Gare de Vaise (ligne D)
Bus Lignes 23-84
SNCF TER de Vaise à 10 mn
Accès routier A6
Les informations sur les risques auxquels ce bien est exposé sont disponibles sur le site Géorisques : www.georisques.gouv.fr
Immeuble PARC D'AFFAIRES DE CRECY
Cushman & Wakefield propose à la location ou à la vente des bureaux situés au Parc Crécy, rue Claude Chappe à Saint-Didier-au-Mont-d'Or. Cet immeuble entièrement rénové développe une surface totale de 1 593 m², divisible à partir de 159 m², offrant une grande souplesse d'aménagement. Les plateaux, lumineux grâce à de larges ouvertures sur un environnement paysager calme et verdoyant, sont proposés nus ou cloisonnés selon les besoins. Un plateau clé en main de 270 m², entièrement cloisonné et prêt à l'emploi, est disponible au 2e étage. Les surfaces permettent d'accueillir des configurations en open space ou en bureaux cloisonnés, adaptées aux PME comme aux grandes entreprises. Les parties communes modernisées assurent un cadre de travail confortable et professionnel. Plusieurs places de stationnement extérieures complètent ce bien et facilitent l'accessibilité des occupants et visiteurs. L'emplacement offre un accès rapide aux axes routiers et aux transports en commun environnants et services.
| Étage | Type | Surfaces | Dispo | Loyer | Charges | Type de bailRév. annuelle |
|---|---|---|---|---|---|---|
| 2 | Bureaux | 279 | 140 HT/HC/m²/an | 39 HT/m²/an | 3-6-9 ansSur l'indice ILAT | |
| 2 | Bureaux | 278 | 140 HT/HC/m²/an | 39 HT/m²/an | 3-6-9 ansSur l'indice ILAT | |
| 1 | Bureaux | 208 | 140 HT/HC/m²/an | 39 HT/m²/an | 3-6-9 ansSur l'indice ILAT | |
| 1 | Bureaux | 190 | 140 HT/HC/m²/an | 39 HT/m²/an | 3-6-9 ansSur l'indice ILAT | |
| 1 | Bureaux | 159 | 140 HT/HC/m²/an | 39 HT/m²/an | 3-6-9 ansSur l'indice ILAT | |
| RdC | Bureaux | 283 | 140 HT/HC/m²/an | 39 HT/m²/an | 3-6-9 ansSur l'indice ILAT | |
| RdC | Bureaux | 196 | 140 HT/HC/m²/an | 39 HT/m²/an | 3-6-9 ansSur l'indice ILAT | |
| pkg Ext | Parkings | 145 HT/HC/place/an | 3-6-9 ansSur l'indice ILAT |
Impôt Foncier : 14 €//m²/an(OM incluse)
Régime Fiscal : T.V.A.
Dépôt de garantie : 3 mois de loyer HT/HC
Paiement Loyer : Trimestriel
Honoraires : 15 % HT du loyer annuel HT/HC à la charge du preneur.
Prestations :
- 2 entrées palières
- Stores
- Fibre optique
- Sanitaires : Parties communes
- Plateau bureaux neuf
- Surface divisibles
- Luminaires LED
- Goulottes périphériques
- Huisseries neuves
- Moquette neuve
- Rafraichissement des PC
- Air rafraichi collectif réversibles
- Surface RDC : 479 m²
Accessibilité:
Métro Gare de Vaise (ligne D)
Bus Lignes 23-84
SNCF TER de Vaise à 10 mn
Accès routier A6
Les informations sur les risques auxquels ce bien est exposé sont disponibles sur le site Géorisques : www.georisques.gouv.fr
3 Parking(s) extérieur(s) 7 Parking(s) extérieur(s)nota parking ICI TODO
Voir plus
Afficher les consommations énergétiques
Localisation et transport aux alentours
Favoris
Exporter
Appeler
Contacter
Signaler cette annonce







