Avec près de 80 implantations en France, Arthur Loyd est le premier Réseau National de Conseil en Immobilier d’Entreprise. Nous vous accompagnons dans vos projets sur l’ensemble du territoire natio ...
En savoir plus

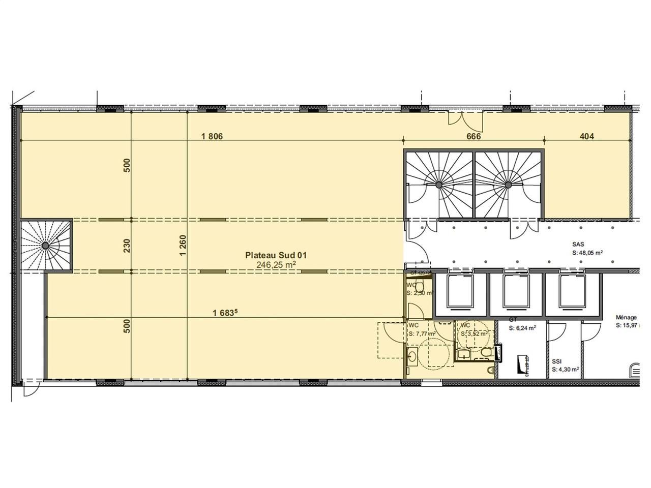
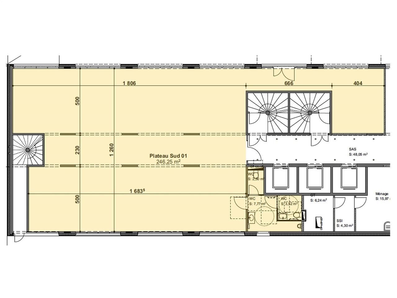
5 122 m² divisible dès 240 m²
HT HC
Location bureau - 5122 m²
Rouen (76000)
Dernière mise à jour : Il y a 3 mois
NORMANDIE 2
Nous proposons à la location de somptueux plateaux de bureaux, idéalement implantés au coeur de Rouen. Ces espaces, d'une superficie totale de 5 122 m², sont modulables à partir de 670 m², offrant une proximité immédiate avec les commerces et les transports en commun, pour un cadre de travail optimal.
La gare SNCF de Rouen est accessible en 10 minutes à pied. La route A13 est également à proximité. Les lignes de bus TEOR F1, 6 et 32 desservent l'immeuble. De plus, la route se trouve à proximité immédiate du centre commercial St Sever et de tous les autres moyens de transport en commun.
Impôt Foncier : 22 €//m2 /an HT
Régime Fiscal : T.V.A.
Dépôt de garantie : 3 mois de loyer HT/HC
Honoraires : 15% HT du loyer annuel en principal HT / HC à la charge du preneur
Information sur le Bail :
Les charges comprennent : Chauffage / rafraichissement, entretien/eau/électricité des parties communes, ascenseur, honoraires de gestion technique, l'ASL (parking, patio)
Prestations :
Accessibilité:
SNCF Gare de Rouen à 10 mn
Route A13
Bus Transport en commun devant l immeuble : Métro TEOR : F1, 6 , 32
Route a proximite immediate du centre st sever et tous les transports en commun
Les informations sur les risques auxquels ce bien est exposé sont disponibles sur le site Géorisques : www.georisques.gouv.fr
Nous proposons à la location de somptueux plateaux de bureaux, idéalement implantés au coeur de Rouen. Ces espaces, d'une superficie totale de 5 122 m², sont modulables à partir de 670 m², offrant une proximité immédiate avec les commerces et les transports en commun, pour un cadre de travail optimal.
La gare SNCF de Rouen est accessible en 10 minutes à pied. La route A13 est également à proximité. Les lignes de bus TEOR F1, 6 et 32 desservent l'immeuble. De plus, la route se trouve à proximité immédiate du centre commercial St Sever et de tous les autres moyens de transport en commun.
| Étage | Type | Surfaces | Dispo | Loyer | Charges | Type de bailRév. annuelle |
|---|---|---|---|---|---|---|
| 8 | Bureaux | 430 | 1er septembre 2026 | 170 m²/an HT HC | 22 an HT | 6 ans fermesILAT Indice des Loyers des Activités Tertiaires |
| 8 | Bureaux | 240 | 1er septembre 2026 | 170 m²/an HT HC | 22 an HT | 6 ans fermesILAT Indice des Loyers des Activités Tertiaires |
| 5 | Bureaux | 670,35 | 1er septembre 2026 | 170 m²/an HT HC | 22 an HT | 6 ans fermesILAT Indice des Loyers des Activités Tertiaires |
| 4 | Bureaux | 670,35 | 1er septembre 2026 | 170 m²/an HT HC | 22 an HT | 6 ans fermesILAT Indice des Loyers des Activités Tertiaires |
| 3 | Bureaux | 670,35 | 1er septembre 2026 | 170 m²/an HT HC | 22 an HT | 6 ans fermesILAT Indice des Loyers des Activités Tertiaires |
| 2 | Bureaux | 670,35 | 1er septembre 2026 | 170 m²/an HT HC | 22 an HT | 6 ans fermesILAT Indice des Loyers des Activités Tertiaires |
| 1 | Bureaux | 430 | 1er septembre 2026 | 170 m²/an HT HC | 22 an HT | 6 ans fermesILAT Indice des Loyers des Activités Tertiaires |
| 6 | Bureaux | 670,35 | 1er septembre 2026 | 170 m²/an HT HC | 22 an HT | 6 ans fermesILAT Indice des Loyers des Activités Tertiaires |
| 7 | Bureaux | 670,35 | 1er septembre 2026 | 170 m²/an HT HC | 22 an HT | 6 ans fermesILAT Indice des Loyers des Activités Tertiaires |
Impôt Foncier : 22 €//m2 /an HT
Régime Fiscal : T.V.A.
Dépôt de garantie : 3 mois de loyer HT/HC
Honoraires : 15% HT du loyer annuel en principal HT / HC à la charge du preneur
Information sur le Bail :
Les charges comprennent : Chauffage / rafraichissement, entretien/eau/électricité des parties communes, ascenseur, honoraires de gestion technique, l'ASL (parking, patio)
Prestations :
- À proximité immédiate de la Rive Droite de Rouen, au coeur des commerces et parfaitement desservi par les transports en commun, un immeuble restructuré et entièrement rénové en R+9 propose plusieurs plateaux de bureaux disponibles.
- Chaque étage se compose de deux lots de 240 m² et 430 m², bénéficiant chacun de 10 places de stationnement en sous-sol.
- Les espaces de travail, lumineux et entièrement remis à neuf, offrent des prestations de qualité :
- Faux plafonds équipés de dalles LED
- Sanitaires PMR à chaque niveau
- Chauffage et rafraîchissement par PAC double flux
- Services disponibles :
- Alarme intrusion avec télésurveillance
- Système de Sécurité Incendie intégré
- Patio extérieur privatif partagé entre les immeubles Normandie 1 & 2, exclusivement réservé aux locataires
- Local à vélos sécurisé
- Bornes de recharge électrique en sous-sol
- Atout majeur : des charges mensuelles parfaitement maîtrisées.
- Immeuble indépendant
Accessibilité:
SNCF Gare de Rouen à 10 mn
Route A13
Bus Transport en commun devant l immeuble : Métro TEOR : F1, 6 , 32
Route a proximite immediate du centre st sever et tous les transports en commun
Les informations sur les risques auxquels ce bien est exposé sont disponibles sur le site Géorisques : www.georisques.gouv.fr
Voir plus
Afficher les consommations énergétiques
Localisation et transport aux alentours
Favoris
Exporter
Appeler
Contacter
Signaler cette annonce










