L''Agence BNP Paribas Real Rouen accompagne les entreprises et les investisseurs dans tous leurs projets immobiliers.Experts du marché rouennais, notre équipe possède une excellente connaissance du ...
En savoir plus

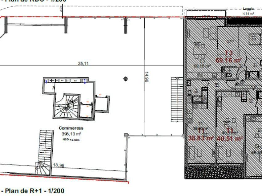
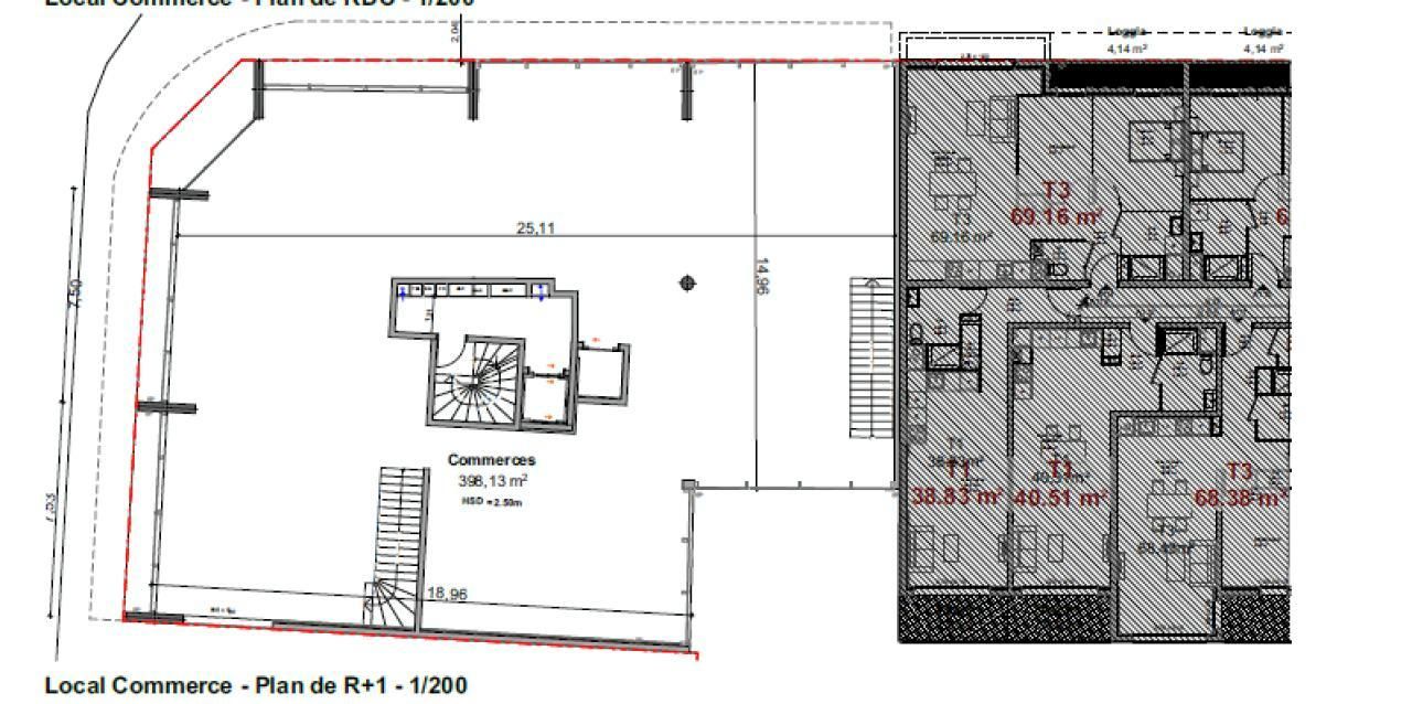
Location bureau - 837 m²
BNP PARIBAS REAL ESTATE vous propose à la location un local commercial d'une surface totale d'environ 836 m², idéalement implanté sur un axe stratégique à fort passage, garantissant une excellente visibilité.
Ce bien est parfaitement adapté à toute activité recevant du public (établissement ERP) et offre un fort potentiel d'aménagement.
Le local est livré brut de béton, fluides en attente, vitrines installées. Cette configuration vous permet de concevoir un espace entièrement personnalisé, en adéquation avec les besoins spécifiques de votre activité.
Le site bénéficie d'une excellente desserte :
Transports en commun : des lignes TEOR (T1, T2, T3)
Accès routiers : Accès facilité vers l'A150 et l'A13 (Paris / Caen / Le Havre)
Parkings relais : Présence de parkings relais (P+R) à proximité
Accès rapide à la rive droite et au centre-ville de Rouen
Vous recherchez des bureaux, des espaces de travail collaboratifs ou des locaux professionnels à louer ou à vendre dans la métropole rouennaise ? Nos solutions de location et de vente de plateaux modernes et fonctionnels dans le Normandie répondent à vos exigences. Découvrez nos offres et trouvez rapidement le site d'activité idéal pour votre équipe à Rouen.
Toutes nos offres sur https://www.bnppre.fr/bureau/normandie/
Disponibilité: 24 mois après travauxHonoraires: 20% HT du loyer HT/HC. à la signature du bail










