Avec près de 80 implantations en France, Arthur Loyd est le premier Réseau National de Conseil en Immobilier d’Entreprise. Nous vous accompagnons dans vos projets sur l’ensemble du territoire natio ...
En savoir plus

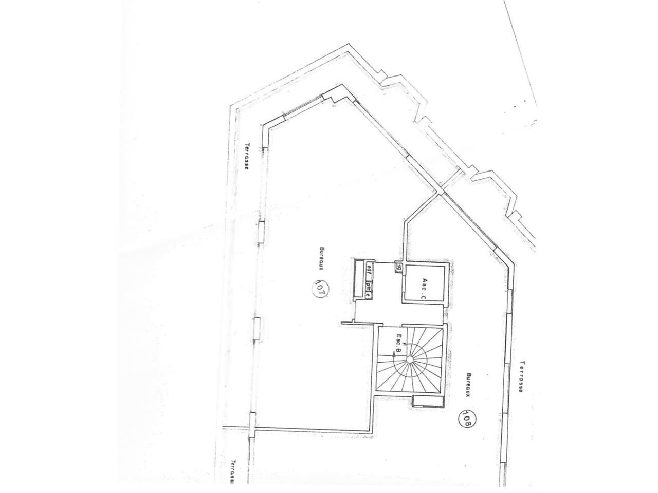
192 m² divisible dès 95 m²
HT HC
Location bureau - 192 m²
Rouen (76000)
Dernière mise à jour : Il y a 4 mois
| Étage | Type | Surfaces | Dispo | Loyer | Charges | Type de bailRév. annuelle |
|---|---|---|---|---|---|---|
| 4 | Bureaux | 97,5 | Immédiate | 200 m²/an HT HC | 25 /m2 / an HT | 3-6-9 ansILAT Indice des Loyers des Activités Tertiaires |
| 4 | Bureaux | 95 | Immédiate | 200 m²/an HT HC | 25 /m2 / an HT | 3-6-9 ansILAT Indice des Loyers des Activités Tertiaires |
Impôt Foncier : 4370 €/pour l'ensemble
Régime Fiscal : T.V.A.
Dépôt de garantie : 3 mois de loyer HT/HC
Honoraires : 20% HT du loyer annuel en principal HT / HC à la charge du preneur
Prestations :
- Bien rare à la location, en hyper Centre-Ville de Rouen, à proximité de la Gare, des transports en commun et de nombreuses commodités !
- _____
- Dans un immeuble tertiaire élevé en R+5, 1 plateau de bureaux disponible à la location, pouvant être divisé en deux, offrant :
- Des espaces ouverts types "open space" de taille variable
- 6 bureaux
- Sanitaires privatifs par lot
- Terrasse entourant l'ensemble des bureaux
- Les bureaux disposent de :
- Revêtement sol stratifié imitation parquet
- Faux plafonds avec éclairage LED
- Courants forts et faibles
- Fibre optique
- Vue sur la ville de Rouen
- Excellente isolation phonique
- _____
- 6 places de parking en sous-sol sécurisées attachées au plateau pour un montant de 120 euros/mois par place de stationnement en sus de la location.
- À visiter dès maintenant.
Accessibilité:
SNCF Rouen-Rive-Droite (France)
Métro Gare Rue Verte
Bus TEOR
Les informations sur les risques auxquels ce bien est exposé sont disponibles sur le site Géorisques : www.georisques.gouv.fr
Voir plus
Afficher les consommations énergétiques
Localisation et transport aux alentours
- Gare-Rue Verte160m (2min à pied)12
Favoris
Exporter
Appeler
Contacter
Signaler cette annonce
