L''Agence BNP Paribas Real Rouen accompagne les entreprises et les investisseurs dans tous leurs projets immobiliers.Experts du marché rouennais, notre équipe possède une excellente connaissance du ...
En savoir plus

1 377 m² divisible dès 146 m²
HT HC
Location bureau - 1377 m²
Rouen (76000)
Dernière mise à jour : Il y a 11 jours
Quais Rive droite ROUEN Plateaux de bureaux à louer dans immeuble de caractère. Idéalement situé dans le centre de Rouen rive droite, à proximité des quais et des commodités. Bureaux sécurisés avec ascenseur. Parkings en sous-sol.
Plateaux de bureaux à louer dans immeuble de caractère. Idéalement situé dans le centre de Rouen rive droite, à proximité des quais.
Plusieurs lots ont connu une réfection, et offrent un cadre de travail agréable dans l'hyper centre ville de Rouen.
Parkings en sous-sol.
Disponibilité: ImmédiateHonoraires: 15% HT du loyer HT/HC. à la signature du bail
| Fiche technique du bien | |
|---|---|
| Métro | Station Théatre des Arts |
| Bus | Ligne T4 |
| Desserte routière | Boulevard des Belges, quais rive droite |
| Etat de l'immeuble | Rénové |
| Type chauffage | Collectif |
| Ascenseur(s) | 1 |
| Aménagement des bureaux | Cloisonnés/Ouverts |
| Faux plafond | Dal. fibres minéral. |
| Sol bureaux | Moquette |
| Sanitaire(s) | Privatif(s) |
Afficher les consommations énergétiques
Surfaces divisibles : 5
| Surface | LoyerHT/HC/m²/an | Étage / Batiment | Infos complémentaires |
| 166 m² | N.C | R+1 | LOT 3 - 1er étage |
| 278 m² | N.C | R+1 | LOT 5 - 1er étage |
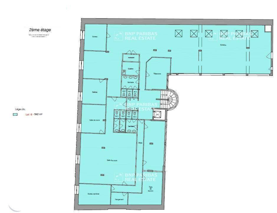
| 542 m² | N.C | R+2 | LOT 6 - 2ème étage |
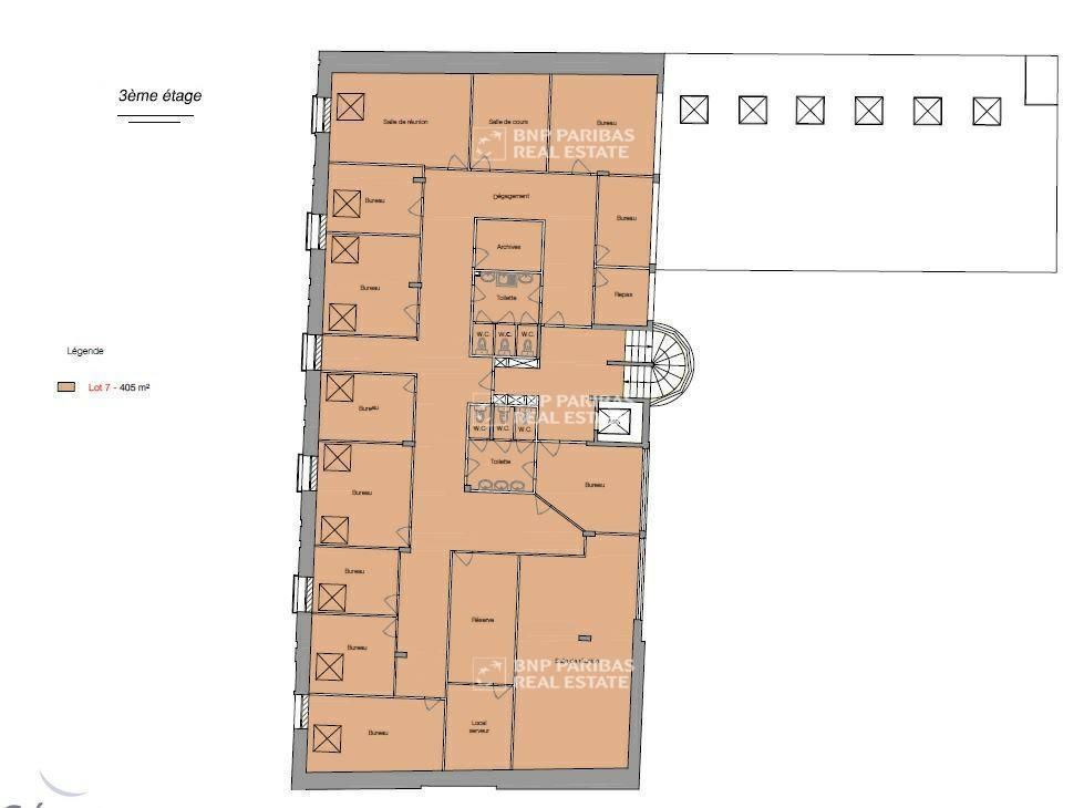
| 245 m² | N.C | R+3 | LOT 7 - R+3 |
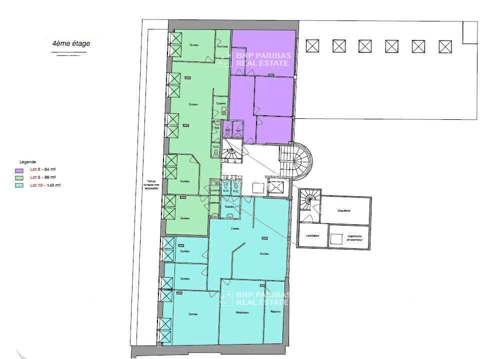
| 146 m² | N.C | R+4 | LOT 10 - R+4 |
Localisation et transport aux alentours
- Gare-Rue Verte1.4km (21min à pied)12
Favoris
Exporter
Appeler
Contacter
Signaler cette annonce










