Etablie à Lyon depuis 1999, la Société Lyonnaise de Développement Immobilier,(SLDI) est l'un des principaux acteurs indépendants du Conseil en immobilier d’entreprise. Que vous soyez industriel, co ...
En savoir plus

110 m²
HT HC
Location bureau - 110 m²
Rillieux-la-Pape (69140)
Dernière mise à jour : Il y a 4 jours
Nous vous proposons à la location un petit bâtiment indépendant comprenant des bureaux aménagés ainsi qu' un espace de stockage ou petit atelier fonctionnel et confortable. Bien situé, proche des transports en commun au sein d'un parc d'activités à Rillieux-la-Pape
De plus 4 places de parking complètent ce bien, situé à proximité des transports.
Impôt Foncier : 3412 €/Base 2024
Régime Fiscal : T.V.A.
Dépôt de garantie : 3 mois de loyer HT/HC
Honoraires : 15 % Ht à la charge du preneur.
Prestations :
Accessibilité:
Bus Sathonay Gare (Ligne 33, Ligne 77, Ligne ZI4)
SNCF Sathonay-Rillieux (France)
Les informations sur les risques auxquels ce bien est exposé sont disponibles sur le site Géorisques : www.georisques.gouv.fr
De plus 4 places de parking complètent ce bien, situé à proximité des transports.
| Étage | Type | Surfaces | Dispo | Loyer | Charges | Type de bailRév. annuelle |
|---|---|---|---|---|---|---|
| 1 | Bureaux | 47 | Indice INSEE du coût de la construction | |||
| RDC | Bureaux | 63 | Indice INSEE du coût de la construction | |||
| Total Cellule | Bureaux | 110 | Immédiate | 140 HT/HC/m²/an | 12,65 m²/an HT | 3-6-9 ansIndice INSEE du coût de la construction |
Impôt Foncier : 3412 €/Base 2024
Régime Fiscal : T.V.A.
Dépôt de garantie : 3 mois de loyer HT/HC
Honoraires : 15 % Ht à la charge du preneur.
Prestations :
- Bureaux aménagés
- Accueil et petit atelier
- Nbre Parkings extérieurs4
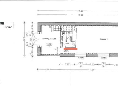
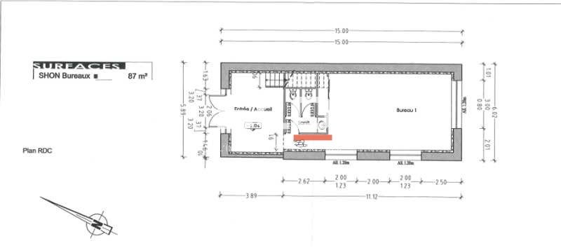
- Surface RDC : 87 m²
- Bureaux et petite activité de 1 m² dont 62 m² de bureau à l'étage
Accessibilité:
Bus Sathonay Gare (Ligne 33, Ligne 77, Ligne ZI4)
SNCF Sathonay-Rillieux (France)
Les informations sur les risques auxquels ce bien est exposé sont disponibles sur le site Géorisques : www.georisques.gouv.fr
Voir plus
Afficher les consommations énergétiques
Localisation et transport aux alentours
Favoris
Exporter
Appeler
Contacter
Signaler cette annonce










