L’agence CBRE Nantes conseille et accompagne les chefs d’entreprise dans leurs projets immobiliers quels que soient leur taille et leur secteur d’activité. Spécialistes de la transaction de bureaux ...
En savoir plus

442 m²
HT HC
Location bureau - 442 m²
Rezé (44400)
Dernière mise à jour : Hier
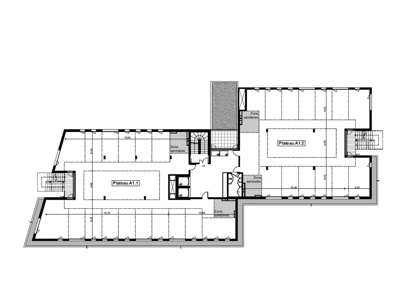
Immeuble SOUTH GARDEN
Nous vous proposons à la location ou à la vente un plateau de bureaux au sein d'un programme neuf. Situés à la sortie du périphérique, porte de Rezé, ces immeubles bénéficieront de nombreux services (Leclerc Océane) et d'un accès direct par les transports en commun (busway au pied de l'immeuble).
Dernier plateau disponible au sein de cet immeuble neuf de très bon standing, Un bon ratio parking vient compléter cette offre.
Régime Fiscal : T.V.A.
Dépôt de garantie : 3 mois de loyer HT/HC
Honoraires : 15% du loyer annuel HT HC à la charge du preneur.
Prestations :
Accessibilité:
Bus Porte de Rezé (C4)
Route Périphérique à toute proximité
Les informations sur les risques auxquels ce bien est exposé sont disponibles sur le site Géorisques : www.georisques.gouv.fr
Nous vous proposons à la location ou à la vente un plateau de bureaux au sein d'un programme neuf. Situés à la sortie du périphérique, porte de Rezé, ces immeubles bénéficieront de nombreux services (Leclerc Océane) et d'un accès direct par les transports en commun (busway au pied de l'immeuble).
Dernier plateau disponible au sein de cet immeuble neuf de très bon standing, Un bon ratio parking vient compléter cette offre.
| Étage | Type | Surfaces | Dispo | Loyer | Charges | Type de bailRév. annuelle |
|---|---|---|---|---|---|---|
| 2 | Bureaux | 441,9 | Immédiate | 148 m²/an HT HC | 30 HT/m²/an | 6-9 ansIndice ILAT |
| Parkings | Immédiate | 750 U/an HT HC | 3-6-9 ansIndice ILAT |
Régime Fiscal : T.V.A.
Dépôt de garantie : 3 mois de loyer HT/HC
Honoraires : 15% du loyer annuel HT HC à la charge du preneur.
Prestations :
- Programme neuf à construire de 2 bâtiments
- Contrôle d'accès
- Platine de téléphonie
- Plateaux de bureaux livrés neufs aménagés non cloisonnés
- Faux-plafonds (2.70m HSP)
- Plinthes périphériques
- Stores aluminium intérieurs
- Dalles moquette
- Places de stationnement équipées de bornes électriques
- Livraison 4T 2024
Accessibilité:
Bus Porte de Rezé (C4)
Route Périphérique à toute proximité
Les informations sur les risques auxquels ce bien est exposé sont disponibles sur le site Géorisques : www.georisques.gouv.fr
10 Parkings int.
Voir plus
Afficher les consommations énergétiques
Localisation et transport aux alentours
Favoris
Exporter
Appeler
Contacter
Signaler cette annonce










