RCG Bordeaux est un cabinet de conseil en immobilier d'entreprise est située au cœur du quartier des Chartrons au 107 cours Balguerie Stuttenberg à Bordeaux. Cette agence propose un large choix de ...
En savoir plus

1 416 m² divisible dès 62 m²
HT HC
Location bureau - 1416 m²
Pessac (33600)
Dernière mise à jour : Il y a 1 mois
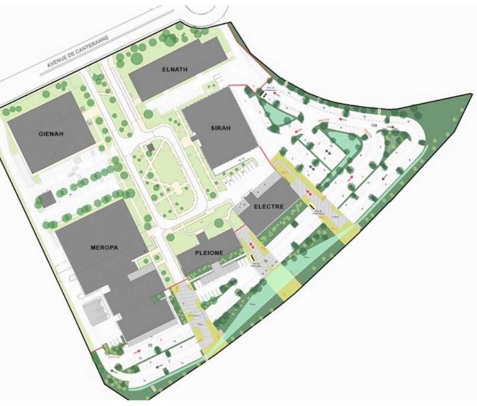
A LOUER - BUREAUX AMENAGES RECENTS A PARTI DE 62 M² - PESSAC
En choisissant d'implanter votre entreprise sur la Cité de la Photonique vous optez pour un environnement de travail accessible, pratique et dynamisant au coeur d'un écosystème unique en Nouvelle Aquitaine pour que chacun travaille dans les meilleures conditions.
. Un parc d'activités dédié à la recherche et à
l'innovation scientifique, technologique et
numérique
. Proximité des grands laboratoires et centres de recherche de l'Université de Bordeaux et des grandes écoles
. Aujourd'hui le parc compte 6 bâtiments, plus de 40 entreprises technologiques avec un effectif total d'environ 800 salariés
Impôt Foncier : 15 €/m²/an HT
Régime Fiscal : T.V.A.
Dépôt de garantie : 3 mois de loyer HT/ HC
Honoraires : 20% HT du loyer annuel HT/HC à la charge du Preneur
Information sur le Bail :
Les charges incluent : Entretien et maintenance des parkings, voiries et cheminements piétons - Eclairage - Vidéosurveillance - Entretien des espaces verts et des agréments - Gestion des déchets - Défense incendie - Contrat d'entretien MultiTechnique - Accès fibre - Electricité (Communs). Electricité (Partie privative) : Refacturation (trimestrielle ou semestrielle) sur la base de sous-compteurs divisionnaires sauf bât Pleione : consommations comprises
Prestations :
Accessibilité:
Route Rocade sortie 14 - A63
Bus Bus 39 "Photonique"
Les informations sur les risques auxquels ce bien est exposé sont disponibles sur le site Géorisques : www.georisques.gouv.fr
En choisissant d'implanter votre entreprise sur la Cité de la Photonique vous optez pour un environnement de travail accessible, pratique et dynamisant au coeur d'un écosystème unique en Nouvelle Aquitaine pour que chacun travaille dans les meilleures conditions.
. Un parc d'activités dédié à la recherche et à
l'innovation scientifique, technologique et
numérique
. Proximité des grands laboratoires et centres de recherche de l'Université de Bordeaux et des grandes écoles
. Aujourd'hui le parc compte 6 bâtiments, plus de 40 entreprises technologiques avec un effectif total d'environ 800 salariés
| Étage | Type | Surfaces | Dispo | Loyer | Charges | Type de bailRév. annuelle |
|---|---|---|---|---|---|---|
| 1 | Bureaux | 281 | Immédiate | 150 HT/HC/m²/an | 33,4 m²/an HT | 3-6-9 ansILAT Indice des Loyers des Activités Tertiaires |
| RDC | Bureaux | 345 | Immédiate | 150 HT/HC/m²/an | 33,4 m²/an HT | 3-6-9 ansILAT Indice des Loyers des Activités Tertiaires |
| RDC | Bureaux | 227 | Immédiate | 150 HT/HC/m²/an | 33,4 m²/an HT | 3-6-9 ansILAT Indice des Loyers des Activités Tertiaires |
| RDC | Bureaux | 225 | Immédiate | 150 HT/HC/m²/an | 33,4 m²/an HT | 3-6-9 ansILAT Indice des Loyers des Activités Tertiaires |
| 1 | Bureaux | 130 | Immédiate | 130 HT/HC/m²/an | 54 m²/an HT | 3-6-9 ansILAT Indice des Loyers des Activités Tertiaires |
| 1 | Bureaux | 62 | Immédiate | 130 HT/HC/m²/an | 54 m²/an HT | 3-6-9 ansILAT Indice des Loyers des Activités Tertiaires |
| RDC | Bureaux | 146 | Immédiate | 130 HT/HC/m²/an | 49 m²/an HT | 3-6-9 ansILAT Indice des Loyers des Activités Tertiaires |
Impôt Foncier : 15 €/m²/an HT
Régime Fiscal : T.V.A.
Dépôt de garantie : 3 mois de loyer HT/ HC
Honoraires : 20% HT du loyer annuel HT/HC à la charge du Preneur
Information sur le Bail :
Les charges incluent : Entretien et maintenance des parkings, voiries et cheminements piétons - Eclairage - Vidéosurveillance - Entretien des espaces verts et des agréments - Gestion des déchets - Défense incendie - Contrat d'entretien MultiTechnique - Accès fibre - Electricité (Communs). Electricité (Partie privative) : Refacturation (trimestrielle ou semestrielle) sur la base de sous-compteurs divisionnaires sauf bât Pleione : consommations comprises
Prestations :
- Immeuble récent (2014)
- Ascenseur - normes PMR
- Panneaux photovoltaiques en toiture
- Dans chaque bâtiment : grandes terrasses communes, patios, tisanerie mutualisée équipée (évier, réfrigérateur, fours micro-ondes, fontaine à eau, tables et chaises)
- Accès à une salle de réunion mutualisée équipée d'un grand écran et d'un système de visio-conférence (réservable en ligne)
- Fibre optique très haut débit
- Bureaux cloisonnés
- Sol moquette
- Câblage RJ45
- Climatisation réversible
- Sanitaires et douches en parties communes
- Grand parking extérieur mutualisé et espaces de détente extérieurs
- Terrain de pétanque
- Lots 227 m² et 225 m² : salles blanches
- Surface RDC : 943 m²
Accessibilité:
Route Rocade sortie 14 - A63
Bus Bus 39 "Photonique"
Les informations sur les risques auxquels ce bien est exposé sont disponibles sur le site Géorisques : www.georisques.gouv.fr
Voir plus
Afficher les consommations énergétiques
Favoris
Exporter
Appeler
Contacter
Signaler cette annonce
