Conseil en immobilier d'entreprise, Cushman & Wakefield est un acteur incontournable au rayonnement international. Cushman & Wakefield offre des solutions dans toutes les étapes que comporte un p ...
En savoir plus



541 m² divisible dès 246 m²
HT HC
LE NEXT - Location bureau - 541 m²
Palaiseau (91120)
Dernière mise à jour : Il y a 4 mois
LE NEXT
Immeuble LE NEXT
A louer, bureaux neufs sur le plateau de Saclay, à Palaiseau.
Au sein du Campus urbain de Paris-Saclay, découvrez 541 m² de bureaux à louer, divisibles à partir de 246 m², dans un immeuble neuf certifié BREEAM
Situés au 4? étage, les plateaux sont livrés en open space, lumineux et modulables. L'immeuble offre un confort optimal avec lounge privatisable, local vélo, brise-soleils extérieurs et raccordement au réseau chaud/froid du campus. Restaurant universitaire (Crous) et cafétéria au rez-de-chaussée.
Très bien desservi (RER B "Le Guichet", bus et future ligne 18 du Grand Paris en 2026), Le Next s'adresse à des entreprises souhaitant s'implanter dans un environnement d'innovation, au coeur d'un écosystème scientifique et technologique de premier plan.
Une adresse stratégique et durable.
Régime Fiscal : T.V.A.
Dépôt de garantie : 3 mois de loyer HT/HC
Honoraires : 15 % HT du loyer annuel HT/HC à la charge du preneur.
Information sur le Bail :
Les charges intègrent les consommations des PC et privatives
Prestations :
Accessibilité:
RER Le Guichet (ligne B)
Bus Lignes 14; 91.06; N63
Métro Ligne 18 Grand Paris pour 2026
Les informations sur les risques auxquels ce bien est exposé sont disponibles sur le site Géorisques : www.georisques.gouv.fr
Immeuble LE NEXT
A louer, bureaux neufs sur le plateau de Saclay, à Palaiseau.
Au sein du Campus urbain de Paris-Saclay, découvrez 541 m² de bureaux à louer, divisibles à partir de 246 m², dans un immeuble neuf certifié BREEAM
Situés au 4? étage, les plateaux sont livrés en open space, lumineux et modulables. L'immeuble offre un confort optimal avec lounge privatisable, local vélo, brise-soleils extérieurs et raccordement au réseau chaud/froid du campus. Restaurant universitaire (Crous) et cafétéria au rez-de-chaussée.
Très bien desservi (RER B "Le Guichet", bus et future ligne 18 du Grand Paris en 2026), Le Next s'adresse à des entreprises souhaitant s'implanter dans un environnement d'innovation, au coeur d'un écosystème scientifique et technologique de premier plan.
Une adresse stratégique et durable.
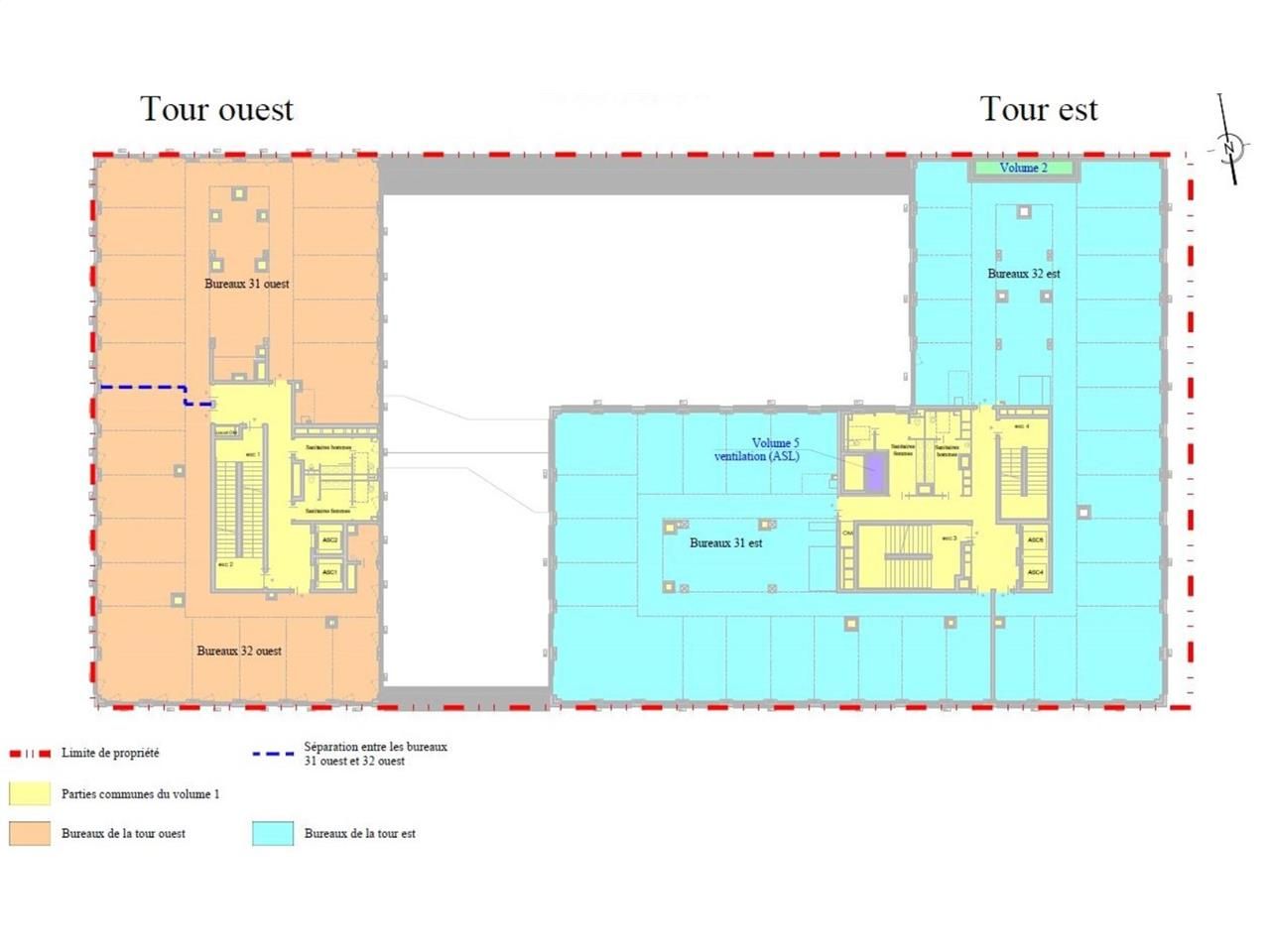
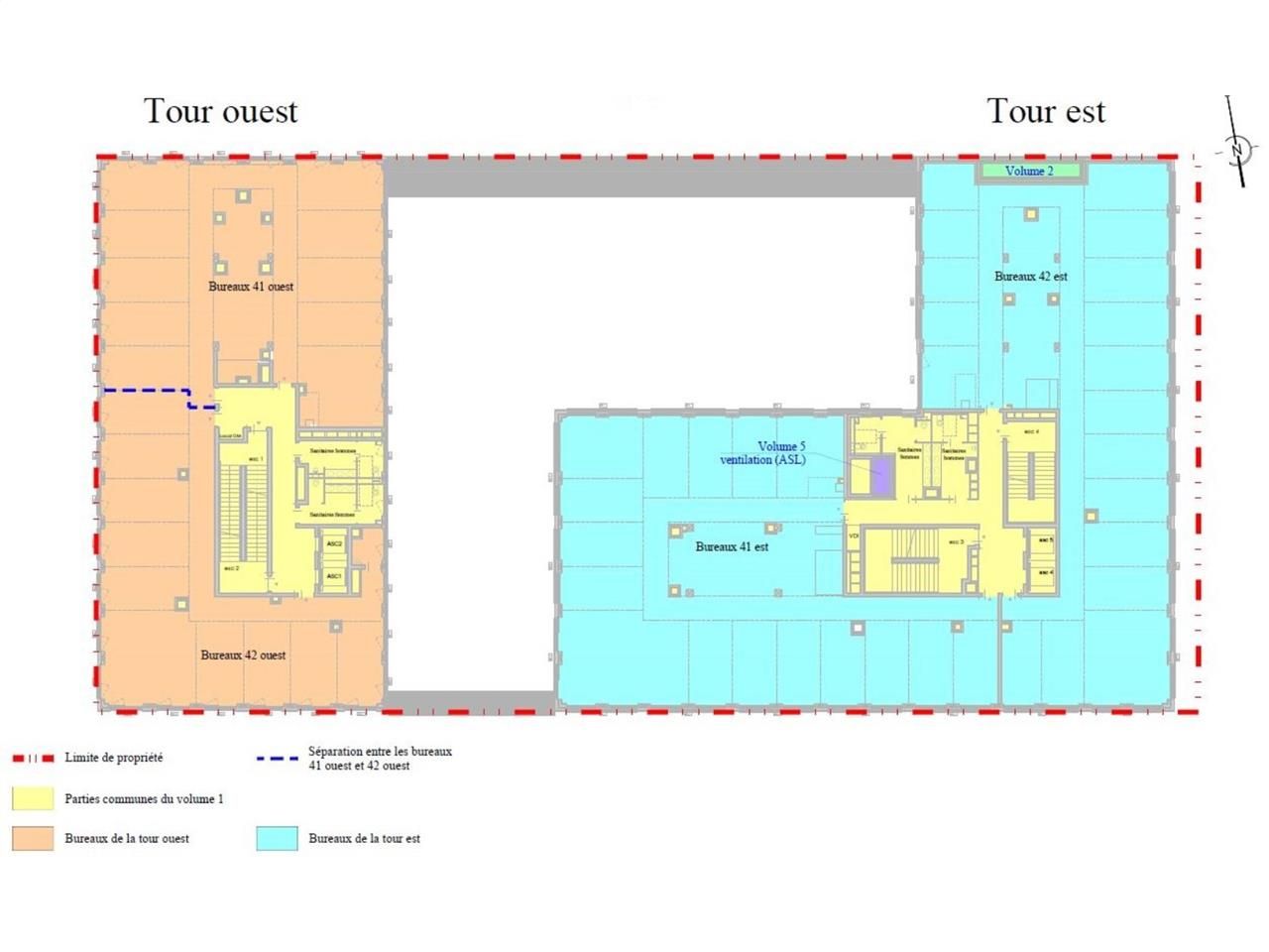
| Étage | Type | Surfaces | Dispo | Loyer | Charges | Type de bailRév. annuelle |
|---|---|---|---|---|---|---|
| 4 | Bureaux | 295 | 240 HT/HC/m²/an | 57 HT/m²/an | 3-6-9 ansSur l'indice ILAT | |
| 4 | Bureaux | 246 | 240 HT/HC/m²/an | 57 HT/m²/an | 3-6-9 ansSur l'indice ILAT |
Régime Fiscal : T.V.A.
Dépôt de garantie : 3 mois de loyer HT/HC
Honoraires : 15 % HT du loyer annuel HT/HC à la charge du preneur.
Information sur le Bail :
Les charges intègrent les consommations des PC et privatives
Prestations :
- Au coeur du Campus Urbain de Paris-Saclay
- Immeuble neuf en R+5 avec 2 halls indépendants
- Locaux livrés en open-space
- Restaurant universitaire (Crous) au rdc, ouvert à tous, et cafeteria
- Plateaux courants d'env. 440 m² (Hall 1) et 720 m² (Hall 2), tous 2 divisibles en 2 lots
- Raccordement au réseau chaud et froid de Paris-Saclay
- Brise-soleils extérieurs
- Jardin suspendu accessible
- Lounge privatisable
- Immeuble Droit du travail, non ERPable
- Local Vélo
- Ratio parking : 1 place pour 60 m² loués
Accessibilité:
RER Le Guichet (ligne B)
Bus Lignes 14; 91.06; N63
Métro Ligne 18 Grand Paris pour 2026
Les informations sur les risques auxquels ce bien est exposé sont disponibles sur le site Géorisques : www.georisques.gouv.fr
75 Parking(s) en sous-sol
Voir plus
Afficher les consommations énergétiques
Localisation et transport aux alentours
Favoris
Exporter
Appeler
Contacter
Signaler cette annonce










