Nous sommes Immprove, une grande équipe de plus de 200 experts en immobilier d’entreprise, implantés localement avec plus de 20 agences sur tout le territoire.Depuis 2009, notre proximité, notre ét ...
En savoir plus

202 m²
HT HC
Location bureau - 202 m²
Orsay (91400)
Dernière mise à jour : Il y a 5 jours
Bureaux à louer ou à vendre, normes PMR et ERP
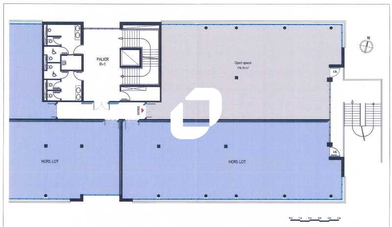
Idéalement situé au pied de la gare RER B à Orsay, au coeur du territoire dynamique de Paris-Saclay, Immprove vous propose une occasion unique de louer ou d'acquérir un espace de bureaux moderne et climatisé. Avec une surface d'environ 202 m², cet espace non divisible est conçu pour répondre aux exigences des entreprises souhaitant s'installer dans un cadre confortable et fonctionnel.
Conforme aux normes PMR (Personnes à Mobilité Réduite) et ERP (Établissement Recevant du Public), ce bureau assure un accueil optimal pour tous vos collaborateurs et visiteurs.
Vous bénéficierez également de 8 places de parking, dont une place couverte, facilitant ainsi l'accès pour vos équipes et vos clients. Implanté sur un site clos et sécurisé, ce bien garantit un environnement de travail paisible et sécurisé. Sa situation stratégique à proximité immédiate des transports en commun assure une excellente connectivité avec toute la région parisienne, offrant un emplacement privilégié pour développer vos activités au sein de ce pôle d'innovation et de recherche reconnu.
Impôt Foncier : 30,24 €/m²/an HT
Régime Fiscal : T.V.A. (20%)
Dépôt de garantie : 3 mois de loyer HT HC
Paiement Loyer : Trimestriel
Honoraires : 15 % HT du loyer annuel HT HC
Taxe Bureau : 10,1 €/m²/an
Prestations :
Accessibilité:
RER RER B : Orsay Ville
Bus à proximité immédiate
SNCF Massy TGV
Autoroute A10 / A6
Les informations sur les risques auxquels ce bien est exposé sont disponibles sur le site Géorisques : www.georisques.gouv.fr
Idéalement situé au pied de la gare RER B à Orsay, au coeur du territoire dynamique de Paris-Saclay, Immprove vous propose une occasion unique de louer ou d'acquérir un espace de bureaux moderne et climatisé. Avec une surface d'environ 202 m², cet espace non divisible est conçu pour répondre aux exigences des entreprises souhaitant s'installer dans un cadre confortable et fonctionnel.
Conforme aux normes PMR (Personnes à Mobilité Réduite) et ERP (Établissement Recevant du Public), ce bureau assure un accueil optimal pour tous vos collaborateurs et visiteurs.
Vous bénéficierez également de 8 places de parking, dont une place couverte, facilitant ainsi l'accès pour vos équipes et vos clients. Implanté sur un site clos et sécurisé, ce bien garantit un environnement de travail paisible et sécurisé. Sa situation stratégique à proximité immédiate des transports en commun assure une excellente connectivité avec toute la région parisienne, offrant un emplacement privilégié pour développer vos activités au sein de ce pôle d'innovation et de recherche reconnu.
| Étage | Type | Surfaces | Dispo | Loyer | Charges | Type de bailRév. annuelle |
|---|---|---|---|---|---|---|
| 1 | Bureaux | 202 | Immédiate | 160 m²/an HT HC | 43,15 m²/an HT | Bail Commercial 3-6-9 ansIndice ILAT |
| Cour | Parkings | Immédiate | Bail Commercial 3-6-9 ansIndice ILAT | |||
| SS | Parkings | Immédiate | Bail Commercial 3-6-9 ansIndice ILAT |
Impôt Foncier : 30,24 €/m²/an HT
Régime Fiscal : T.V.A. (20%)
Dépôt de garantie : 3 mois de loyer HT HC
Paiement Loyer : Trimestriel
Honoraires : 15 % HT du loyer annuel HT HC
Taxe Bureau : 10,1 €/m²/an
Prestations :
- Immeuble récent
- Façade en béton architectoniques clairs
- Accès PMR
- Parties communes de bon standing
- Ascenseur PMR
- Contrôle d'accès
- Site clos sécurisé par badge
- Visiophone
- Climatisation réversible
- Fibre optique
- Bon état
- Espace ouvert
- Bureaux cloisonnés
- Salle de réunion
- Locaux lumineux
- Moquette
- Plinthes périphériques
- Câblage informatique et téléphonique
- Prises RJ45
- Locaux E.R.P.
- Sanitaires communs
Accessibilité:
RER RER B : Orsay Ville
Bus à proximité immédiate
SNCF Massy TGV
Autoroute A10 / A6
Les informations sur les risques auxquels ce bien est exposé sont disponibles sur le site Géorisques : www.georisques.gouv.fr
Voir plus
Afficher les consommations énergétiques
Localisation et transport aux alentours
Favoris
Exporter
Appeler
Contacter
Signaler cette annonce










