L’agence CBRE Bordeaux conseille et accompagne les chefs d’entreprise dans leurs projets immobiliers quels que soient leur taille et leur secteur d’activité. Spécialistes de la transaction de burea ...
En savoir plus

1 053 m²
HT HC
Location bureau - 1053 m²
Mérignac (33700)
Dernière mise à jour : Hier
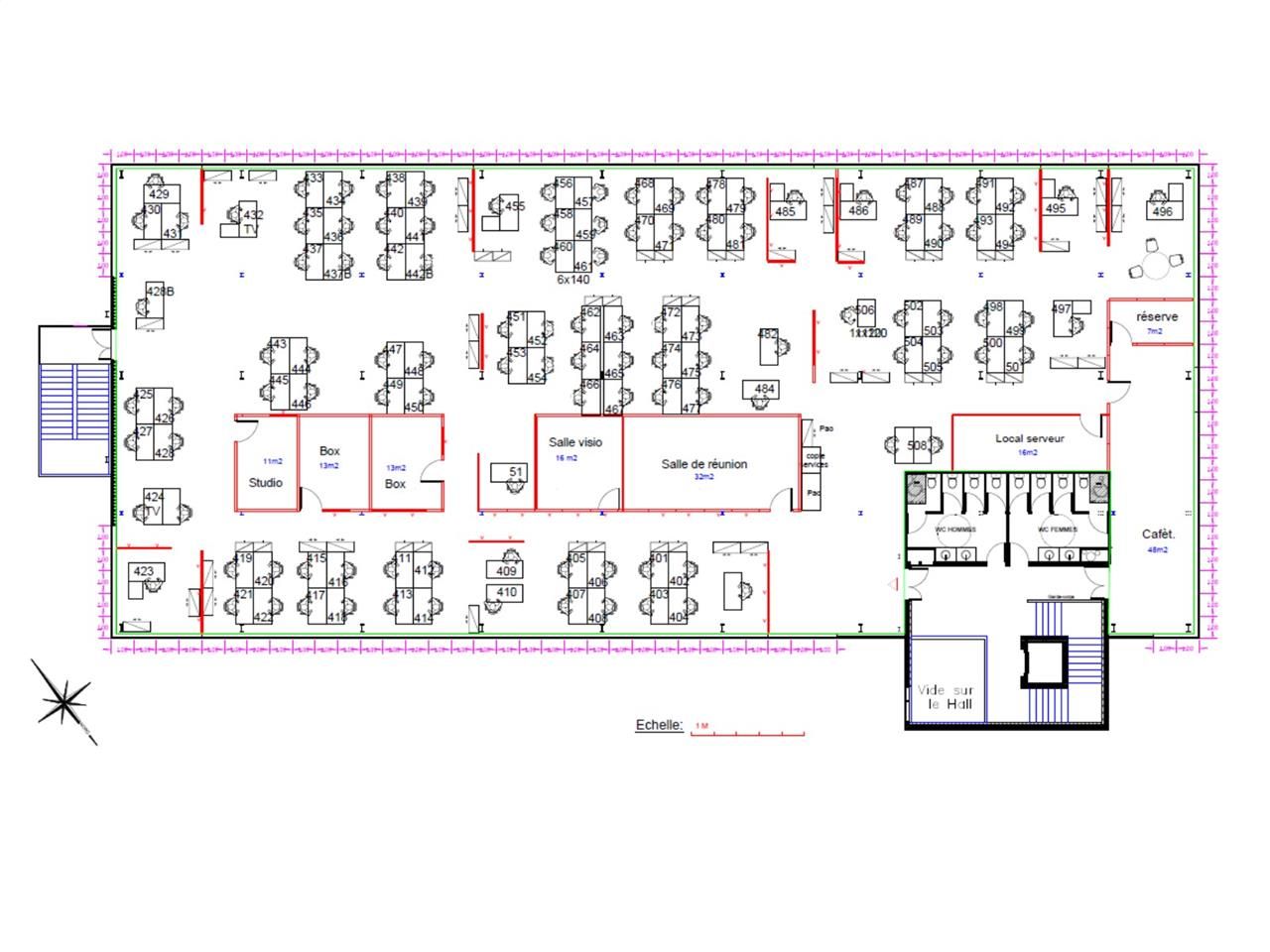
A louer bureaux à Mérignac (33700). Dans un immeuble indépendant, de bon standing, à proximité du Tramway (Ligne A), CBRE vous propose 1053 m² de bureaux à louer. Les plateaux sont en très bon état, déjà cloisonnés et câblés.
Le site a également l'avantage de bénéficier de beaucoup de places de parking extérieur. N'hésitez pas à nous contacter si vous souhaitez de plus amples informations, ou pour organiser une visite.
Impôt Foncier : 14,73 €//m²/an HT
Régime Fiscal : T.V.A.
Dépôt de garantie : 3 mois de loyer HT/HC
Honoraires : 15 % HT du loyer annuel économique HT à la charge du preneur.
Information sur le Bail :
Provisions consommation électricité privative 2024 : 38,10 euros/m²/an HT Provisions travaux d'exploitations 2024 : 7,14 euros/m²/an HT Primes d'assurance 2024 : 0,59 euros/m²/an HT
Prestations :
Accessibilité:
Bus Lignes 26 - Arrêt "Diesel"
Tramway Lignes A & F - Arrêt "Caroline Aigle"
Aeroport Bordeaux-Mérignac à 2km
Route Rocade sortie n°11 à 2,5km
Autoroute A63 à 9,5km
Les informations sur les risques auxquels ce bien est exposé sont disponibles sur le site Géorisques : www.georisques.gouv.fr
Le site a également l'avantage de bénéficier de beaucoup de places de parking extérieur. N'hésitez pas à nous contacter si vous souhaitez de plus amples informations, ou pour organiser une visite.
| Étage | Type | Surfaces | Dispo | Loyer | Charges | Type de bailRév. annuelle |
|---|---|---|---|---|---|---|
| 1 | Bureaux | 1053 | Immédiate | 100 m²/an HT HC | 21,23 HT/m²/an | 3-6-9 ansIndice ILAT |
Impôt Foncier : 14,73 €//m²/an HT
Régime Fiscal : T.V.A.
Dépôt de garantie : 3 mois de loyer HT/HC
Honoraires : 15 % HT du loyer annuel économique HT à la charge du preneur.
Information sur le Bail :
Provisions consommation électricité privative 2024 : 38,10 euros/m²/an HT Provisions travaux d'exploitations 2024 : 7,14 euros/m²/an HT Primes d'assurance 2024 : 0,59 euros/m²/an HT
Prestations :
- Climatisation
- Cloisonnement
- Câblage
- Faux plafond
- Plancher technique
- Sol: dalles moquette
- Ascenseur
- Contrôle d'accès
- Alarme
- Hauteur libre: 2.50 m
- 77 Places de parking extérieur
- Loyer parkings: 150 euros /u /an HT HC
Accessibilité:
Bus Lignes 26 - Arrêt "Diesel"
Tramway Lignes A & F - Arrêt "Caroline Aigle"
Aeroport Bordeaux-Mérignac à 2km
Route Rocade sortie n°11 à 2,5km
Autoroute A63 à 9,5km
Les informations sur les risques auxquels ce bien est exposé sont disponibles sur le site Géorisques : www.georisques.gouv.fr
Voir plus
Afficher les consommations énergétiques
Favoris
Exporter
Appeler
Contacter
Signaler cette annonce
