L’agence CBRE Bordeaux conseille et accompagne les chefs d’entreprise dans leurs projets immobiliers quels que soient leur taille et leur secteur d’activité. Spécialistes de la transaction de burea ...
En savoir plus

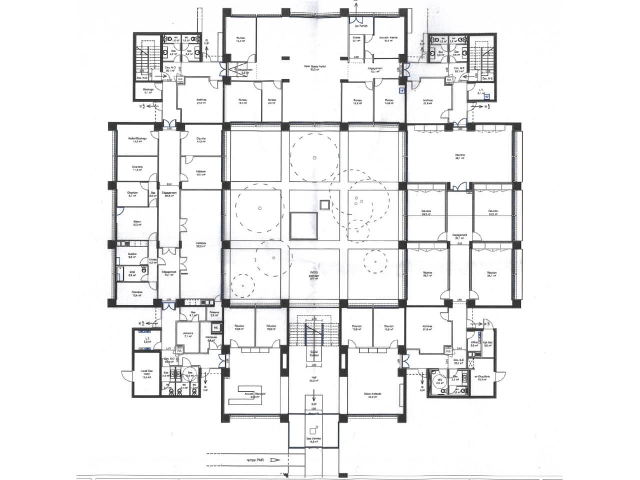
1 052 m² divisible dès 500 m²
HT HC
Location bureau - 1052 m²
Mérignac (33700)
Dernière mise à jour : Il y a 1 mois
A louer ou à vendre, dans un immeuble moderne très bien situé à Mérignac, plateau de bureau de 1 052 m², divisible, qui sera rénové, prêt à aménager. Dans un parc verdoyant et à proximité du tramway, ces bureaux proposent également 25 emplacements de parking.
Vous souhaitez en savoir plus ou découvrir les lieux ? Contactez-nous au 05 33 06 27 84, nous serons ravis d'échanger avec vous !
Régime Fiscal : T.V.A.
Dépôt de garantie : 3 mois de loyer HT/HC
Honoraires : A la charge du preneur.
Prestations :
Accessibilité:
Bus Ligne 34 - Arrêt "ZI Chemin Long"
Bus Lignes 20, 26 & 33 - Arrêt "Mérignac Soleil"
Tramway Ligne A - Arrêt "Mérignac Soleil"
Route Rocade sortie n°11 ou 11A
Aeroport Bordeaux-Mérignac à 3,4km
Les informations sur les risques auxquels ce bien est exposé sont disponibles sur le site Géorisques : www.georisques.gouv.fr
Vous souhaitez en savoir plus ou découvrir les lieux ? Contactez-nous au 05 33 06 27 84, nous serons ravis d'échanger avec vous !
| Étage | Type | Surfaces | Dispo | Loyer | Charges | Type de bailRév. annuelle |
|---|---|---|---|---|---|---|
| 2 | Bureaux | 1052 | Janvier 2027 | 130 m²/an HT HC | 3-6-9 ansIndice ILAT |
Régime Fiscal : T.V.A.
Dépôt de garantie : 3 mois de loyer HT/HC
Honoraires : A la charge du preneur.
Prestations :
- Locaux rénovés
- Hall d'accueil
- Climatisation réversible
- Accessibilité PMR
- Moquette
- Luminaires LED
- Faux plafonds
- 2 Ascenseurs
- Escalier
- Espace extérieur aménagé
- 27 places de parking extérieures
Accessibilité:
Bus Ligne 34 - Arrêt "ZI Chemin Long"
Bus Lignes 20, 26 & 33 - Arrêt "Mérignac Soleil"
Tramway Ligne A - Arrêt "Mérignac Soleil"
Route Rocade sortie n°11 ou 11A
Aeroport Bordeaux-Mérignac à 3,4km
Les informations sur les risques auxquels ce bien est exposé sont disponibles sur le site Géorisques : www.georisques.gouv.fr
Voir plus
Afficher les consommations énergétiques
Favoris
Exporter
Appeler
Contacter
Signaler cette annonce










