RCG Bordeaux est un cabinet de conseil en immobilier d'entreprise est située au cœur du quartier des Chartrons au 107 cours Balguerie Stuttenberg à Bordeaux. Cette agence propose un large choix de ...
En savoir plus

626 m² divisible dès 115 m²
HT HC
Location bureau - 626 m²
Mérignac (33700)
Dernière mise à jour : Il y a 2 jours
A LOUER - BUREAUX LUMINEUX DE 625 M² DIVISIBLES A PARTIR DE 114 M² - MERIGNAC CHEMIN LONG
Immeuble LE WATT
Au sein d'un immeuble de bureaux de bon standing à proximité immédiate de la rocade sortie n°11 et du centre commercial MERIGNAC SOLEIL, RCG vous propose à la location plusieurs plateaux de bureaux lumineux et rénovés.
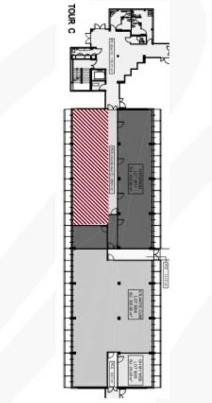
Bâtiment C - lot de 114.78 m² divisible (SOUS OPTION)
Bâtiment D - 510.76 m² : bureaux show-room stockage
Possibilité de normes ERP et travaux.
A proximité de la ligne Tram A " Chemin Long"
Impôt Foncier : 12 €/HT/m²/an
Régime Fiscal : T.V.A.
Dépôt de garantie : 3 mois de loyer HT/ HC
Honoraires : 15% HT du loyer annuel HT/HC à la charge du Preneur
Information sur le Bail :
Possibilité de bail dérogatoire ou professionnel Les charges comprennent : FGT, assurance bailleur, entretien ascenseur, entretien des communs, entretien espace vert, entretien portail, vérification périodique, entretien CVC, entretien divers, sécurité incendie, électricité des communs (pour le Bâtiment C Lot de 114,78 m²)
Prestations :
Accessibilité:
Route Rocade sortie n°11
Bus Bus lignes 30/36 "Chateau Rouquey"
Tram A proximité de la ligne Tram A " Chemin Long" à 1 km
Les informations sur les risques auxquels ce bien est exposé sont disponibles sur le site Géorisques : www.georisques.gouv.fr
Immeuble LE WATT
Au sein d'un immeuble de bureaux de bon standing à proximité immédiate de la rocade sortie n°11 et du centre commercial MERIGNAC SOLEIL, RCG vous propose à la location plusieurs plateaux de bureaux lumineux et rénovés.
Bâtiment C - lot de 114.78 m² divisible (SOUS OPTION)
Bâtiment D - 510.76 m² : bureaux show-room stockage
Possibilité de normes ERP et travaux.
A proximité de la ligne Tram A " Chemin Long"
| Étage | Type | Surfaces | Dispo | Loyer | Charges | Type de bailRév. annuelle |
|---|---|---|---|---|---|---|
| RDC | Bureaux | 114,78 | Immédiate | 130 HT/HC/m²/an | 45 m²/an HT | 3-6-9 ansILAT Indice des Loyers des Activités Tertiaires |
| RDC | Bureaux | 510,76 | Immédiate | 103,77 HT/HC/m²/an | 20,65 m²/an HT | 3-6-9 ansILAT Indice des Loyers des Activités Tertiaires |
Impôt Foncier : 12 €/HT/m²/an
Régime Fiscal : T.V.A.
Dépôt de garantie : 3 mois de loyer HT/ HC
Honoraires : 15% HT du loyer annuel HT/HC à la charge du Preneur
Information sur le Bail :
Possibilité de bail dérogatoire ou professionnel Les charges comprennent : FGT, assurance bailleur, entretien ascenseur, entretien des communs, entretien espace vert, entretien portail, vérification périodique, entretien CVC, entretien divers, sécurité incendie, électricité des communs (pour le Bâtiment C Lot de 114,78 m²)
Prestations :
- Immeuble récent
- Ascenseurs normes PMR
- Parties communes rénovées
- Sanitaires communs normes PMR
- Espaces verts
- Sol moquette
- Faux plafond
- Climatisation réversible
- Cloisonnement amovible
- Parking extérieur
- Espaces extérieurs avec tables
- Possibilité de normes ERP
- Surface RDC : 625,54 m²
Accessibilité:
Route Rocade sortie n°11
Bus Bus lignes 30/36 "Chateau Rouquey"
Tram A proximité de la ligne Tram A " Chemin Long" à 1 km
Les informations sur les risques auxquels ce bien est exposé sont disponibles sur le site Géorisques : www.georisques.gouv.fr
Voir plus
Afficher les consommations énergétiques
Favoris
Exporter
Appeler
Contacter
Signaler cette annonce
