Créée en 2014, BIE - Bordeaux Immobilier Entreprises est composée d’une équipe de consultants confirmés dans le domaine de la location et la vente des différents types d’actifs immobiliers (Bureau ...
En savoir plus

2 269 m² divisible dès 390 m²
HT HC
Côté Ouest - Location bureau - 2269 m²
Mérignac (33700)
Dernière mise à jour : Il y a 3 mois
Immeuble Côté Ouest
Situé à proximité du Pôle Santé (Clinique du Sport), accès direct par la sortie 12, COTE OUEST est composé de 3 bâtiments en R+3 développant 6000 m² sur un site clos et sécurisé
Immeuble en cours de certification BREEAM IN USE - VERY GOOD
Impôt Foncier : 16,72 €/HT/m2/an
Régime Fiscal : T.V.A.
Dépôt de garantie : 3 mois de loyer HT/HC
Honoraires : 15 % HT du loyer annuel HT à la charge du Preneur
Prestations :
Accessibilité:
Bus Ligne 30
Sortie rocade Sortie 12
Les informations sur les risques auxquels ce bien est exposé sont disponibles sur le site Géorisques : www.georisques.gouv.fr
Situé à proximité du Pôle Santé (Clinique du Sport), accès direct par la sortie 12, COTE OUEST est composé de 3 bâtiments en R+3 développant 6000 m² sur un site clos et sécurisé
Immeuble en cours de certification BREEAM IN USE - VERY GOOD
| Étage | Type | Surfaces | Dispo | Loyer | Charges | Type de bailRév. annuelle |
|---|---|---|---|---|---|---|
| 3 | Bureaux | 594 | Immédiate | 130 HT/HC/m²/an | 32,29 m²/an HT | 3-6-9 ansILAT Indice des Loyers des Activités Tertiaires |
| 2 | Bureaux | 638 | Immédiate | 130 HT/HC/m²/an | 32,29 m²/an HT | 3-6-9 ansILAT Indice des Loyers des Activités Tertiaires |
| 1 | Bureaux | 647 | Immédiate | 130 HT/HC/m²/an | 32,29 m²/an HT | 3-6-9 ansILAT Indice des Loyers des Activités Tertiaires |
| 3 | Bureaux | 390 | Immédiate | 130 HT/HC/m²/an | 32,29 m²/an HT | 3-6-9 ansILAT Indice des Loyers des Activités Tertiaires |
Impôt Foncier : 16,72 €/HT/m2/an
Régime Fiscal : T.V.A.
Dépôt de garantie : 3 mois de loyer HT/HC
Honoraires : 15 % HT du loyer annuel HT à la charge du Preneur
Prestations :
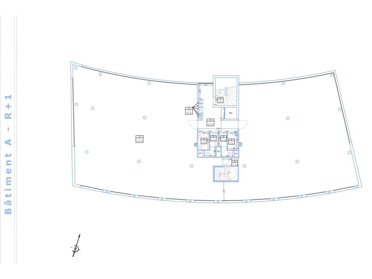
- BATIMENT A :
- Les plateaux sont majoritairement en open space avec quelques bureaux d'appoint,
- Douche au R+1,
- Terrasse privative au R+3,
- Capacitaire de 50 personnes par étage,
- Local informatique en R+2 et R+1,
- Chaque étage est divisible en deux lots (2 compteurs),
- Stores intérieurs screen.
- BATIMENT B : plateau aménagé, cloisons amovibles.
- Chaque bâtiment offre en rez-de-chaussée un espace cafétéria commun avec kitchenette
- Terrasse de 57m2 et passerelle accessibles pour les plateaux en R+1,
- Climatisation réversible en faux plafonds
- Faux-plafonds dalles minérales avec pavés LED
- Moquette, plinthes techniques périphériques équipées courant fort/courant faible.
- Stationnement couvert (600 euros HT/U/an) et extérieur (300 eurosHT/U/an) - très bon RATIO !
Accessibilité:
Bus Ligne 30
Sortie rocade Sortie 12
Les informations sur les risques auxquels ce bien est exposé sont disponibles sur le site Géorisques : www.georisques.gouv.fr
Voir plus
Afficher les consommations énergétiques
Localisation et transport aux alentours
Favoris
Exporter
Appeler
Contacter
Signaler cette annonce
