L’agence CBRE Bordeaux conseille et accompagne les chefs d’entreprise dans leurs projets immobiliers quels que soient leur taille et leur secteur d’activité. Spécialistes de la transaction de burea ...
En savoir plus

850 m²
HT HC
Location bureau - 850 m²
Mérignac (33700)
Dernière mise à jour : Il y a 2 jours
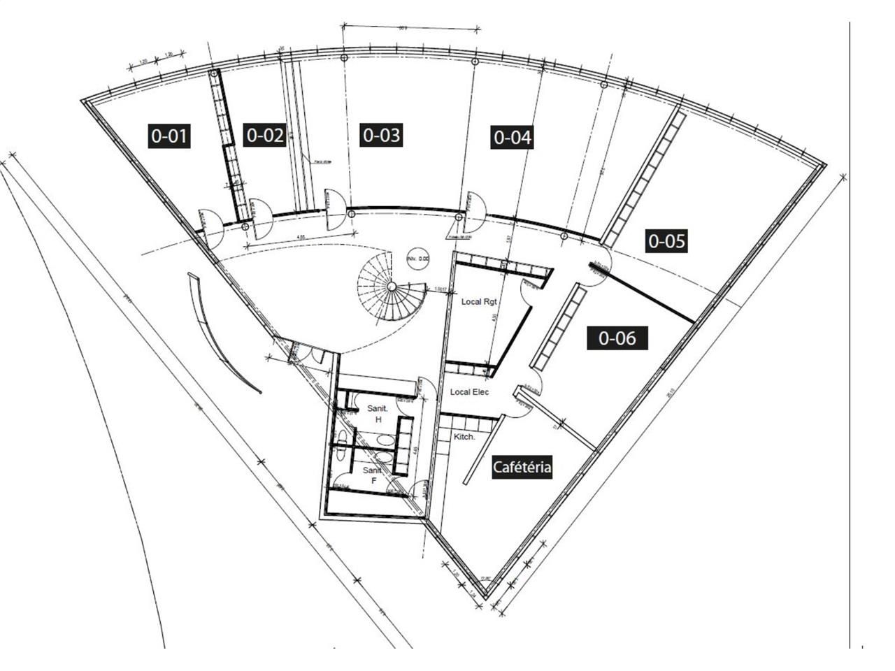
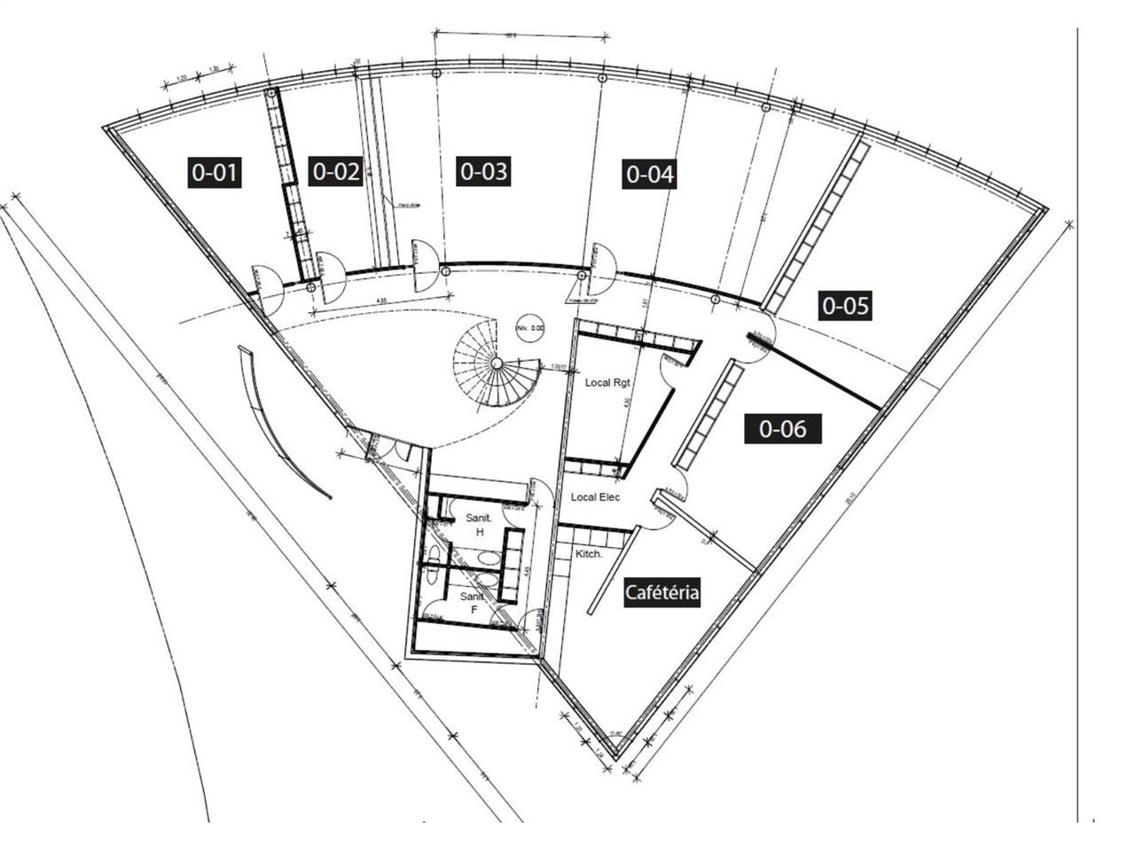
A vendre / à louer, immeuble de bureaux extrêmement bien placé à proximité de l'aéroport de Mérignac et du tramway. Bâtiment indépendant de 850 m² à rénover, disposant de nombreux emplacements de parking extérieurs (38).
N'hésitez pas à nous contacter au 05.56.90.52.30 pour obtenir plus de renseignements ou organiser une visite.
Honoraires : 15% HT du loyer annuel HT/HC à la charge du preneur.
Prestations :
Accessibilité:
Tramway Ligne A - Arrêt "Caroline Aigle"
Bus Ligne 39 - Arrêt "Becquerel"
Aeroport Bordeaux Mérignac à 1,5km
Route Rocade sortie n° 11 à 2km
Autoroute Accès A63 à 9km
Les informations sur les risques auxquels ce bien est exposé sont disponibles sur le site Géorisques : www.georisques.gouv.fr
N'hésitez pas à nous contacter au 05.56.90.52.30 pour obtenir plus de renseignements ou organiser une visite.
| Étage | Type | Surfaces | Dispo | Loyer | Charges | Type de bailRév. annuelle |
|---|---|---|---|---|---|---|
| Bureaux | 850 | Immédiate | 140 m²/an HT HC | 3-6-9 ans |
Honoraires : 15% HT du loyer annuel HT/HC à la charge du preneur.
Prestations :
- Immeuble indépendant
- Excellente visibilité
- Etat d'usage
- Climatisation à refaire
- Toiture en bon état
- 38 emplacements de parking extérieurs
- Loyer indiqué après rénovation des plafonds et luminaires, CVC, curage des plateaux et moquette.
Accessibilité:
Tramway Ligne A - Arrêt "Caroline Aigle"
Bus Ligne 39 - Arrêt "Becquerel"
Aeroport Bordeaux Mérignac à 1,5km
Route Rocade sortie n° 11 à 2km
Autoroute Accès A63 à 9km
Les informations sur les risques auxquels ce bien est exposé sont disponibles sur le site Géorisques : www.georisques.gouv.fr
38 Parkings ext.
Voir plus
Afficher les consommations énergétiques
Favoris
Exporter
Appeler
Contacter
Signaler cette annonce










