Besoin d'un conseil en immobilier ? Nous sommes une équipe dédiée à 100% à nos clients utilisateurs avec des services variés (stratégie immobilière, recherche immobilière, renégociation de bail, dé ...
En savoir plus

851 m² divisible dès 48 m²
HT HC
ARECA - Location bureau - 851 m²
Lyon 7 (69007)
Dernière mise à jour : Il y a 2 mois
A LOUER - Bureaux lumineux et efficients au sein d'un immeuble neuf et indépendant à deux pas de l'avenue Jean Jaurès et du métro ligne B. Lyon (69007)
Immeuble ARECA
À la recherche de bureaux à louer à Lyon 7ème ? Savills vous propose une opportunité exceptionnelle avec des espaces de bureaux lumineux, classés ERP 5 au sein d'un immeuble neuf, indépendant et sécurisé disposant d'une ferme urbaine en toiture et d'une terrasse privative pour le R+2.
Contacter dès à présent notre consultant pour plus d'informations.
Impôt Foncier : 10 €/HT/m²/an
Régime Fiscal : T.V.A.
Dépôt de garantie : 3 mois de loyer HT HC
Honoraires : 15% HT du loyer annuel HT HC à la charge du preneur
Information sur le Bail :
Assurance bailleur et honoraires mission technique compris dans les charges Loyer bureaux Parties Communes (PC) : 200 euros HT HC/m² SUBL /an pour le R+2 : PC 65 m² 108 euros HT HC/m² SUBL /an pour le R+3 : PC 83 + 16 m²
Prestations :
Accessibilité:
Bus n°64 "Jean Vallier" à 400 m
Tramway T6 "Challemel Lacour Artrillerie" à 500 m
Tramway T1 "Debourg" à 1 km
Métro Ligne B "Debourg" à 1 km
SNCF Gare de Jean Macé à 1,6 km
Périphérique Boulevard périphérique Laurent Bonnevay à 3 km
Les informations sur les risques auxquels ce bien est exposé sont disponibles sur le site Géorisques : www.georisques.gouv.fr
Immeuble ARECA
À la recherche de bureaux à louer à Lyon 7ème ? Savills vous propose une opportunité exceptionnelle avec des espaces de bureaux lumineux, classés ERP 5 au sein d'un immeuble neuf, indépendant et sécurisé disposant d'une ferme urbaine en toiture et d'une terrasse privative pour le R+2.
Contacter dès à présent notre consultant pour plus d'informations.
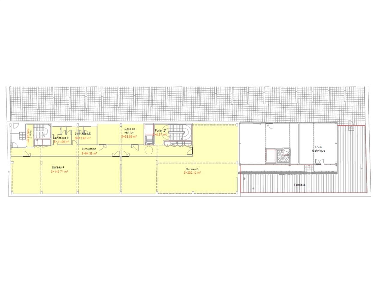
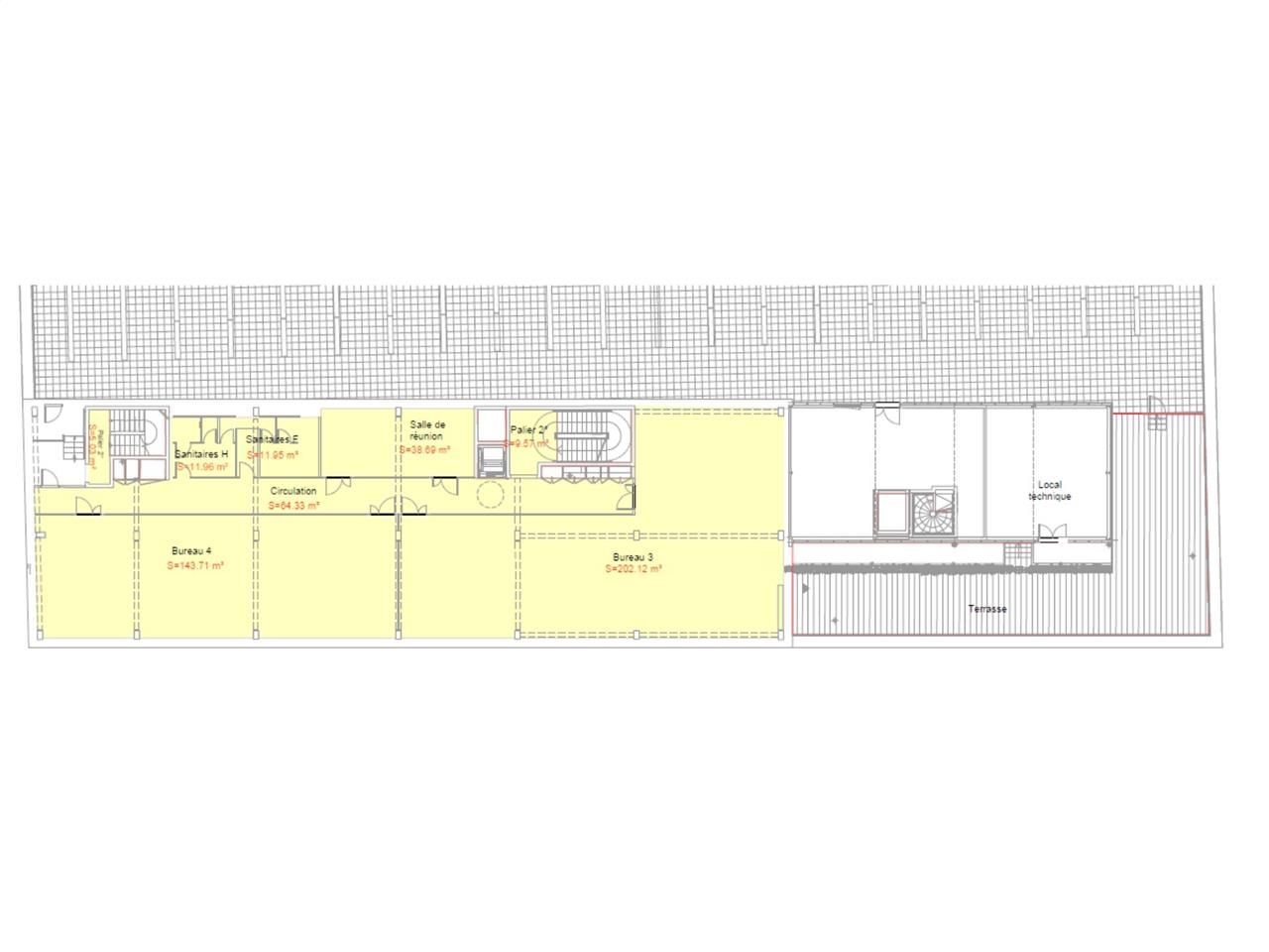
| Étage | Type | Surfaces | Dispo | Loyer | Charges | Type de bailRév. annuelle |
|---|---|---|---|---|---|---|
| 3 | Bureaux | 134 | Immédiate | 179,87 HT HC/m²/an | 40 HT/m²/an | 3-6-9 ansILAT Indice des Loyers des Activités Tertiaires |
| 3 | Bureaux | 117 | Immédiate | 179,44 HT HC/m²/an | 40 HT/m²/an | 3-6-9 ansILAT Indice des Loyers des Activités Tertiaires |
| 3 | Bureaux | 48 | Immédiate | 180,9 HT HC/m²/an | 40 HT/m²/an | 3-6-9 ansILAT Indice des Loyers des Activités Tertiaires |
| 2 | Bureaux | 552 | Immédiate | 200 HT HC/m²/an | 40 HT/m²/an | 3-6-9 ansILAT Indice des Loyers des Activités Tertiaires |
| 2 | Terrasse | 164 | Immédiate | 66 HT HC/m²/an | 3-6-9 ansILAT Indice des Loyers des Activités Tertiaires | |
| SS | Parkings | Immédiate | 1500 HT HC/unité/an | 3-6-9 ansILAT Indice des Loyers des Activités Tertiaires |
Impôt Foncier : 10 €/HT/m²/an
Régime Fiscal : T.V.A.
Dépôt de garantie : 3 mois de loyer HT HC
Honoraires : 15% HT du loyer annuel HT HC à la charge du preneur
Information sur le Bail :
Assurance bailleur et honoraires mission technique compris dans les charges Loyer bureaux Parties Communes (PC) : 200 euros HT HC/m² SUBL /an pour le R+2 : PC 65 m² 108 euros HT HC/m² SUBL /an pour le R+3 : PC 83 + 16 m²
Prestations :
- ARECA est un programme mixte de magasin de vente aux professionnels et de bureaux développant respectivement une surface de 15 137 m² GLA et de 1 407 m² SUBL et accueillant en sous-sol 131 places de stationnement.
- Il fait partie du projet urbain CANOPEA (ancien site des usines Fagor Brandt), opération de construction de 5 immeubles (résidentiels et tertiaires) sur un tènement représentant 62 000m².
- Bâtiment indépendant
- Un ascenseur
- Accès sécurisé par badges
- Ferme urbaine en toiture d'environ 3 000 m²
- Local vélo en sous-sol de 20 racks
- Tableau des surfaces présenté hors parties communes
- Loyer pondéré pour la quote-part de parties communes/lot (nous consulter)
- Bureaux ERP 5 catégorie type W
- Faux plafond
- Hauteur sous plafond 2.70 m
- Climatisation réversible
- Eclairage LED
- Stores électriques
- Sol en dalle moquette
- Plinthes périphériques
- Capacitaire: 1/10 m²
- Les deux lots vacants du R+3 sont indissociables et devront être loués à un seul locataire.
- Immeuble indépendant
Accessibilité:
Bus n°64 "Jean Vallier" à 400 m
Tramway T6 "Challemel Lacour Artrillerie" à 500 m
Tramway T1 "Debourg" à 1 km
Métro Ligne B "Debourg" à 1 km
SNCF Gare de Jean Macé à 1,6 km
Périphérique Boulevard périphérique Laurent Bonnevay à 3 km
Les informations sur les risques auxquels ce bien est exposé sont disponibles sur le site Géorisques : www.georisques.gouv.fr
Voir plus
Afficher les consommations énergétiques
Localisation et transport aux alentours
Favoris
Exporter
Appeler
Contacter
Signaler cette annonce










