Besoin d'un conseil en immobilier ? Nous sommes une équipe dédiée à 100% à nos clients utilisateurs avec des services variés (stratégie immobilière, recherche immobilière, renégociation de bail, dé ...
En savoir plus

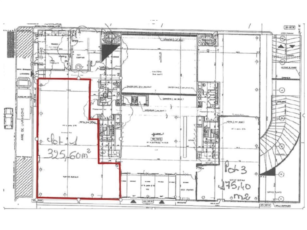
326 m²
HT HC
AUREALYS - Location bureau - 326 m²
Lyon 6 (69006)
Dernière mise à jour : Il y a 2 jours
À louer - Bureaux de 326 m² au coeur de la Part-Dieu
Immeuble AUREALYS
Savills propose à la location des bureaux idéalement situés au coeur du quartier de la Part-Dieu, à deux pas de la gare et de son important hub de transports en commun.
Le plateau, d'une surface de 326 m² en rez-de-chaussée, bénéficie d'une excellente visibilité d'angle, idéale pour valoriser votre activité.
Ces bureaux sont situés au sein de l'immeuble tertiaire Auréalys, conforme à la norme BREEAM IN USE, garantissant un environnement de travail sain et durable.
Disponibilité : immédiate.
Impôt Foncier : 33,5 €/HT/m²/an
Régime Fiscal : T.V.A.
Dépôt de garantie : 3 mois de loyer HT HC
Honoraires : 15% HT du loyer annuel HT HC à la charge du preneur
Information sur le Bail :
Possibilité de bail 3/6/9 ans, mais de préférence, engagement long
Prestations :
Accessibilité:
Bus n°27 et n°C16 " Collège Bellecombe" à 160 m
Bus n° C23 "Thiers-Lafayette" à 200 m
Tramway T1 et T4 "Thiers-Lafayette" au pied de l'immeuble
Métro Ligne B "Brotteaux" à 350 m
A 500 m du pôle multimodal de la gare de La Part-Dieu
SNCF Gare TGV de La Part-Dieu à proximité
Les informations sur les risques auxquels ce bien est exposé sont disponibles sur le site Géorisques : www.georisques.gouv.fr
Immeuble AUREALYS
Savills propose à la location des bureaux idéalement situés au coeur du quartier de la Part-Dieu, à deux pas de la gare et de son important hub de transports en commun.
Le plateau, d'une surface de 326 m² en rez-de-chaussée, bénéficie d'une excellente visibilité d'angle, idéale pour valoriser votre activité.
Ces bureaux sont situés au sein de l'immeuble tertiaire Auréalys, conforme à la norme BREEAM IN USE, garantissant un environnement de travail sain et durable.
Disponibilité : immédiate.
| Étage | Type | Surfaces | Dispo | Loyer | Charges | Type de bailRév. annuelle |
|---|---|---|---|---|---|---|
| RDC | Bureaux | 325,6 | Immédiate | 230 HT HC/m²/an | 49,3 HT/m²/an | 6-9 ansILAT Indice des Loyers des Activités Tertiaires |
| Parkings | Immédiate | 1500 HT HC/unité/an | 6-9 ansILAT Indice des Loyers des Activités Tertiaires |
Impôt Foncier : 33,5 €/HT/m²/an
Régime Fiscal : T.V.A.
Dépôt de garantie : 3 mois de loyer HT HC
Honoraires : 15% HT du loyer annuel HT HC à la charge du preneur
Information sur le Bail :
Possibilité de bail 3/6/9 ans, mais de préférence, engagement long
Prestations :
- Aux portes de la Part-Dieu et à proximité immédiate de la Gare des Brotteaux, un bel immeuble tertiaire emblématique à fort standing, offrant une belle visibilité
- Bureaux en bon état d'usage aménagés en open space et bureaux individuels
- Salle de réunion
- Espace cuisine
- Sanitaires en parties communes
- Situation en RDC avec visibilité
- Cloisons amovibles
- Faux plafond
- Belle hauteur sous plafond : 2.70 m
- Luminaires : dalles LED
- Faux plancher technique
- Sol : moquette
- Système de chaud/froid en faux plafond
- Surface RDC : 326 m²
Accessibilité:
Bus n°27 et n°C16 " Collège Bellecombe" à 160 m
Bus n° C23 "Thiers-Lafayette" à 200 m
Tramway T1 et T4 "Thiers-Lafayette" au pied de l'immeuble
Métro Ligne B "Brotteaux" à 350 m
A 500 m du pôle multimodal de la gare de La Part-Dieu
SNCF Gare TGV de La Part-Dieu à proximité
Les informations sur les risques auxquels ce bien est exposé sont disponibles sur le site Géorisques : www.georisques.gouv.fr
Voir plus
Afficher les consommations énergétiques
Localisation et transport aux alentours
Favoris
Exporter
Appeler
Contacter
Signaler cette annonce










