Faire appel à BNP Paribas Real Estate à Strasbourg permet de bénéficier d’une expertise de plus de 40 ans sur le marché strasbourgeois. Nos équipes possèdent une grande connaissance de ce marché. L ...
En savoir plus

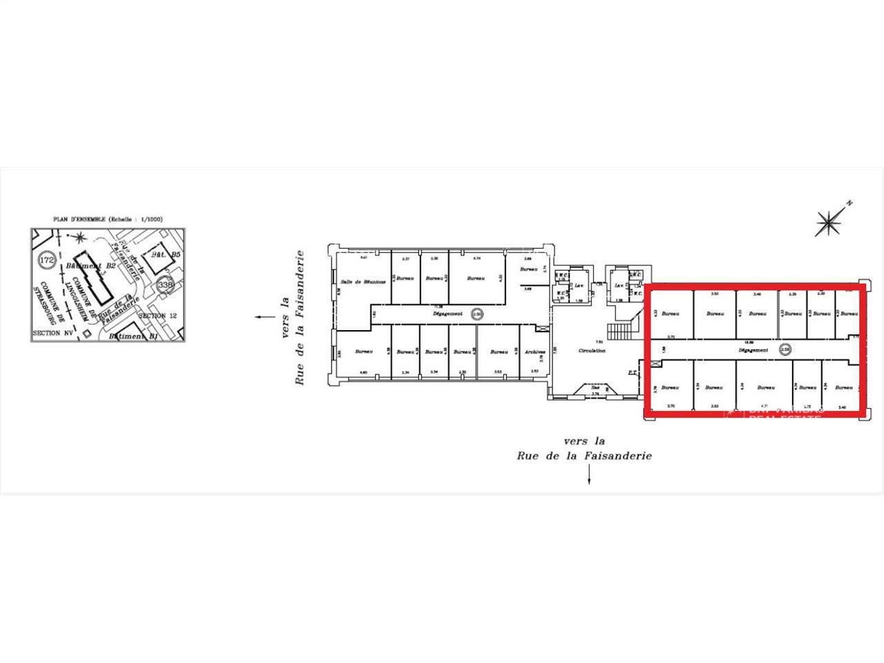
Location bureau - 510 m²
BNP PARIBAS REAL ESTATE vous propose dans un ensemble immobilier à usage de BUREAUX, d'une surface de 250 m² environ PCI, en rez-de-chaussée plain-pied et aux normes d'accessibilité PMR.
Ces BUREAUX aménagés en open-space, disposent une seconde porte, sont climatisés et l'immeuble est FIBRE. Un grand PARKING vous permet de vous garer aisément devant l'immeuble.
Le PARC DES TANNERIES est implanté sur les communes de STRASBOURG-LINGOLSHEIM. Sa situation est idéale avec la proximité du CENTRE-VILLE DE STRASBOURG et de sa GARE TGV (10-15 mn), ainsi que de l'accès rapide à l'AEROPORT international de STRASBOURG-ENTZHEIM à moins de 10 kilomètres par l'autoroute A35. Il bénéficie en outre du Grand Contournement Ouest A355 inauguré en décembre 2021.
Le parc comprend 20 btiments, comportant des locaux d'activité et des BUREAUX, et il propose à l'entrée de STRASBOURG, un nouveau cadre apaisé pour accueillir votre société : au coeur d'un parc RENOVE, avec des ESPACES PAYSAGES AMENAGES, pour un cadre de travail privilégié, sur plus de 30.000 m² de BUREAUX, d'activité et de services.
De plus, le mode de transport doux est largement représenté :
Une piste cyclable longe le parc du nord au sud : le long de la route de Schirmeck et de l'avenue Schumann.
Le Tram B Arrêt des Alouettes au sud du Parc
2 lignes de bus : C1 et 45
La gare de Roethig est à moins de 5 minutes
Ainsi la GARE DE STRASBOURG et l'Aéroport d'Entzheim sont accessibles facilement par la GARE de Rothig.
Les informations sur les risques auxquels ce bien est exposé sont disponibles sur le site Géorisques : www. georisques. gouv. fr
Contactez-nous pour pour une VISITE.
Disponibilité: ImmédiateHonoraires: 15% HT du loyer HT/HC. à la signature du bail
| Fiche technique du bien | |
|---|---|
| Bus | Lignes 1 et 45 - Arrêt TANNERIES |
| TER | Gare Routière Strasbourg-Roethig |
| Desserte routière | A4 / A35 à proximité |
| Aéroport | Strasbourg Entzheim accessible en 10 mn |
| Gare | Gare de Strasbourg TGV accessible en 15 mn |
| Etat de l'immeuble | Etat d'usage |
| Etat des locaux | Etat d'usage |
| Parking(s) | Oui |
| Climatisation | Réversible |
| Accueil | Espace d'attente |
| Environnement de proximité | Parc des Tanneries |
| Hall d'accueil | Collectif |
| Fenêtres | Double vitrage |
| Faux plafond | Dal. fibres minéral. |
| Eclairage Bureaux | Luminaires encastrés |
| Sanitaire(s) | Parties communes |
Surfaces divisibles : 2
| Surface | LoyerHT/HC/m²/an | Étage / Batiment | Infos complémentaires |
| 255 m² | N.C | 0 | B2 - RDC - Droit |
| 255 m² | N.C | 0 | B2 - RDC - Gauche |










