Conseil en immobilier d'entreprise, Cushman & Wakefield est un acteur incontournable au rayonnement international. Cushman & Wakefield offre des solutions dans toutes les étapes que comporte un p ...
En savoir plus



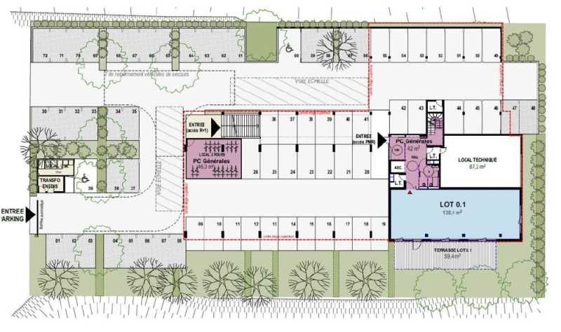
3 048 m² divisible dès 156 m²
HT HC
GREEN LAKE - Location bureau - 3048 m²
Limonest (69760)
Dernière mise à jour : Il y a 3 mois
Offre de bureaux à vendre ou à louer de 3 047 m² au coeur de la Techlid.
Immeuble GREEN LAKE
Cushman & Wakefield vous propose un immeuble neuf de bureaux à vendre ou à louer situés à LIMONEST(69760) au coeur de la Techlid.
Les plateaux de bureaux seront livrés neufs et à aménager au sein d'un immeuble de grand standing.
Le bien à l'architecture novatrice certifié HQE Construction Excellent, est idéalement situé au bord d'un étang et du prestigieux Château de Sans Souci, dans un cadre de vie agréable avec de nombreux services pour les futurs utilisateurs, hôtel, restaurants...
L'immeuble proposera des plateaux lumineux aux prestations soignées pour un confort de travail maximal. Il disposera également de grandes terrasses privatives à chaque étage ainsi que de nombreuses places de parking.
Les informations sur les risques auxquels ce bien est exposé sont disponibles sur le site Géorisques : www.georisques.gouv.fr
Régime Fiscal : T.V.A.
Dépôt de garantie : 3 mois de loyer HT/HC
Paiement Loyer : Trimestriel
Honoraires : 15 % HT du loyer annuel HT/HC à la charge du preneur.
Information sur le Bail :
Loyer parking avec borne électrique : 1000 eurosHT/U/an
Prestations :
Accessibilité:
Accès routier Accès RN6
Accès routier Raccordement M6
Métro Gare de Vaise (métro ligne D) via ligne bus 10E en 15 minutes
Bus Lignes 10 et Ge4 à 4 min à pied
Bus Lignes 21-61-115-118 à 10 min à pied
Les informations sur les risques auxquels ce bien est exposé sont disponibles sur le site Géorisques : www.georisques.gouv.fr
Immeuble GREEN LAKE
Cushman & Wakefield vous propose un immeuble neuf de bureaux à vendre ou à louer situés à LIMONEST(69760) au coeur de la Techlid.
Les plateaux de bureaux seront livrés neufs et à aménager au sein d'un immeuble de grand standing.
Le bien à l'architecture novatrice certifié HQE Construction Excellent, est idéalement situé au bord d'un étang et du prestigieux Château de Sans Souci, dans un cadre de vie agréable avec de nombreux services pour les futurs utilisateurs, hôtel, restaurants...
L'immeuble proposera des plateaux lumineux aux prestations soignées pour un confort de travail maximal. Il disposera également de grandes terrasses privatives à chaque étage ainsi que de nombreuses places de parking.
Les informations sur les risques auxquels ce bien est exposé sont disponibles sur le site Géorisques : www.georisques.gouv.fr
| Étage | Type | Surfaces | Dispo | Loyer | Charges | Type de bailRév. annuelle |
|---|---|---|---|---|---|---|
| RdC | Bureaux | 155,8 | 180 HT/HC/m²/an | 18,03 HT/m²/an | 6-9 ansSur l'indice ILAT | |
| R+1 | Bureaux | 412 | 180 HT/HC/m²/an | 18,03 HT/m²/an | 6-9 ansSur l'indice ILAT | |
| R+1 | Bureaux | 273,5 | 180 HT/HC/m²/an | 18,03 HT/m²/an | 6-9 ansSur l'indice ILAT | |
| R+1 | Bureaux | 227,8 | 180 HT/HC/m²/an | 18,03 HT/m²/an | 6-9 ansSur l'indice ILAT | |
| R+2 | Bureaux | 309,6 | 180 HT/HC/m²/an | 18,03 HT/m²/an | 6-9 ansSur l'indice ILAT | |
| R+2 | Bureaux | 271,7 | 180 HT/HC/m²/an | 18,03 HT/m²/an | 6-9 ansSur l'indice ILAT | |
| R+2 | Bureaux | 271,2 | 180 HT/HC/m²/an | 18,03 HT/m²/an | 6-9 ansSur l'indice ILAT | |
| R+2 | Bureaux | 267,1 | 180 HT/HC/m²/an | 18,03 HT/m²/an | 6-9 ansSur l'indice ILAT | |
| R+3 | Bureaux | 344 | 180 HT/HC/m²/an | 18,03 HT/m²/an | 6-9 ansSur l'indice ILAT | |
| R+3 | Bureaux | 267,9 | 180 HT/HC/m²/an | 18,03 HT/m²/an | 6-9 ansSur l'indice ILAT | |
| R+3 | Bureaux | 247,1 | 180 HT/HC/m²/an | 18,03 HT/m²/an | 6-9 ansSur l'indice ILAT | |
| Autre | 318 | 50 HT/HC/m²/an | 6-9 ansSur l'indice ILAT | |||
| Parkings | 800 HT/HC/U/an | 6-9 ansSur l'indice ILAT |
Régime Fiscal : T.V.A.
Dépôt de garantie : 3 mois de loyer HT/HC
Paiement Loyer : Trimestriel
Honoraires : 15 % HT du loyer annuel HT/HC à la charge du preneur.
Information sur le Bail :
Loyer parking avec borne électrique : 1000 eurosHT/U/an
Prestations :
- ERP : ERP possible
- Au bord d'un étang et du prestigieux Château de Sans Souci
- Architecture novatrice
- Confort de travail optimal
- Nombreuses terrasses ou balcons
- Luminosité naturelle des bureaux
- Idéal siège social ou pour PME
- Signalétique possible si mono-utilisateur
- Bâtiment certification HQE B.D niveau « Excellent ».
- Attestation « Ready to Osmoz »
- Accès PMR
- Immeuble Code du travail
- Possibilité ERP 5 type W
- Contrôle d'accès par badge-visiophone
- Local vélos
- Gestion technique du bâtiment
- Désenfumage naturel des plateaux
- Trame de façades de 1,35 m offrant une réelle adaptabilité du cloisonnement
- Les plateaux seront livrés neufs à aménager
- Divisibilité possible par étage complet
- Faux-plafonds en fibre minérale avec dalles LED, réglables en 1er jour - détection de présence et luminosité
- Hauteur sous Plafond : 2,70m
- Faux-planchers avec dalles moquette
- Stores intérieurs
- Brise-Soleil Orientables en façade ouest
- Climatisation Rafraîchissement / Chauffage par un système à détente directe- CTA double flux
- Surface RDC : 155,8 m²
Accessibilité:
Accès routier Accès RN6
Accès routier Raccordement M6
Métro Gare de Vaise (métro ligne D) via ligne bus 10E en 15 minutes
Bus Lignes 10 et Ge4 à 4 min à pied
Bus Lignes 21-61-115-118 à 10 min à pied
Les informations sur les risques auxquels ce bien est exposé sont disponibles sur le site Géorisques : www.georisques.gouv.fr
Emplacement(s) de Parking: 72 places
Voir plus
Afficher les consommations énergétiques
Localisation et transport aux alentours
Favoris
Exporter
Appeler
Contacter
Signaler cette annonce










