L’agence CBRE Lille conseille et accompagne les chefs d’entreprise dans leurs projets immobiliers quels que soient leur taille et leur secteur d’activité. Spécialistes de la transaction de bureaux, ...
En savoir plus

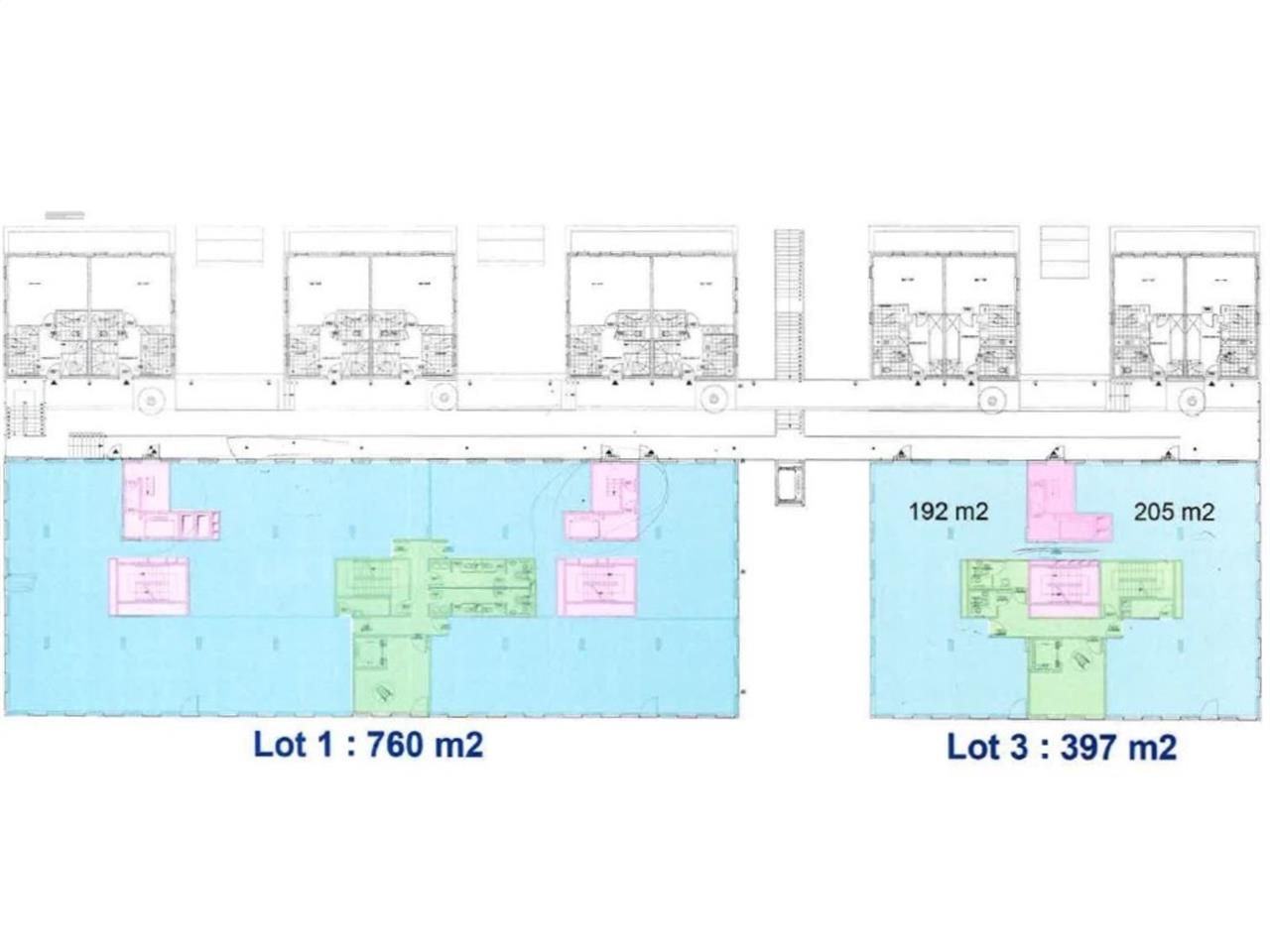
1 182 m² divisible dès 406 m²
HT HC
Location bureau - 1182 m²
Lille (59000)
Dernière mise à jour : Il y a 3 mois
BUREAUX A LOUER - QUARTIER EURALILLE
Dans le quartier d'affaires d'Euralille, sur l'Avenue du Président Hoover, nous avons le plaisir de vous proposer ces surfaces de bureaux d'une surface totale de 1 579 m² sur 2 étages (1er et 2ème étage). Des places de parking en viennent compléter ce lot.
Ces locaux sont disponibles immédiatement, pour toutes informations complémentaires, veuillez nous contacter au 03 59 28 39 82.
Impôt Foncier : 24,32 €/HT/m²/an
Régime Fiscal : T.V.A.
Dépôt de garantie : 3 mois de loyer HT/HC
Honoraires : 15% HT du loyer annuel HT HC à la charge du preneur
Prestations :
Accessibilité:
Metro Ligne 1 station : Lille Grand Palais
Bus Ligne 18 : Le bois habite
Autoroute A1
Route Voie Rapide Urbaine
SNCF Gares TER & TGV à 12 min
Les informations sur les risques auxquels ce bien est exposé sont disponibles sur le site Géorisques : www.georisques.gouv.fr
Dans le quartier d'affaires d'Euralille, sur l'Avenue du Président Hoover, nous avons le plaisir de vous proposer ces surfaces de bureaux d'une surface totale de 1 579 m² sur 2 étages (1er et 2ème étage). Des places de parking en viennent compléter ce lot.
Ces locaux sont disponibles immédiatement, pour toutes informations complémentaires, veuillez nous contacter au 03 59 28 39 82.
| Étage | Type | Surfaces | Dispo | Loyer | Charges | Type de bailRév. annuelle |
|---|---|---|---|---|---|---|
| 2 | Bureaux | 776 | Immédiate | 175 m²/an HT HC | 26,68 HT/m²/an | 3-6-9 ansIndice ILAT |
| 2 | Bureaux | 406 | Immédiate | 175 m²/an HT HC | 26,68 HT/m²/an | 3-6-9 ansIndice ILAT |
Impôt Foncier : 24,32 €/HT/m²/an
Régime Fiscal : T.V.A.
Dépôt de garantie : 3 mois de loyer HT/HC
Honoraires : 15% HT du loyer annuel HT HC à la charge du preneur
Prestations :
- Bureaux climatisés
- Cloisonnement
- 36 places de parking en sous-sol
- (dans le bâtiment F)
- Loyer : 1 200 euros HT/U/an
Accessibilité:
Metro Ligne 1 station : Lille Grand Palais
Bus Ligne 18 : Le bois habite
Autoroute A1
Route Voie Rapide Urbaine
SNCF Gares TER & TGV à 12 min
Les informations sur les risques auxquels ce bien est exposé sont disponibles sur le site Géorisques : www.georisques.gouv.fr
Voir plus
Afficher les consommations énergétiques
Favoris
Exporter
Appeler
Contacter
Signaler cette annonce










