BNP Paribas Real Estate Lille, qui revendique plus de 40 ans de présence sur le marché lillois, est composé d''une équipe expérimentée aux expertises diversifiées. Elle est principalement composée ...
En savoir plus

Location bureau - 6068 m²
Nous vous proposons un immeuble de bureaux neufs sur Euratechnologies.
Euratechnologies :
300 entreprises
Près de 4 500 salariés
1er accélérateur / incubateur en France --> 10ème en Europe
400 M € de levées de fonds depuis 2009
500 événements annuels
Accessibilité :
Gare " Lille Flandres " à 13 min en métro (11 stations)
TGV " Lille Europe " à 15 min en métro (12 stations)
Station " Canteleu " (ligne 2) à 850 mètres, accessible à pied
Accès routiers à proximité immédiate A1 Lille/Paris - A25 Lille/Dunkerque
Lignes de bus en pied d'immeuble (18 et 76)
Station V'Lille " Euratechnologies " en pied d'immeuble
Aéroport " Lille-Lesquin " à 18 min en voiture
Prestations :
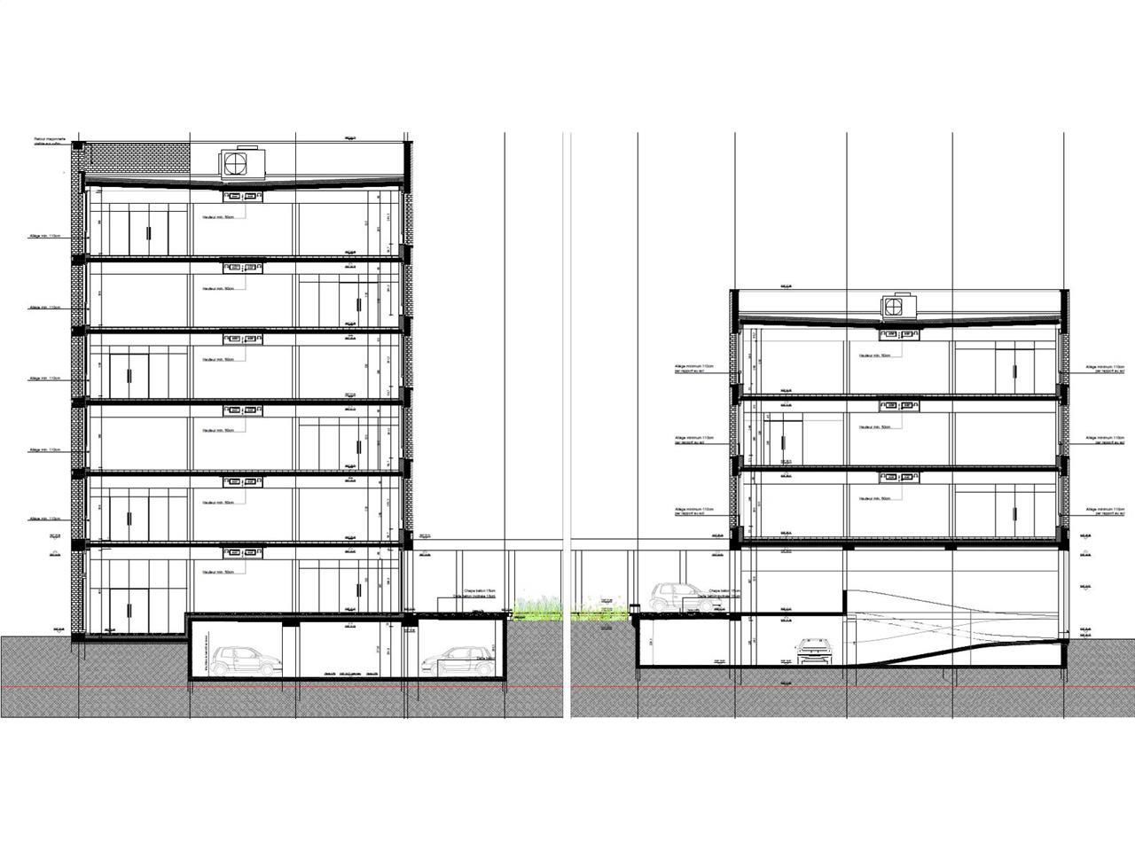
Les espaces de parking se composent d'une part d'une disposition classique semi enterrée et d'autre part d'une disposition en balcon sous forme d'une grande halle.
Un vaste jardin rehaussé en longueur s'intégrera entre les deux btiments.
Le projet s'engage à respecter les niveaux de performance ENERGIE 2 CARBONE 1 du label E+C-.
ERP de type W 5ème catégorie.
Chauffage par système de panneaux rayonnants à eau chauffée.
Système de ventilation mécanique.
Ascenseurs desservant chaque niveau.
Faux-plafonds Panneaux acoustiques.
Faux-planchers techniques.
Sol moquette / carrelage.
Ventilation double flux du btiment.
Sanitaires PMR.
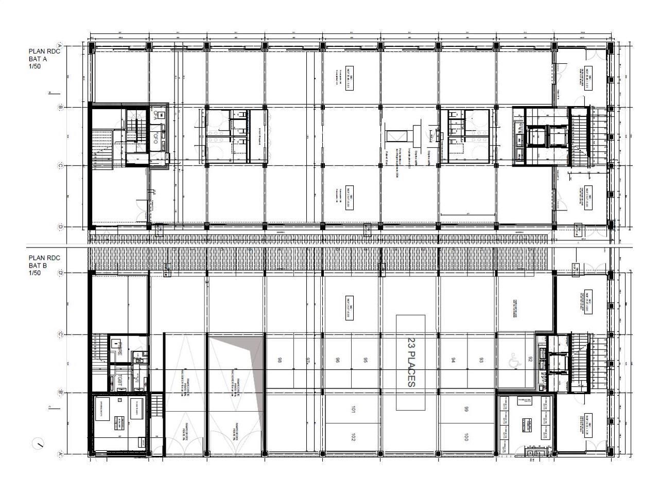
Parking : 102 places, dont 3 PMR
Disponibilité : Immédiate
Vous souhaitez trouver des espaces de bureaux, un plateau ou un local professionnel dans la métropole lilloise/ Lille ? Nous vous proposons une large gamme d'offres de location et de vente dans le Nord, adaptées aux besoins de votre entreprise. Consultez nos surfaces disponibles et choisissez l'unité de bureaux qui dynamisera votre activité dans le Nord-Pas-de-Calais.
Toutes nos offres de bureaux sur https://www.bnppre.fr/bureau/nord-59/
Disponibilité: ImmédiateHonoraires: Nous consulter. à la signature du bail
| Fiche technique du bien | |
|---|---|
| Métro | M2 Station « Canteleu » à 850 mètres à pied |
| Bus | Lignes 18 et 76 en pied d'immeuble |
| TER | Gare à 13 min en métro (11 stations) |
| Desserte routière | VRU, A1, A22, A23, A25, A27 |
| Aéroport | Lille lesquin à 18 min en voiture |
| Gare | Europe TGV à 15 min en métro (12 stations) |
| Label actuel | ENERGIE 2 CARBONE 1 du label E+C- |
| Etat de l'immeuble | Neuf |
| Etat des locaux | Neuf |
| Type chauffage | panneaux rayonnants à eau chauffée |
| Source chauffage | Gaz sur panneau rayonnant |
| Ascenseur(s) | Oui |
| Faux plancher | Oui |
| Faux plafond | panneaux acoustiques |
| Sol bureaux | Moquette/Carrelage |
| Sanitaire(s) | PMR |
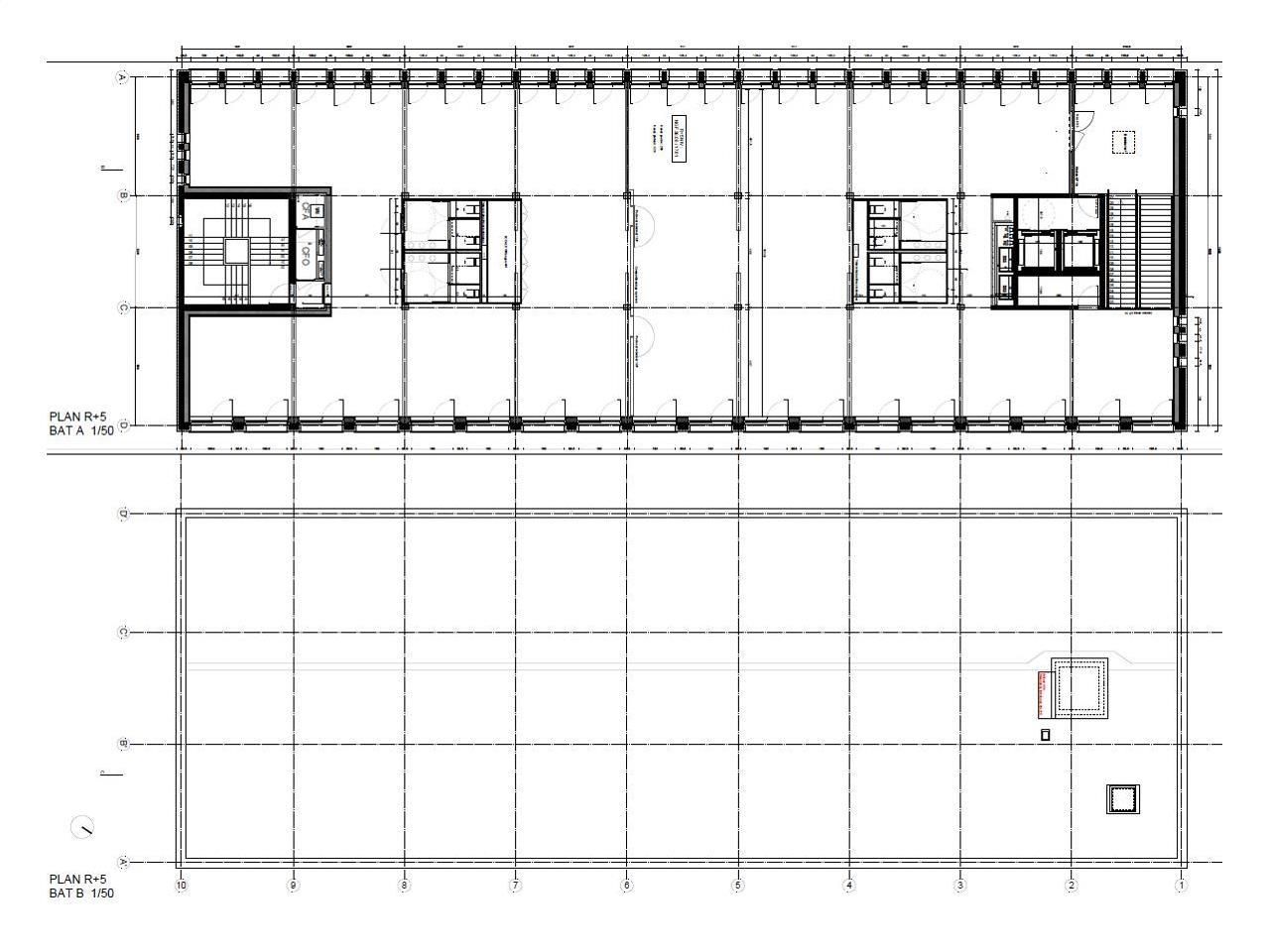
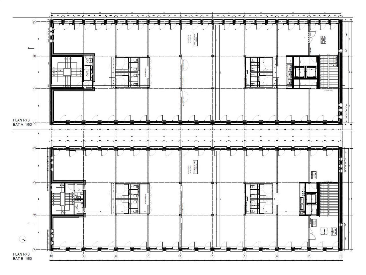
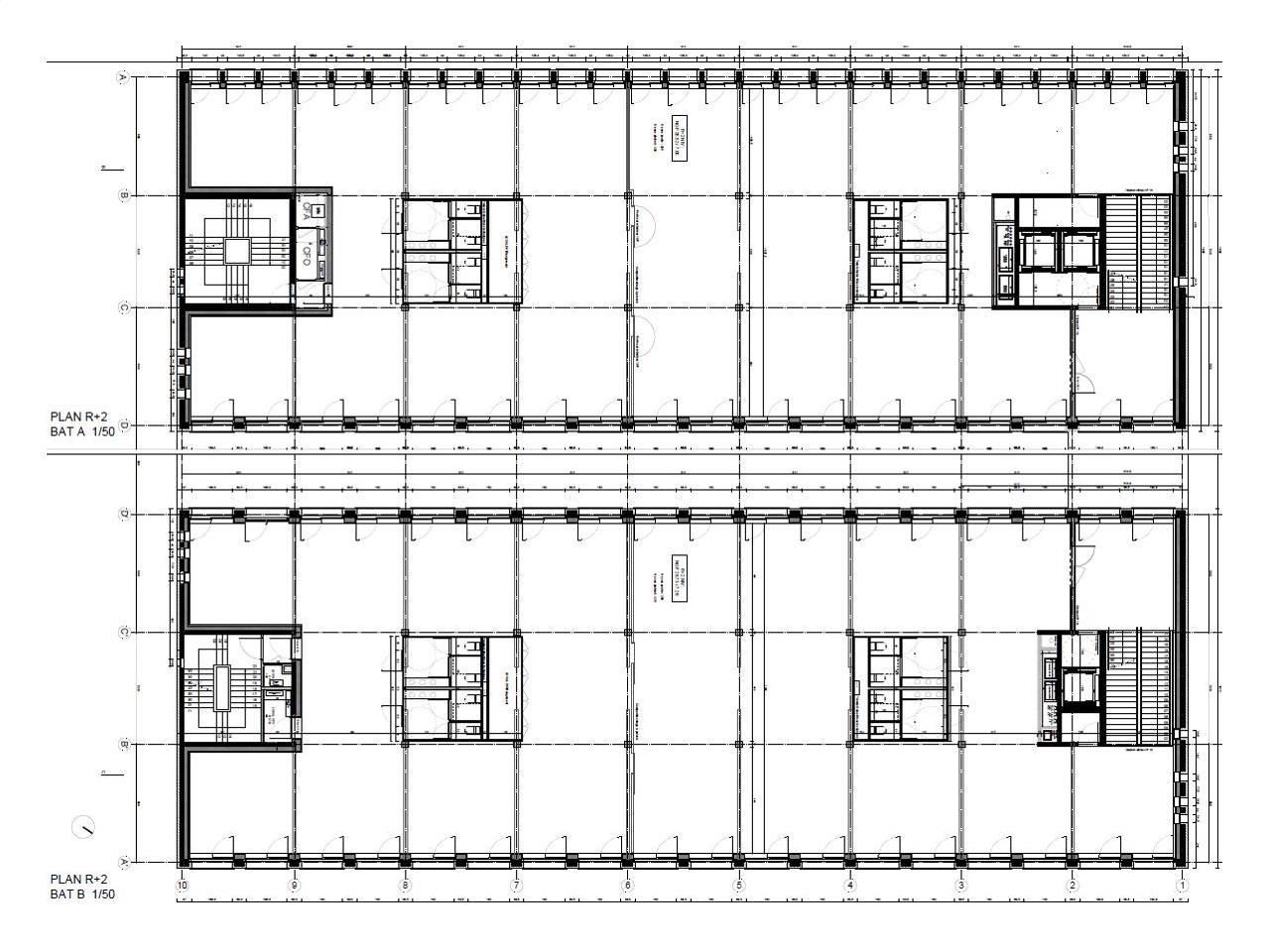
Surfaces divisibles : 9
| Surface | LoyerHT/HC/m²/an | Étage / Batiment | Infos complémentaires |
| 620 m² | N.C | 0 | ILOT 11 - BATIMENT A - RDC |
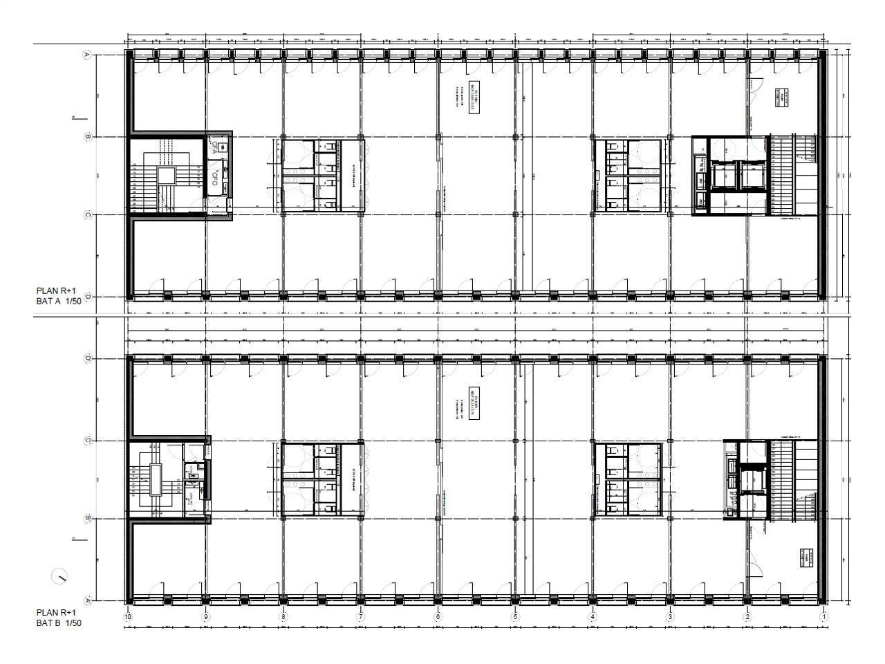
| 661 m² | N.C | 1 | ILOT 11 - BATIMENT A - R+1 |
| 708 m² | N.C | 1 | ILOT 11 - BATIMENT B - R+1 |
| 711 m² | N.C | 2 | ILOT 11 - BATIMENT B - R+2 |
| 662 m² | N.C | 2 | ILOT 11 - BATIMENT A - R+2 |
| 664 m² | N.C | 3 | ILOT 11 - BATIMENT A - R+3 |
| 711 m² | N.C | 3 | ILOT 11 - BATIMENT B - R+3 |
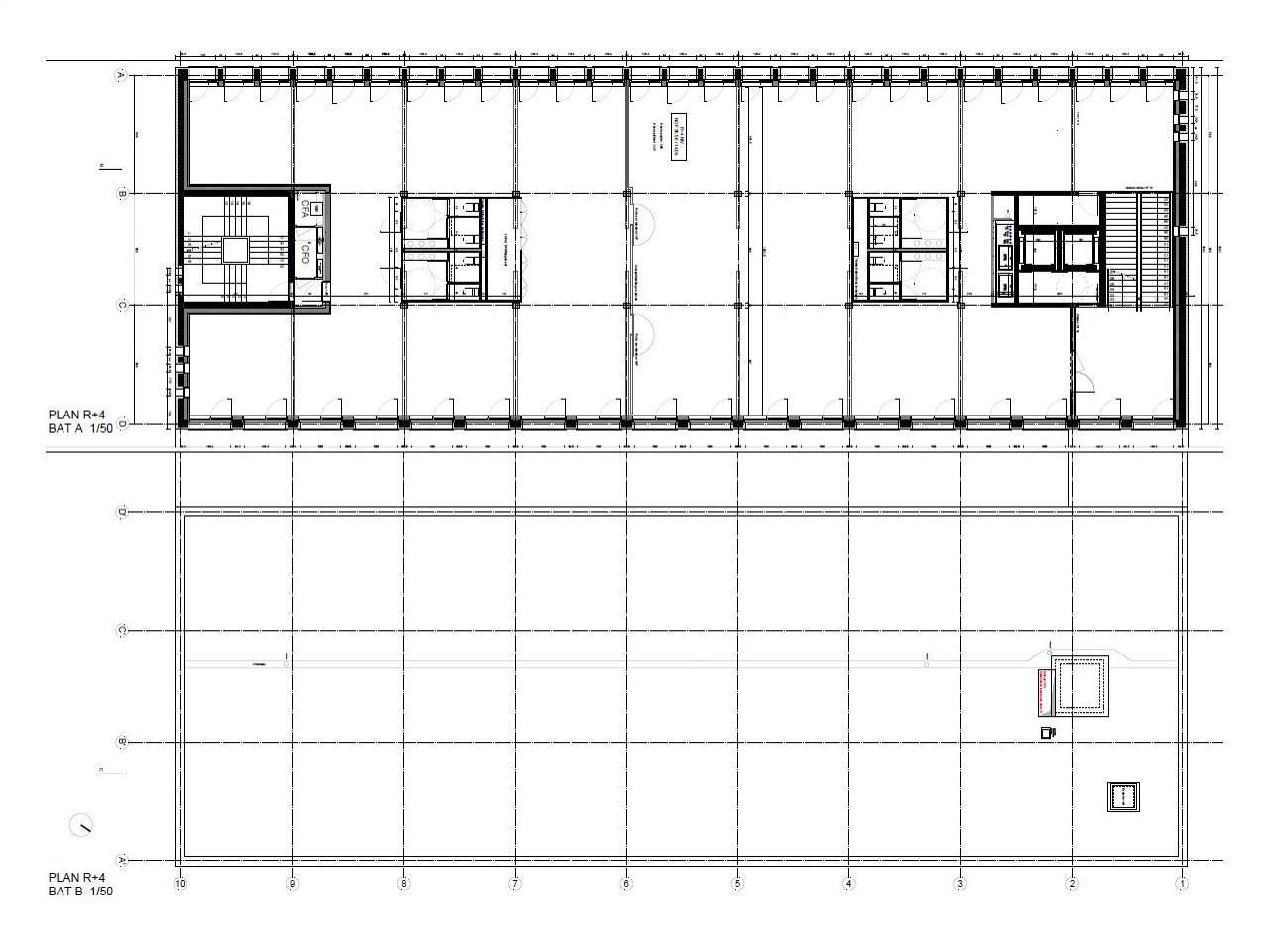
| 665 m² | N.C | 4 | ILOT 11 - BATIMENT A - R+4 |
| 667 m² | N.C | 5 | ILOT 11 - BATIMENT A - R+5 |










