BNP Paribas Real Estate Lille, qui revendique plus de 40 ans de présence sur le marché lillois, est composé d''une équipe expérimentée aux expertises diversifiées. Elle est principalement composée ...
En savoir plus

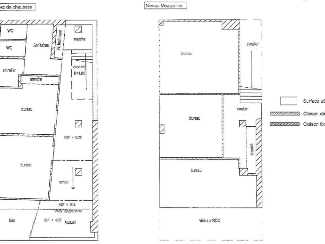
ART CITY - Location bureau - 129 m²
Il est desservi par de nombreux moyens de transports (bus, gare TER, TGV) et à proximité de nombreux restaurants et services (Centre commercial Eurallile)
Accessibilité :
TGV " Lille Europe " à 160m
Gare " Lille Flandres " à 610 m
Station tramway " Lille Europe " (Vers Gare Lille Flandres ou Eurotéléport)
Station métro " Lille Europe " (M2)
Accès routiers à proximité immédiate (VRU, A1, A22, A23, A25, A27)
Arrêt de bus " Lille Europe " - (Lignes : L5, L90, L91, L91E, 16, 50, 86, 88)
Aéroport " Lille-Lesquin " à 8,8 kms
Prestations :
Entrée indépendante
Effet d'enseigne
Climatisation réversible
Ensemble immobilier réparti sur 2 niveaux (RDC et R+1)
Aménagement : accueil, bureaux, salle de réunion, open-space...
Disponibilité : 01/01/2026
Toutes nos offres de bureaux sur https://www.bnppre.fr/bureau/nord-59/
Disponibilité: 01/07/2026Honoraires: 15% HT du loyer HT/HC. à la signature du bail
| Fiche technique du bien | |
|---|---|
| Métro | Station métro « Lille Europe » M2 |
| Bus | Arrêt de bus : Lillle Europe - lignes : L5, L90, L91, L91E, 16, 50, 86, 88) 160 m |
| Tramway | Station tramway « Lille Europe » |
| Aéroport | Lille lesquin 9 km |
| Gare | Europe 160 m |
| Gare | Flandre 610 m |










