L’agence CBRE Lille conseille et accompagne les chefs d’entreprise dans leurs projets immobiliers quels que soient leur taille et leur secteur d’activité. Spécialistes de la transaction de bureaux, ...
En savoir plus

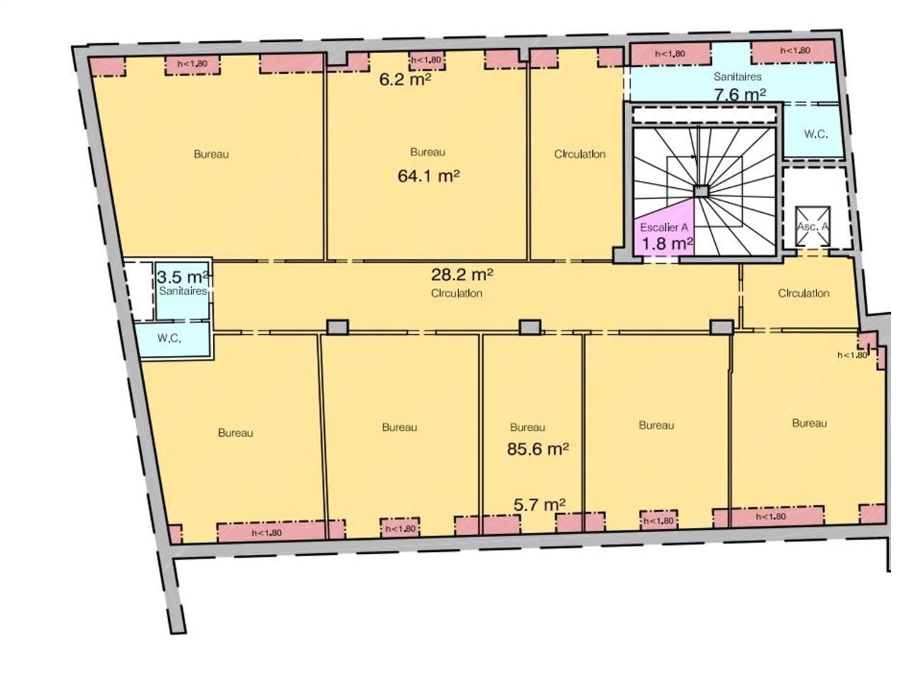
852 m² divisible dès 47 m²
HT HC
Location bureau - 852 m²
Lille (59000)
Dernière mise à jour : Il y a 9 mois
CBRE LILLE vous propose à la location ces surfaces de bureaux au sein d'un immeuble tertiaire de standing et rénové idéalement situé entre les gares et la grand place. Les surfaces sont rénovées et prêtes à l'emploi. L'immeuble est PMR. Des places de parkings sont disponibles en souterrain. N'hésitez pas à nous contacter.
Régime Fiscal : T.V.A.
Dépôt de garantie : 3 mois de loyer HT/HC
Paiement Loyer : trimestriel
Honoraires : 15% HT du loyer annuel HT HC à la charge du preneur
Prestations :
Accessibilité:
Metro Ligne 1 & 2 station : Gare Lille Flandres
Bus Lignes 10, 14, 51, 86, 88 arrêt : "Lycée Pasteur"
Tramway arrêt : "Gare Lille Flandres"
Autoroute A1
Route Boulevard périphérique
Stations V"Lille à proximité
Les informations sur les risques auxquels ce bien est exposé sont disponibles sur le site Géorisques : www.georisques.gouv.fr
| Étage | Type | Surfaces | Dispo | Loyer | Charges | Type de bailRév. annuelle |
|---|---|---|---|---|---|---|
| RDC | Bureaux | 47,07 | Immédiate | 213,7 m²/an HT HC | 43 HT/m²/an | 3-6-9 ansIndice ILAT |
| 1 | Bureaux | 345,2 | Immédiate | 190,1 m²/an HT HC | 36,9 HT/m²/an | 3-6-9 ansIndice ILAT |
| 5 | Bureaux | 187,61 | Immédiate | 224,9 m²/an HT HC | 39,36 HT/m²/an | 3-6-9 ansIndice ILAT |
| 5 | Bureaux | 272 | Immédiate | 3-6-9 ansIndice ILAT |
Régime Fiscal : T.V.A.
Dépôt de garantie : 3 mois de loyer HT/HC
Paiement Loyer : trimestriel
Honoraires : 15% HT du loyer annuel HT HC à la charge du preneur
Prestations :
- Accès PMR
- Ascenseur
- Sanitaires
- Parking à vélo
- RDC : 1 place de parking intérieur ; 1 560,00 euros/an
- R+3 : 1 place de parking intérieur ; 1 560,00 euros/an
- R+5 - bat C : 1 place de parking intérieur + 1 place au parking Opéra Carnot ; 3 120,00 euros/an
- R+5 - bat A : 2 places de parking intérieur + 1 place au parking Opéra Carnot ; loyer à confirmer
- Inclues dans les charges :
- TF & TOEM
- Electricité des communs
- Nettoyage des communs
- Ascenseurs
- Contrat d'entretien système incendie
- Contrat d'entretien portes automatiques
- Contrat annuel de dératisation
- Contrat annuel de toiture
- Possibilité de rassembler les deux surfaces du R+5, avec possibilité ERP 5
- Surface RDC : 47,07 m²
Accessibilité:
Metro Ligne 1 & 2 station : Gare Lille Flandres
Bus Lignes 10, 14, 51, 86, 88 arrêt : "Lycée Pasteur"
Tramway arrêt : "Gare Lille Flandres"
Autoroute A1
Route Boulevard périphérique
Stations V"Lille à proximité
Les informations sur les risques auxquels ce bien est exposé sont disponibles sur le site Géorisques : www.georisques.gouv.fr
Voir plus
Afficher les consommations énergétiques
Favoris
Exporter
Appeler
Contacter
Signaler cette annonce










