L’agence CBRE Lille conseille et accompagne les chefs d’entreprise dans leurs projets immobiliers quels que soient leur taille et leur secteur d’activité. Spécialistes de la transaction de bureaux, ...
En savoir plus

265 m²
HT HC
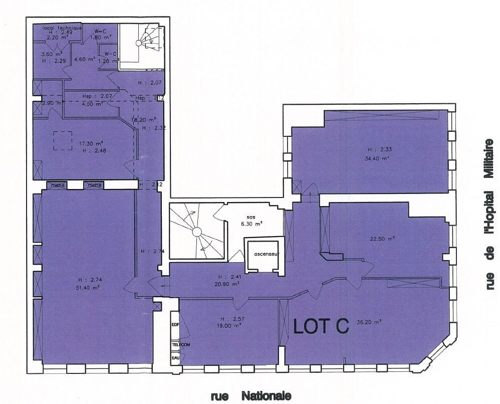
Location bureau - 265 m²
Lille (59000)
Dernière mise à jour : Hier
Idéalement situé en plein centre-ville de Lille, à deux pas de la Grand Place, nous vous proposons une surface de bureaux climatisée et déjà aménagée. A proximité immédiate de l'immeuble, vous trouverez de très nombreux services, les transports en commun (métro - arrêt Rihour / gares SNCF) ainsi que de nombreux parkings publics.
Impôt Foncier : 25 €/HT/m²/an
Régime Fiscal : T.V.A.
Dépôt de garantie : 3 mois de loyer HT/HC
Paiement Loyer : trimestriel
Prestations :
Accessibilité:
Metro Ligne 1 station : Rihour
SNCF Gare TER & TGV Lille-Flandres à 10 min
Autoroute A1
Route Boulevard Périphérique, VRU
Stations V'Lille à proximité
Les informations sur les risques auxquels ce bien est exposé sont disponibles sur le site Géorisques : www.georisques.gouv.fr
| Étage | Type | Surfaces | Dispo | Loyer | Charges | Type de bailRév. annuelle |
|---|---|---|---|---|---|---|
| 2 | Bureaux | 265 | Immédiate | 180 m²/an HT HC | 11 HT/m²/an | Indice ILAT |
Impôt Foncier : 25 €/HT/m²/an
Régime Fiscal : T.V.A.
Dépôt de garantie : 3 mois de loyer HT/HC
Paiement Loyer : trimestriel
Prestations :
- Ascenseur
- Climatisation réversible
- Faux plafond
- Fibre optique
- Plateau rénové
- Possibilité de bail dérogatoire
Accessibilité:
Metro Ligne 1 station : Rihour
SNCF Gare TER & TGV Lille-Flandres à 10 min
Autoroute A1
Route Boulevard Périphérique, VRU
Stations V'Lille à proximité
Les informations sur les risques auxquels ce bien est exposé sont disponibles sur le site Géorisques : www.georisques.gouv.fr
Voir plus
Afficher les consommations énergétiques
Favoris
Exporter
Appeler
Contacter
Signaler cette annonce










