L’agence CBRE Nantes conseille et accompagne les chefs d’entreprise dans leurs projets immobiliers quels que soient leur taille et leur secteur d’activité. Spécialistes de la transaction de bureaux ...
En savoir plus

2 352 m² divisible dès 157 m²
HT HC
Location bureau - 2352 m²
La-Chapelle-sur-Erdre (44240)
Dernière mise à jour : Il y a 11 jours
Sur le secteur de LA CHAPELLE SUR ERDRE, CBRE vous propose un immeuble indépendant en R+2 au sein du Parc des Impressionnistes : LE RENOIR. L'immeuble fait actuellement l'objet d'une certification BREEAM in Use Very Good, développe 2 400 m² divisibles à partir de 156 m². Le hall d'accueil a été entièrement rénové en 2024.
A proximité du Tram Train, LE RENOIR dispose de plateaux fonctionnels et de nombreux stationnements privatifs (81 places)
Impôt Foncier : 13,61 €/
Régime Fiscal : T.V.A.
Dépôt de garantie : 3 mois de loyer HT/HC
Honoraires : 15% HT du loyer annuel HT/HC à la charge du mandant
Prestations :
Accessibilité:
Tramway T1 Arrêt "Erdre-Active" (9mn à pied)
Bus LCE Arrêt "Vive'Erdre" (13 mn à pied)
Autoroute A11
Les informations sur les risques auxquels ce bien est exposé sont disponibles sur le site Géorisques : www.georisques.gouv.fr
A proximité du Tram Train, LE RENOIR dispose de plateaux fonctionnels et de nombreux stationnements privatifs (81 places)
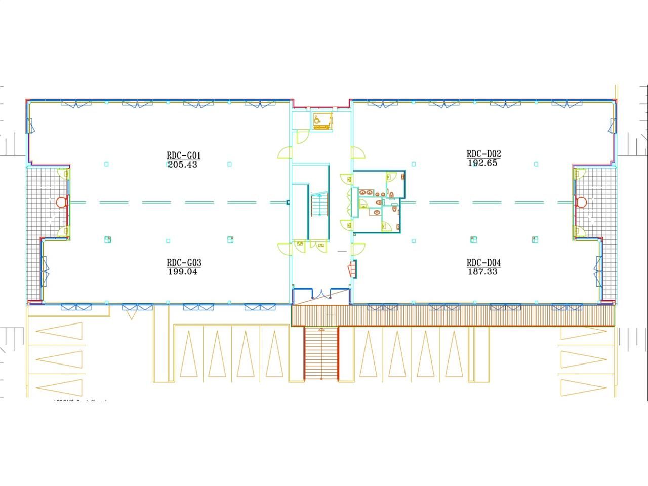
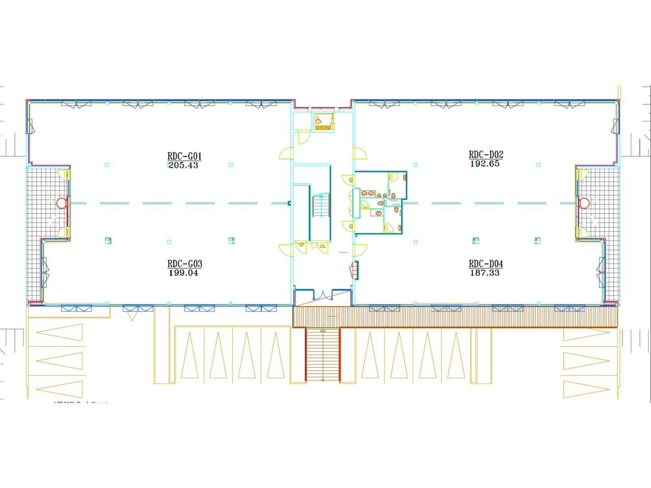
| Étage | Type | Surfaces | Dispo | Loyer | Charges | Type de bailRév. annuelle |
|---|---|---|---|---|---|---|
| RDC | Bureaux | 404,47 | Immédiate | 130 m²/an HT HC | 28,92 HT/m²/an | 3-6-9 ansIndice ILAT |
| RDC | Bureaux | 192,65 | Immédiate | 130 m²/an HT HC | 28,92 HT/m²/an | 3-6-9 ansIndice ILAT |
| RDC | Bureaux | 187,33 | Immédiate | 130 m²/an HT HC | 28,92 HT/m²/an | 3-6-9 ansIndice ILAT |
| 1 | Bureaux | 426,24 | Immédiate | 130 m²/an HT HC | 28,92 HT/m²/an | 3-6-9 ansIndice ILAT |
| 1 | Bureaux | 199,8 | Immédiate | 130 m²/an HT HC | 28,92 HT/m²/an | 3-6-9 ansIndice ILAT |
| 1 | Bureaux | 197,58 | Immédiate | 130 m²/an HT HC | 28,92 HT/m²/an | 3-6-9 ansIndice ILAT |
| 2 | Bureaux | 387,65 | Immédiate | 130 m²/an HT HC | 28,92 HT/m²/an | 3-6-9 ansIndice ILAT |
| 2 | Bureaux | 199,43 | Immédiate | 130 m²/an HT HC | 28,92 HT/m²/an | 3-6-9 ansIndice ILAT |
| 2 | Bureaux | 156,85 | Immédiate | 130 m²/an HT HC | 28,92 HT/m²/an | 3-6-9 ansIndice ILAT |
| Parkings | Immédiate | 400 place/an HT HC | 3-6-9 ansIndice ILAT | |||
| Parkings | Immédiate | 250 place/an HT HC | 3-6-9 ansIndice ILAT |
Impôt Foncier : 13,61 €/
Régime Fiscal : T.V.A.
Dépôt de garantie : 3 mois de loyer HT/HC
Honoraires : 15% HT du loyer annuel HT/HC à la charge du mandant
Prestations :
- Immeuble indépendant
- Contrôle d'accès
- Accès PMR
- Hall d'accueil rénové en 2024
- Certification BREEAM in Use Very Good (en cours)
- Ascenseur
- Plateaux rationnels et lumineux
- Climatisation réversible
- Douche
- Loggias
- Goulottes périphériques
- Moquette / faux plafonds
- Immeuble indépendant
- Surface RDC : 784,45 m²
Accessibilité:
Tramway T1 Arrêt "Erdre-Active" (9mn à pied)
Bus LCE Arrêt "Vive'Erdre" (13 mn à pied)
Autoroute A11
Les informations sur les risques auxquels ce bien est exposé sont disponibles sur le site Géorisques : www.georisques.gouv.fr
Voir plus
Afficher les consommations énergétiques
Favoris
Exporter
Appeler
Contacter
Signaler cette annonce










