Leader mondial des services dédiés à l'immobilier d'entreprise, Cushman & Wakefield accompagne ses clients dans la transformation de leurs modes de travail, de consommation et de vie. Nos 43 000 co ...
En savoir plus



399 m² divisible dès 36 m²
HT HC
Location bureau - 399 m²
Entzheim (67960)
Dernière mise à jour : Il y a 2 mois
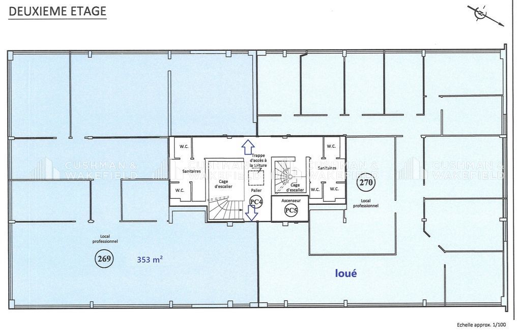
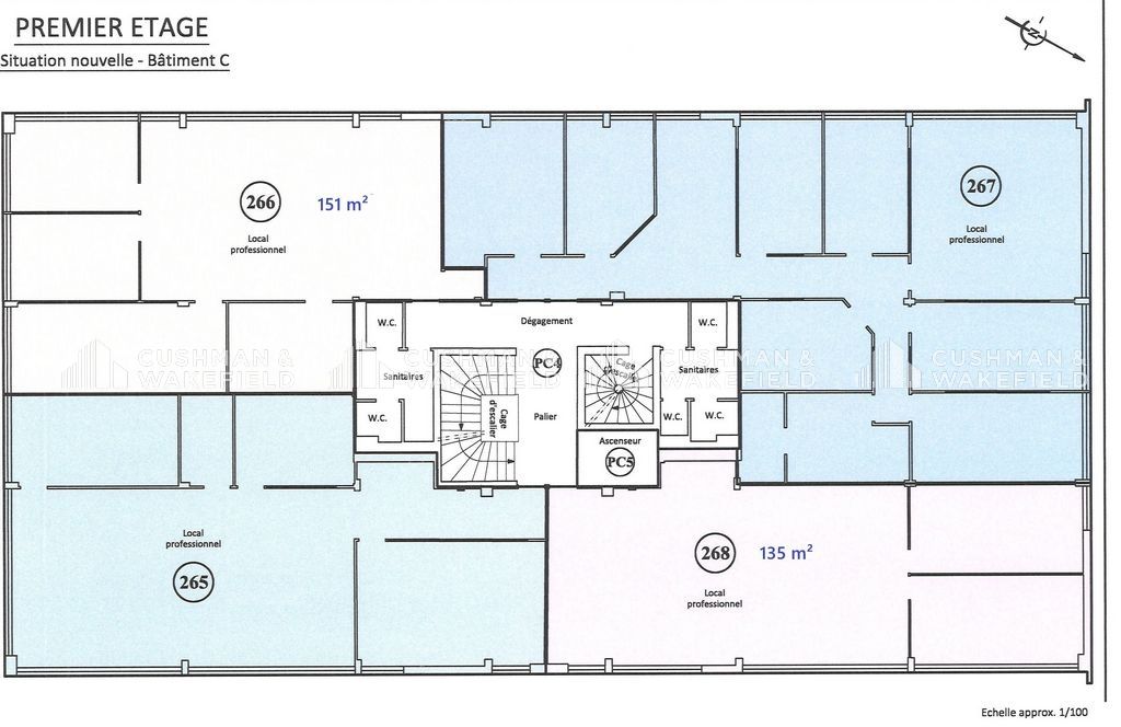
Immeuble de bureaux sur l'Aéroparc 1, le long de la rocade autoroutière, permettant une très belle visibilité. Nombreuses places de parking. L''Aéroparc d''Entzheim est un parc mixte (bureaux et activité) au sud de l''Eurométropole de Strasbourg, à proximité de l''Aéroport International de Strasbourg-Entzheim. Il est engagé dans une démarche d''optimisation des déplacements domicile-travail pour l''ensemble des usagers. Ce plan de déplacement doit servir à tous. Les objectifs étant, bien sûr, de passer moins de temps dans les transports tout en réduisant la pollution de l''air. Le site accueille plus d''une centaine d''entreprises et propose aux collaborateurs de nombreux services : boulangerie, restaurants, distribution alimentaire, formation, esthétique, coiffure, ... Immeuble de bureaux , le long de la rocade autoroutière, sur l'Aéroparc 1, permettant une très belle visibilité. Nombreuses places de parking. Ces locaux sont disponibles à la location. Le département Bureaux & Investissement de Cushman & Wakefield Strasbourg est à votre entière disposition pour visiter ces bureaux à louer au sein de l''Aéroparc à Entzheim. N'hésitez plus, contactez-nous ! Honoraires à la charge du Preneur / de l'Acquéreur : - Location : 15 % HT du loyer annuel HT/HC - Vente : 5 % HT du prix de vente HD/HF . Sol : PVC ou moquette . Revêtement mural en toile de verre peinte . Plafonds en dalles de fibre minérale incorporant les luminaires . Plinthes compartimentées avec des courants faibles et forts . Sanitaires en parties communes Chauffage / climatisation par système réversible Surface en RDC divisible en fonction des besoins du locataire. Cloisonnement : RDC - Lot 261 - 212 m²: 5 bureaux - 1 open space RDC - Lot 263 - 36 m² : non cloisonné 1er étage - lot 266 - 151 m² : 3 bureaux - 1 kitchenette Parkings extérieurs : environ 4 places pour 100 m² de bureaux Bus : ligne 12 Accès routier : A35 sortie Entzheim - Type de bail : Commercial 3-6-9 ans - Régime fiscal : T.V.A. - Indexation : Indexation annuelle selon l'indice des loyers des activités tertiaires (ILAT) publié par l''INSEE - Dépôt de garantie :3 mois de loyer HT/HC - Modalités de paiement :Loyer payable trimestriellement et d'avance - Honoraires :Honoraires à la charge du Preneur / de l'Acquéreur : - Location : 15 % HT du loyer annuel HT/HC - Vente : 5 % HT du prix de vente HD/HF
Voir plus
Afficher les consommations énergétiques
Surfaces divisibles : 3
| Surface | LoyerHT/HC/m²/an | Étage / Batiment |
| 212 m² | 135 € | 0 |
| 151 m² | 135 € | 1 |
| 36 m² | 135 € | 0 |
Localisation et transport aux alentours
Favoris
Exporter
Appeler
Contacter
Signaler cette annonce










