Leader mondial des services dédiés à l'immobilier d'entreprise, Cushman & Wakefield accompagne ses clients dans la transformation de leurs modes de travail, de consommation et de vie. Nos 43 000 co ...
En savoir plus



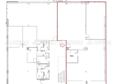
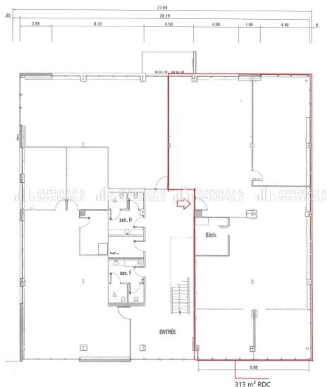
313 m²
HT HC
Location bureau - 313 m²
Entzheim (67960)
Dernière mise à jour : Il y a 3 jours
Bel Immeuble de bureaux sur 2 niveaux au sein de l'Aéroparc d' Entzheim. Grandes baies vitrées et archicture dynamique Surface disponible à la location en rez-de-chaussée L''Aéroparc d''Entzheim est une zone d'activité du territoire de l'Eurométropole de Strasbourg. Il est engagé dans une démarche d'optimisation des déplacements domicile-travail pour l'ensemble des usagers (Plan de Déplacement Inter Entreprises en lien avec l'EuroMétropole de Strasbourg). Ce plan de déplacement doit servir à tous. Les objectifs étant, bien sûr, de passer moins de temps dans les transports tout en réduisant la pollution de l'air. L''Aéroparc est labellisé ZA THD, Zone d'Activité Très Haut Débit et est doté de la fibre optique permettant un débit supérieur à 100 Mbit/s. A proximité : restaurant, boulangerie, coiffeur, station service, supermarché... Bel Immeuble de bureaux sur 2 niveaux au sein de l'Aéroparc d' Entzheim. Grandes baies vitrées et archicture dynamique Surface disponible à la location en rez-de-chaussée Les équipes de CUSHMAN & WAKEFIELS sont à votre disposition pour vous présenter ces bureaux à ENTZHEIM . Moquettes antistatiques en dalles interchangeables . Revêtement mural en toile de verre peinte . Faux plafonds . Luminaires basse luminance encastrés en faux plafond . Plinthes compartimentées en périphérie du btiment en PVC permettant le passage des courants faibles et forts . Double vitrage sur huisserie aluminium avec stores . Chauffage / climatisation par système réversible . Sanitaires hommes / femmes en parties communes Locaux partiellement cloisonnés en système moduliAIre vitré Parking extérieur en places privatives Bus : ligne 12 Accès autoroutier : A 35 sortie Entzheim
Voir plus
Afficher les consommations énergétiques
Localisation et transport aux alentours
Favoris
Exporter
Appeler
Contacter
Signaler cette annonce










