Société de conseil immobilier implantée sur Lyon et Paris, Sorovim accompagne particuliers et professionnels dans leurs projets de vente, d’acquisition, d’investissement et d’estimation de bien.Sor ...
En savoir plus

895 m² divisible dès 343 m²
HT HC
ECULLY PARK - Location bureau - 895 m²
Écully (69130)
Dernière mise à jour : Il y a 4 mois
EXCLUSIVITE: Bureaux en excellent état et "prêts à l'emploi" dans un parc arboré. 895 m² divisibles à partir de 343 m². A LOUER
Immeuble ECULLY PARK
EXCLUSIVITE: Des bureaux de 895 m² divisibles à partir de 343 m² sont disponibles à la location. Dans un immeuble totalement rénové en 2016, ils sont situés au coeur d'un parc arboré de 6 hectares, entre la TECHLID et le 9ème arrondissement de Lyon. Modernes et lumineux, bénéficiant des dernières innovations technologiques, ces bureaux offrent un cadre de travail idéal pour les collaborateurs.
Impôt Foncier : 13,7 €/HT / m²/an
Régime Fiscal : T.V.A.
Dépôt de garantie : 3 mois de loyer HT HC
Honoraires : 15% HT du loyer annuel HT HC à la charge du preneur,
Information sur le Bail :
Loyer réserve: 85 euros HT HC /m² /an Loyer parking extérieurs: 350 euros HT HC /U /an Loyer parking en sous sol: 850 euros HT HC /U /an Loyer parking moto: 350 euros HT HC /U /an
Prestations :
Accessibilité:
Aéroport Aéroport Lyon St Exupéry à 20 min environ en voiture
Autoroute Route A6, Bd Périphérique
Bus Bus ligne n° 19 arrêt 'Gare de Vaise'
Les informations sur les risques auxquels ce bien est exposé sont disponibles sur le site Géorisques : www.georisques.gouv.fr
Immeuble ECULLY PARK
EXCLUSIVITE: Des bureaux de 895 m² divisibles à partir de 343 m² sont disponibles à la location. Dans un immeuble totalement rénové en 2016, ils sont situés au coeur d'un parc arboré de 6 hectares, entre la TECHLID et le 9ème arrondissement de Lyon. Modernes et lumineux, bénéficiant des dernières innovations technologiques, ces bureaux offrent un cadre de travail idéal pour les collaborateurs.
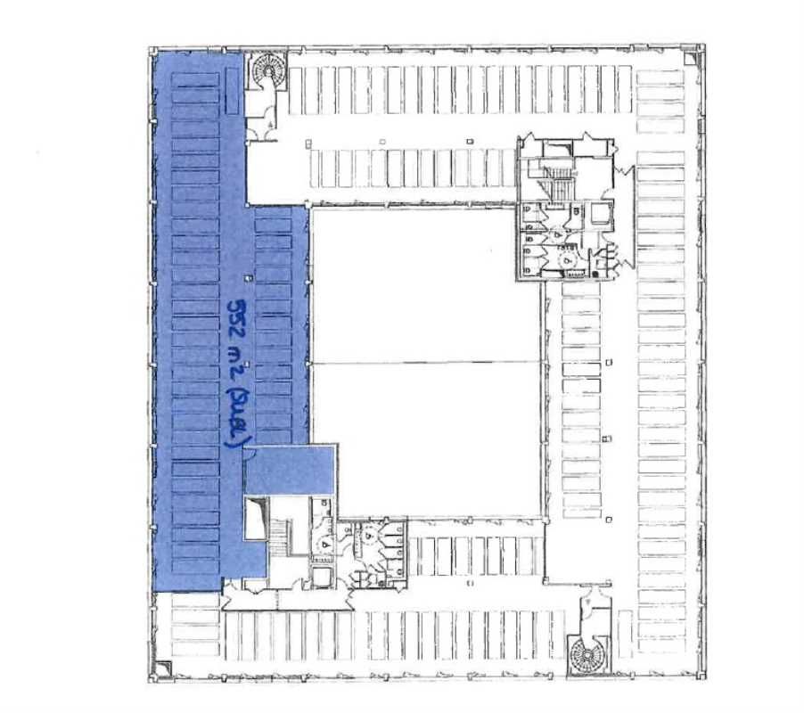
| Étage | Type | Surfaces | Dispo | Loyer | Charges | Type de bailRév. annuelle |
|---|---|---|---|---|---|---|
| 2 | Bureaux | 552 | Immédiate | 170 HT HC/m²/an | 49,51 HT/m²/an | 6-9 ansILAT Indice des Loyers des Activités Tertiaires |
| 2 | Bureaux | 343 | Immédiate | 170 HT HC/m²/an | 49,51 HT/m²/an | 6-9 ansILAT Indice des Loyers des Activités Tertiaires |
Impôt Foncier : 13,7 €/HT / m²/an
Régime Fiscal : T.V.A.
Dépôt de garantie : 3 mois de loyer HT HC
Honoraires : 15% HT du loyer annuel HT HC à la charge du preneur,
Information sur le Bail :
Loyer réserve: 85 euros HT HC /m² /an Loyer parking extérieurs: 350 euros HT HC /U /an Loyer parking en sous sol: 850 euros HT HC /U /an Loyer parking moto: 350 euros HT HC /U /an
Prestations :
- Site sécurisé entièrement rénové en 2016
- Immeuble éligible à la fibre
- 2 ascenseurs
- Salle de réunion, bureaux cloisonnés individuels ou de direction et espace cuisine
- Cloisons vitrées toute hauteur
- Sol dalles moquette avec faux plancher technique
- Hauteur sous plafond de 3 m avec plafonds rayonnants
- Locaux techniques
- Baies de brassage
- Production de chauffage et de climatisation par une pompe à chaleur réversible air/eau.
- Douches communes et vestiaires en sous-sol côté hall B
- Locaux d'archives en sous-sol de 32m²
- Sanitaires en PC
- 17 places de parking extérieures
- 7 places de parking en sous sol
- 1 place de parking moto
- RIE possible dans un autre bâtiment avec un système d'adhésion
Accessibilité:
Aéroport Aéroport Lyon St Exupéry à 20 min environ en voiture
Autoroute Route A6, Bd Périphérique
Bus Bus ligne n° 19 arrêt 'Gare de Vaise'
Les informations sur les risques auxquels ce bien est exposé sont disponibles sur le site Géorisques : www.georisques.gouv.fr
Voir plus
Afficher les consommations énergétiques
Localisation et transport aux alentours
Favoris
Exporter
Appeler
Contacter
Signaler cette annonce
