BNP Paribas Real Estate Lille, qui revendique plus de 40 ans de présence sur le marché lillois, est composé d''une équipe expérimentée aux expertises diversifiées. Elle est principalement composée ...
En savoir plus

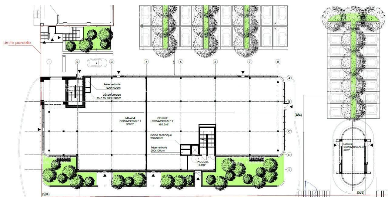
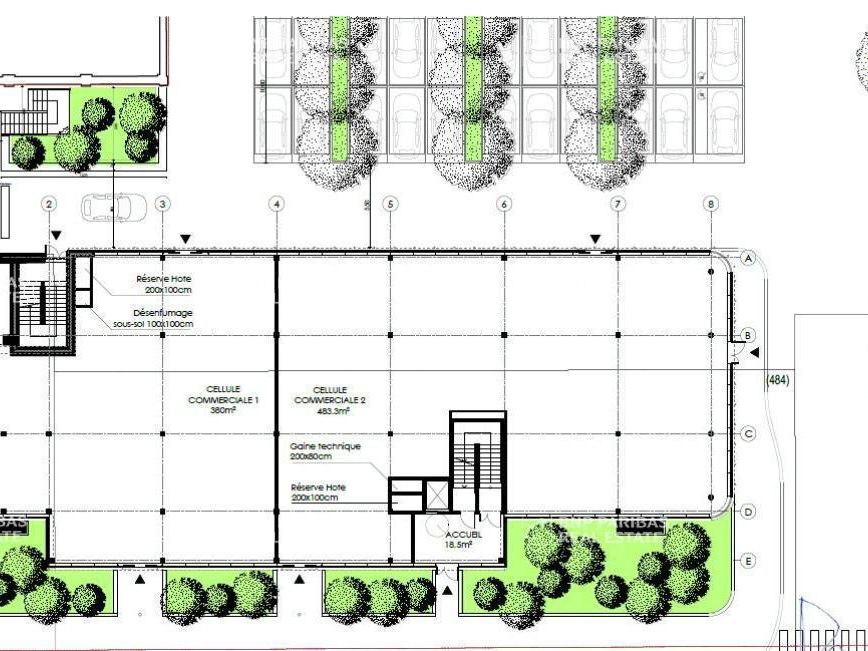
Location bureau - 3897 m²
Nous vous proposons à la location des espaces de bureaux neufs situés à Coudekerque Branche, sur l'axe reliant l'A16 au centre ville de Dunkerque.
Ce btiment se situe sur la route de Bergues à proximité directe de l'autoroute A16, de la Gare de Dunkerque (1 km), du port de Dunkerque et de commerces (hypermarché Cora, supermarchés Aldi et Intermarché à proximité directe).
Il proposera des plateaux lumineux avec des terrasses à chaque étage.
Accessibilité :
- Gare de Dunkerque à 1 km
- A16 à 1 km
- Bus arrêt "Jeu de mail" à 400 m
Caractéristiques :
Immeuble neuf
Places de stationnement en sous-sol,
Btiment bas carbone conforme RE 2020
Plateaux livré en base paysagère (hors RDC)
Plateaux lumineux avec de grandes facades vitrées
Raccordement fibre
Entrée, parking et local vélo sécurisés par badges et clés (et en sous-sol)
Balcons/Terrasses à tous les niveaux
Cellules en RDC classées ERP 5
Climatisation 3 tubes
Toutes nos offres de bureaux sur https://www.bnppre.fr/bureau/nord-59/
Disponibilité: 01/09/2027Honoraires: 15% HT du loyer HT/HC. à la signature du bail



