Conseil en immobilier d'entreprise, Cushman & Wakefield est un acteur incontournable au rayonnement international. Cushman & Wakefield offre des solutions dans toutes les étapes que comporte un p ...
En savoir plus



4 068 m² divisible dès 1 992 m²
HT HC
L'USINERIE - Location bureau - 4068 m²
Clichy (92110)
Dernière mise à jour : Il y a 19 jours
Bureaux à louer pied de Ligne 13
Immeuble L'USINERIE
Bureaux à louer en plein coeur de Clichy (92110) L'USINERIE s'approprie son histoire pour proposer un nouveau territoire d'expression de la créativité et de la performance.
La rénovation du lieu valorise l'esprit industriel et invente un lieu de vie, responsable, durable et exigeant en phase avec les aspirations générationnelles d'aujourd'hui.
À moins de 15 minutes de la gare Saint-Lazare par la ligne 13, L'USINERIE est connecté au centre de Paris et de sa vitalité.
Les bureaux sont situés dans un immeuble de caractère de 15 000 m² avec :
-des plateaux modulables et flexibles d'environ 4000 m² divisibles à partir de 2000 m²
-un espace de co working d'une surface de 5000 m² sur le RDC et le 1er étage.
Le socle serviciel de L'USINERIE a été conçu pour offrir à ses utilisateurs un véritable lieu de vie et de travail. Le design est désormais au service de la fluidité des échanges, du confort et de la créativité.
Ici, se réunissent les grands talents.
- auditorium
-fitness
-business center
- Roof top au 4eme étage
- work café, barista, restaurant
Contactez-nous vite pour visiter !
Régime Fiscal : T.V.A.
Dépôt de garantie : 3 mois de loyer HT/HC
Paiement Loyer : Trimestriel
Honoraires : à la charge du preneur
Prestations :
Accessibilité:
Métro Mairie de Clichy (ligne 13) à 100 m
Bus Lignes 74, 54, 174, 274, 341, TUC
Accès routier Bd périphérique sortie Pte de Clichy
Les informations sur les risques auxquels ce bien est exposé sont disponibles sur le site Géorisques : www.georisques.gouv.fr
Immeuble L'USINERIE
Bureaux à louer en plein coeur de Clichy (92110) L'USINERIE s'approprie son histoire pour proposer un nouveau territoire d'expression de la créativité et de la performance.
La rénovation du lieu valorise l'esprit industriel et invente un lieu de vie, responsable, durable et exigeant en phase avec les aspirations générationnelles d'aujourd'hui.
À moins de 15 minutes de la gare Saint-Lazare par la ligne 13, L'USINERIE est connecté au centre de Paris et de sa vitalité.
Les bureaux sont situés dans un immeuble de caractère de 15 000 m² avec :
-des plateaux modulables et flexibles d'environ 4000 m² divisibles à partir de 2000 m²
-un espace de co working d'une surface de 5000 m² sur le RDC et le 1er étage.
Le socle serviciel de L'USINERIE a été conçu pour offrir à ses utilisateurs un véritable lieu de vie et de travail. Le design est désormais au service de la fluidité des échanges, du confort et de la créativité.
Ici, se réunissent les grands talents.
- auditorium
-fitness
-business center
- Roof top au 4eme étage
- work café, barista, restaurant
Contactez-nous vite pour visiter !
| Étage | Type | Surfaces | Dispo | Loyer | Charges | Type de bailRév. annuelle |
|---|---|---|---|---|---|---|
| Autre | 1296 | 6-9 ansSur l'indice ILAT | ||||
| 2 | Bureaux | 2076 | 320 HT/HC/m²/an | 3-6-9 ansSur l'indice ILAT | ||
| 2 | Bureaux | 1992 | 320 HT/HC/m²/an | 3-6-9 ansSur l'indice ILAT | ||
| Parkings | 3-6-9 ansSur l'indice ILAT | |||||
| Parkings | 3-6-9 ansSur l'indice ILAT | |||||
| Parkings | 3-6-9 ansSur l'indice ILAT |
Régime Fiscal : T.V.A.
Dépôt de garantie : 3 mois de loyer HT/HC
Paiement Loyer : Trimestriel
Honoraires : à la charge du preneur
Prestations :
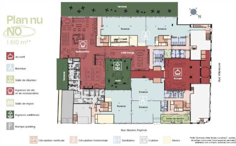
- Immeuble de bureaux de caractère avec une surface en brique, construit dans les années 1930, lourdement rénové et livré en 2024
- 915 m² de terrasses et jardins
- Jardin et patio central au RdC
- Capacitaire :1245 pers.
- Etage courant : 4 000 m² env.
- Respect du décret tertiaire
- Désenfumage naturel par les ouvrants en façades
- Changement du système de GTB
- Quai de livraison eu RdC
- 153 m² dédiés à la mobilité douce
- Climatisation réversible
- 1 700 m² de services
- Grand Hall d'accueil en double hauteur avec espace d'accueil, casiers connectés, espace lounge
- Nombreux espaces de restauration : RIE, espace fooding, barista café, Work Café
- Salle de sport / bien être
- Studio d'enregistrement
- Salle de conférence
- Work place center : espace de travail collectif et partagé
- Conciergerie
- Application dédiée
- Espace Meeting center et Auditorium réservable, un Foyer, et des salles de réunion modulables
- Espace de coworking
Accessibilité:
Métro Mairie de Clichy (ligne 13) à 100 m
Bus Lignes 74, 54, 174, 274, 341, TUC
Accès routier Bd périphérique sortie Pte de Clichy
Les informations sur les risques auxquels ce bien est exposé sont disponibles sur le site Géorisques : www.georisques.gouv.fr
Voir plus
Afficher les consommations énergétiques
Localisation et transport aux alentours
Favoris
Exporter
Appeler
Contacter
Signaler cette annonce










