Cushman and Wakefield (Leader mondial en immobilier d’entreprise) conseille depuis plus d'un siècle les entreprises dans leur stratégie immobilière.Notre agence de Rennes créée en 2003 vous accompa ...
En savoir plus

192 m²
HT HC
Location bureau - 192 m²
Chartres-de-Bretagne (35131)
Dernière mise à jour : Il y a 3 jours
Nouveauté Bureau
Immeuble CONTERIE II BÂTIMENT C
Cushman & Wakefield Rennes vous propose à la vente une surface de bureaux de 100 m² au premier étage d'un immeuble tertiaire sur une zone tertiaire dynamique.
Surface aménagée et cloisonnée
Ascenseur
3 Stationnements privatifs
Impôt Foncier : 16,02 €//m²/an
Régime Fiscal : T.V.A.
Honoraires : A la charge du preneur
Information sur le Bail :
Honoraires : 10% HT de la première triennale HT HC
Prestations :
Accessibilité:
[@logo31] Vieux Bourg (72, 172, 230, 244), Collège Pôle Sud (91)
[@logo31] Vieux Bourg (BUS-72, BUS-172ex, BUS-Ts1, BUS-Ts13), Collège Pôle Sud (BUS-91, BUS-Ts82)
Les informations sur les risques auxquels ce bien est exposé sont disponibles sur le site Géorisques : www.georisques.gouv.fr
Immeuble CONTERIE II BÂTIMENT C
Cushman & Wakefield Rennes vous propose à la vente une surface de bureaux de 100 m² au premier étage d'un immeuble tertiaire sur une zone tertiaire dynamique.
Surface aménagée et cloisonnée
Ascenseur
3 Stationnements privatifs
| Étage | Type | Surfaces | Dispo | Loyer | Charges | Type de bailRév. annuelle |
|---|---|---|---|---|---|---|
| Bureaux | 192 | 31/01/2026 | 130,2 HT HC/ m²/ an | 25,58 HT/m²/an | 3-6-9 ansILAT Indice des Loyers des Activités Tertiaires |
Impôt Foncier : 16,02 €//m²/an
Régime Fiscal : T.V.A.
Honoraires : A la charge du preneur
Information sur le Bail :
Honoraires : 10% HT de la première triennale HT HC
Prestations :
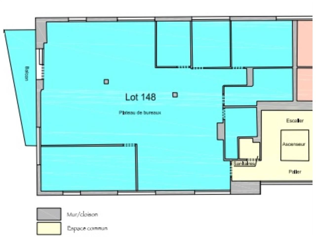
- Immeuble en R+4
- Bureaux R+1 : 193 m²
- 2 bureaux
- 1 open space
- 1 salle de réunion
- 1 local archives
- 1 local technique
- 1 salle de pause
- 1 terrasse
- Faux plafonds
- Cloisons amovibles
- Baie de brassage
- Plinthes périphériques
- Climatisation
- Ascenseur
- Câblage RJ 45
- Fibre optique
- Sanitaires communs
- 7 places de parking
Accessibilité:
[@logo31] Vieux Bourg (72, 172, 230, 244), Collège Pôle Sud (91)
[@logo31] Vieux Bourg (BUS-72, BUS-172ex, BUS-Ts1, BUS-Ts13), Collège Pôle Sud (BUS-91, BUS-Ts82)
Les informations sur les risques auxquels ce bien est exposé sont disponibles sur le site Géorisques : www.georisques.gouv.fr
Voir plus
Afficher les consommations énergétiques
Favoris
Exporter
Appeler
Contacter
Signaler cette annonce




