Arthur Loyd Bretagne est une société de conseil en immobilier d'entreprise de la métropole brestoise. Spécialiste de l’immobilier d’entreprise sur le Finistère, les Côtes-d’Armor, l’Ille et Vilaine ...
En savoir plus

250 m²
HT HC
Location bureau - 250 m²
Chartres-de-Bretagne (35131)
Dernière mise à jour : Il y a 2 jours
A LOUER PLATEAU DE 250M² EN RDC CHARTRES DE BRETAGNE
Arthur Loyd vous propose à la location une surface de bureaux de 250m² située en RDC d'un immeuble tertiaire dans le Parc de la conterie à Chartres de Bretagne.
Impôt Foncier : 4107 €/an
Régime Fiscal : T.V.A.
Dépôt de garantie : 3 mois de loyer HT/HC
Honoraires : A la charge du preneur.
Prestations :
Accessibilité:
Route Accessible par la voie express N137, à 5 minutes de Rennes
Aéroport Aéroport de Saint-Jacques-de-la-Lande à 5 minutes
SNCF Gare SNCF de Rennes à 15 minutes
Bus Bus STAR : lignes 59, 72 et 91
Les informations sur les risques auxquels ce bien est exposé sont disponibles sur le site Géorisques : www.georisques.gouv.fr
Arthur Loyd vous propose à la location une surface de bureaux de 250m² située en RDC d'un immeuble tertiaire dans le Parc de la conterie à Chartres de Bretagne.
| Étage | Type | Surfaces | Dispo | Loyer | Charges | Type de bailRév. annuelle |
|---|---|---|---|---|---|---|
| RDC | Bureaux | 250 | 150 m²/an HT HC | 4500 an HT | 3-6-9 ansILAT Indice des Loyers des Activités Tertiaires |
Impôt Foncier : 4107 €/an
Régime Fiscal : T.V.A.
Dépôt de garantie : 3 mois de loyer HT/HC
Honoraires : A la charge du preneur.
Prestations :
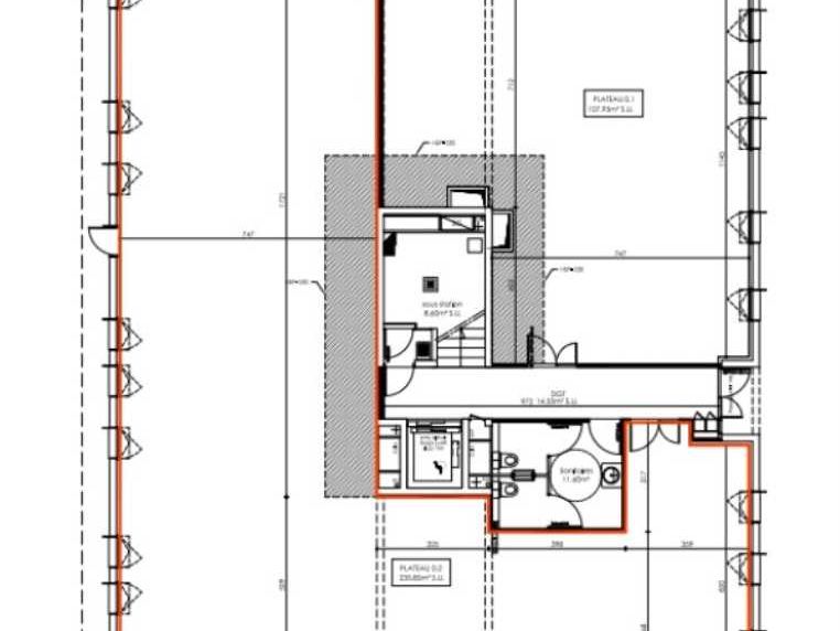
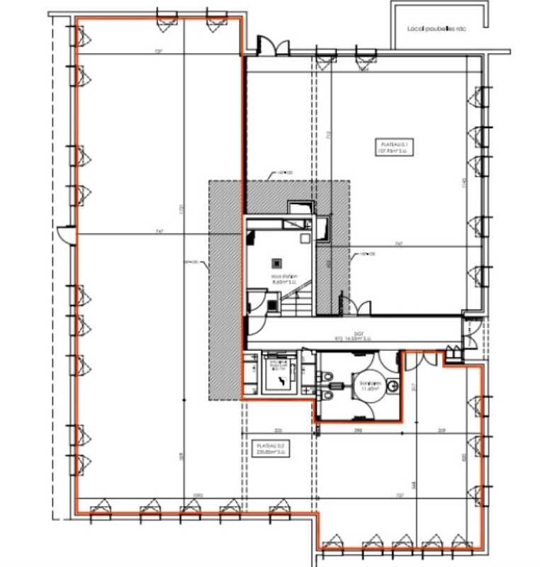
- Surface de bureau en RDC d'environ 250m², composée d'1 Open-space, 1 bureau, 1 salle de réunion, 1 cuisine équipée, 1 local technique
- Extraction possible.
- Entièrement câblée .
- Système de climatisation "chaud et froid".
- 7 Places de parking en aériens.
- Surface RDC : 250 m²
Accessibilité:
Route Accessible par la voie express N137, à 5 minutes de Rennes
Aéroport Aéroport de Saint-Jacques-de-la-Lande à 5 minutes
SNCF Gare SNCF de Rennes à 15 minutes
Bus Bus STAR : lignes 59, 72 et 91
Les informations sur les risques auxquels ce bien est exposé sont disponibles sur le site Géorisques : www.georisques.gouv.fr
Voir plus
Afficher les consommations énergétiques
Favoris
Exporter
Appeler
Contacter
Signaler cette annonce




