L’agence CBRE Bordeaux conseille et accompagne les chefs d’entreprise dans leurs projets immobiliers quels que soient leur taille et leur secteur d’activité. Spécialistes de la transaction de burea ...
En savoir plus

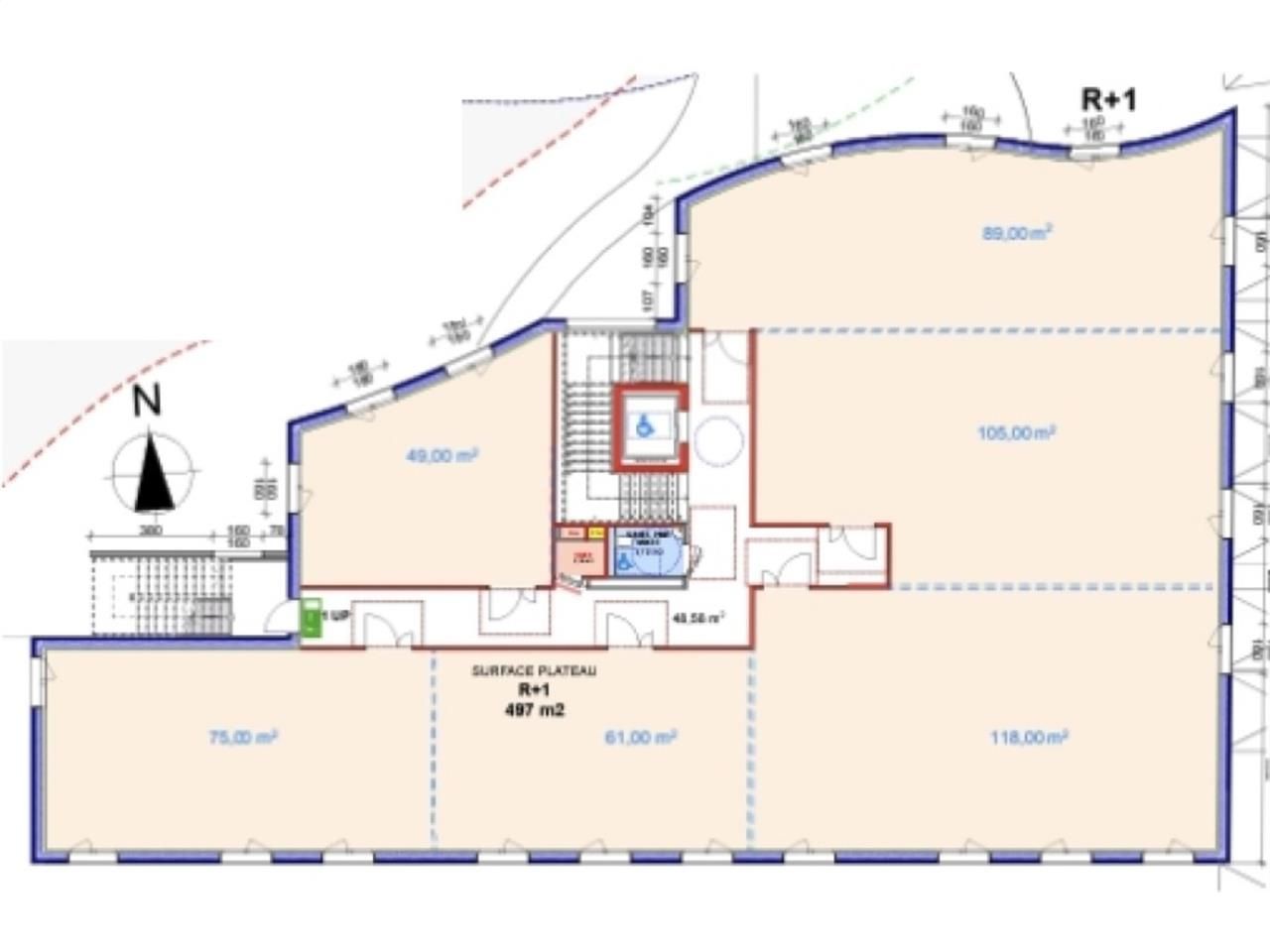
1 252 m² divisible dès 212 m²
HT HC
Location bureau - 1252 m²
Bruges (33520)
Dernière mise à jour : Il y a 2 mois
A VENDRE OU A LOUER, CBRE vous propose deux lots de bureaux dans un immeuble neuf, avec la réglementation ERP 4, déjà aménagé qualitativement, de 212 m² et 67 m² au 1er étage, idéal pour un cabinet médical situé à proximité immédiate de la rocade bordelaise et à 2 minutes à pied de l'arrêt de Tramway Terrefort. L'emplacement est pourvu de places de stationnements comprise dans le loyer. Proches des lignes de bus ainsi que de commerces dans une commune dynamique.
Cet immeuble profite d'un emplacement de choix. Disponibles immédiatement, ces bureaux sont une belle opportunité !
Régime Fiscal : T.V.A.
Dépôt de garantie : 3 mois de loyer HT/HC
Honoraires : 15% HT du loyer annuel HT/HC à la charge du preneur.
Prestations :
Accessibilité:
Bus Lignes 35, 70, 72 & 75 - Arrêt "Gare de Bruges"
Tramway Lignes C & E - Arrêt "Gare de Bruges"
Route Rocade sortie n°6 à 400m
Autoroute Accès A10 à 9,4km
SNCF Bordeaux Saint-Jean à 10km
Les informations sur les risques auxquels ce bien est exposé sont disponibles sur le site Géorisques : www.georisques.gouv.fr
Cet immeuble profite d'un emplacement de choix. Disponibles immédiatement, ces bureaux sont une belle opportunité !
| Étage | Type | Surfaces | Dispo | Loyer | Charges | Type de bailRév. annuelle |
|---|---|---|---|---|---|---|
| 1 | Bureaux | 212 | Immédiate | 188,79 m²/an HT HC | 3-6-9 ansIndice ILAT | |
| 2 | Bureaux | 560 | Immédiate | 240 m²/an HT HC | 3-6-9 ansIndice ILAT | |
| 3 | Bureaux | 480 | Immédiate | 240 m²/an HT HC | 3-6-9 ansIndice ILAT |
Régime Fiscal : T.V.A.
Dépôt de garantie : 3 mois de loyer HT/HC
Honoraires : 15% HT du loyer annuel HT/HC à la charge du preneur.
Prestations :
- Les plateaux de bureaux seront livrés aménagés et cloisonnés
- Parties communes livrées aménagées et climatisées
- Ascenseur
- Extérieurs terminés et paysagés
- 15 places de parking (inclus)
- Parking vélos
Accessibilité:
Bus Lignes 35, 70, 72 & 75 - Arrêt "Gare de Bruges"
Tramway Lignes C & E - Arrêt "Gare de Bruges"
Route Rocade sortie n°6 à 400m
Autoroute Accès A10 à 9,4km
SNCF Bordeaux Saint-Jean à 10km
Les informations sur les risques auxquels ce bien est exposé sont disponibles sur le site Géorisques : www.georisques.gouv.fr
Voir plus
Afficher les consommations énergétiques
Favoris
Exporter
Appeler
Contacter
Signaler cette annonce
