L’agence CBRE Bordeaux conseille et accompagne les chefs d’entreprise dans leurs projets immobiliers quels que soient leur taille et leur secteur d’activité. Spécialistes de la transaction de burea ...
En savoir plus

1 828 m² divisible dès 263 m²
HT HC
Location bureau - 1828 m²
Bruges (33520)
Dernière mise à jour : Il y a 3 mois
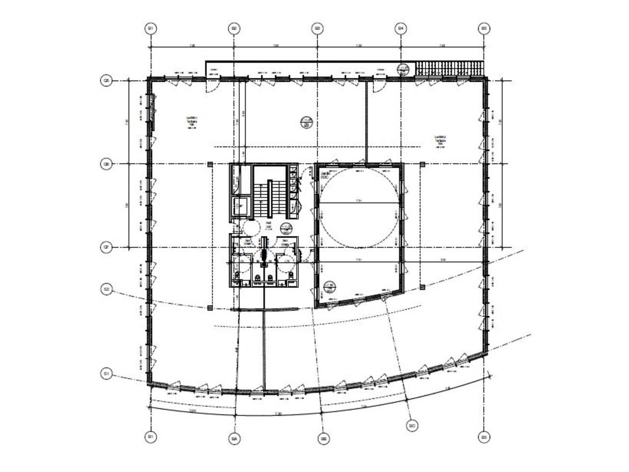
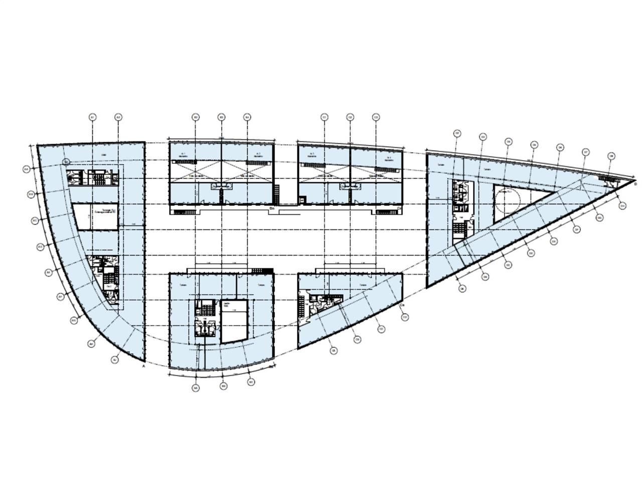
CBRE vous propose un immeuble de 1827 m² disponible à la vente ou à la location divisibles à partir de 262 m² au coeur du parc La Goutte d'Eau situé à Bruges. Composé de 6 immeubles de bureaux et activités, cet ensemble immobilier neuf bénéficie d'un environnement de travail qualitatif alliant accessibilité optimale et prestations haut de gamme.
Le parc en cours de livraison offrira des espaces verts spacieux en son centre procurant un ilot calme et verdoyant tout en étant connecté directement au tramway ligne C menant à la gare Saint Jean et à la rocade.
L'immeuble disposera en complément d'un patio à ciel ouvert privatif. Les bureaux sont complétés de places de parking en aériens pré-équipées de bornes de recharge ainsi que d'un parking silo proposant des abonnements.
Impôt Foncier : 15 €/m2/an HT HC
Régime Fiscal : T.V.A.
Dépôt de garantie : 3 mois de loyer HT/HC
Honoraires : 15 % HT du loyer annuel HT HC à la charge du preneur
Prestations :
Accessibilité:
Bus Lignes 35, 70, 72 & 75 - Arrêt "Gare de Bruges"
Tramway Lignes C & E - Arrêt "Gare de Bruges"
Route Rocade sortie n°6 à 400m
Autoroute Accès A10 à 9,4km
SNCF Bordeaux Saint-Jean à 10km
Les informations sur les risques auxquels ce bien est exposé sont disponibles sur le site Géorisques : www.georisques.gouv.fr
Le parc en cours de livraison offrira des espaces verts spacieux en son centre procurant un ilot calme et verdoyant tout en étant connecté directement au tramway ligne C menant à la gare Saint Jean et à la rocade.
L'immeuble disposera en complément d'un patio à ciel ouvert privatif. Les bureaux sont complétés de places de parking en aériens pré-équipées de bornes de recharge ainsi que d'un parking silo proposant des abonnements.
| Étage | Type | Surfaces | Dispo | Loyer | Charges | Type de bailRév. annuelle |
|---|---|---|---|---|---|---|
| 2 | Bureaux | 318,4 | Immédiate | 170 m²/an HT HC | 20 HT/m²/an | 3-6-9 ansIndice ILAT |
| 2 | Bureaux | 308,1 | Immédiate | 170 m²/an HT HC | 20 HT/m²/an | 3-6-9 ansIndice ILAT |
| 1 | Bureaux | 318,2 | Immédiate | 170 m²/an HT HC | 20 HT/m²/an | 3-6-9 ansIndice ILAT |
| 1 | Bureaux | 314,3 | Immédiate | 170 m²/an HT HC | 20 HT/m²/an | 3-6-9 ansIndice ILAT |
| RDC | Bureaux | 306 | Immédiate | 170 m²/an HT HC | 20 HT/m²/an | 3-6-9 ansIndice ILAT |
| RDC | Bureaux | 262,7 | Immédiate | 170 m²/an HT HC | 20 HT/m²/an | 3-6-9 ansIndice ILAT |
Impôt Foncier : 15 €/m2/an HT HC
Régime Fiscal : T.V.A.
Dépôt de garantie : 3 mois de loyer HT/HC
Honoraires : 15 % HT du loyer annuel HT HC à la charge du preneur
Prestations :
- Certification BREEAM Very Good
- Démarche E+C-
- Système réversible de chauffage/climatisation géothermie VRV 3 tubes
- Toitures et terrasses végétalisées
- Locaux livrés climatisés prêts à aménager
- Hauteur libre en étage courant 2m70
- Luminaires LED sur détection
- Ascenseurs
- Borne de recharge pour véhicules et vélos électriques
- Pompe à chaleur réversible
- 28 parkings (nombre défini par lots) vendus 10 000 euros/HT/unité
- Surface RDC : 568,7 m²
Accessibilité:
Bus Lignes 35, 70, 72 & 75 - Arrêt "Gare de Bruges"
Tramway Lignes C & E - Arrêt "Gare de Bruges"
Route Rocade sortie n°6 à 400m
Autoroute Accès A10 à 9,4km
SNCF Bordeaux Saint-Jean à 10km
Les informations sur les risques auxquels ce bien est exposé sont disponibles sur le site Géorisques : www.georisques.gouv.fr
Voir plus
Afficher les consommations énergétiques
Favoris
Exporter
Appeler
Contacter
Signaler cette annonce










