L’agence CBRE Toulouse conseille et accompagne les chefs d’entreprise dans leurs projets immobiliers quels que soient leur taille et leur secteur d’activité. Spécialistes de la transaction de burea ...
En savoir plus

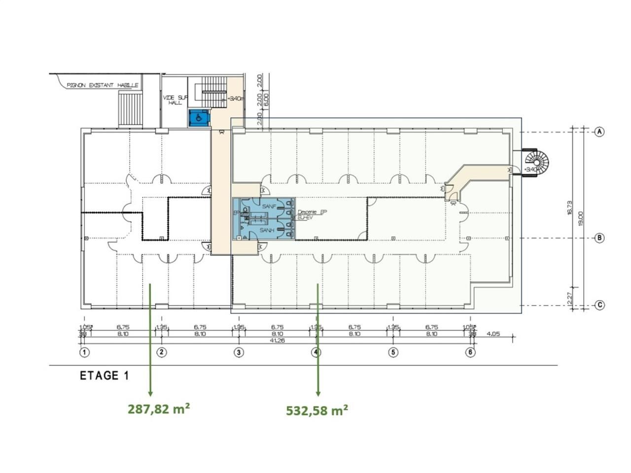
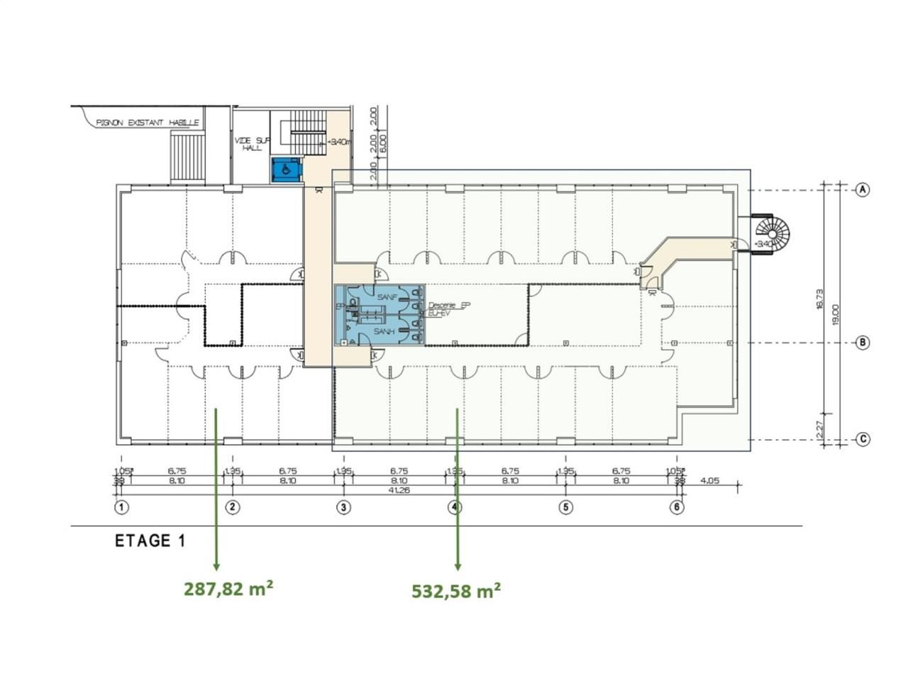
820 m² divisible dès 250 m²
HT HC
Location bureau - 820 m²
Blagnac (31700)
Dernière mise à jour : Il y a 2 mois
Bureaux rénovés à louer, à proximité immédiate de l'Aéroport de TOULOUSE-BLAGNAC, dans un immeuble de qualité.
Dans un immeuble situé au pied de l'Aéroport de Toulouse-Blagnac.
Surfaces louées cloisonnées et ou en open-space, climatisées.
Station de tram à quelques mètres, reliant l'Aéroport.
Lignes de bus 25, 30 et 66 + navette Aéroport reliant le centre-ville de Toulouse.
Accès immédiat par la rocade.
Impôt Foncier : 39 €/m²/an en sus
Régime Fiscal : T.V.A.
Dépôt de garantie : 3 mois de loyer HT/HC
Paiement Loyer : trimestriel
Honoraires : 15% (+TVA) du loyer annuel HT HC à la charge du preneur
Information sur le Bail :
Loyer parkings extérieurs : 350,00 euros/Place/an HT HC Loyer parkings sous-sol : 900,00 euros/Place/an HT HC Assurance Immeuble : 1,00 euros/m²/an HT Loyer et charges payables par trimestre et d'avance.
Prestations :
Accessibilité:
Route Accès immédiat par la rocade.
Aeroport À proximité immédiate de l'Aéroport de Toulouse-Blagnac.
Tramway Station de tram à quelques mètres, reliant l'Aéroport.
Bus Lignes de bus 30 et 31 + navette Aéroport reliant le centre-ville de Toulouse.
Les informations sur les risques auxquels ce bien est exposé sont disponibles sur le site Géorisques : www.georisques.gouv.fr
Dans un immeuble situé au pied de l'Aéroport de Toulouse-Blagnac.
Surfaces louées cloisonnées et ou en open-space, climatisées.
Station de tram à quelques mètres, reliant l'Aéroport.
Lignes de bus 25, 30 et 66 + navette Aéroport reliant le centre-ville de Toulouse.
Accès immédiat par la rocade.
| Étage | Type | Surfaces | Dispo | Loyer | Charges | Type de bailRév. annuelle |
|---|---|---|---|---|---|---|
| 1 | Bureaux | 532,58 | Immédiate | 145 m²/an HT HC | 45,9 m²/an HT | 3-6-9 ansIndice INSEE du Coût de la Construction |
| 1 | Bureaux | 287,82 | Immédiate | 145 m²/an HT HC | 45,9 m²/an HT | 3-6-9 ansIndice INSEE du Coût de la Construction |
Impôt Foncier : 39 €/m²/an en sus
Régime Fiscal : T.V.A.
Dépôt de garantie : 3 mois de loyer HT/HC
Paiement Loyer : trimestriel
Honoraires : 15% (+TVA) du loyer annuel HT HC à la charge du preneur
Information sur le Bail :
Loyer parkings extérieurs : 350,00 euros/Place/an HT HC Loyer parkings sous-sol : 900,00 euros/Place/an HT HC Assurance Immeuble : 1,00 euros/m²/an HT Loyer et charges payables par trimestre et d'avance.
Prestations :
- Dans un immeuble en R+3.
- Lot 532 m² : Surface livrée remise en état.
- Climatisation réversible.
- Open-space.
- Lot 287 m² : Surface louée en l'état cloisonnée et climatisée.
- Les 2 lots sont mitoyens et peuvent former un seul lot de 820 m².
- Emplacements de voitures privatifs :
- Lot 532 m² : 13 extérieurs et 19 en sous-sol
- Lot 287 m² : 7 extérieurs et 10 en sous-sol
- soit 1 place pour 17 m² loués.
- Lot 532 m² : Possibilité de division à partir de 250 m².
Accessibilité:
Route Accès immédiat par la rocade.
Aeroport À proximité immédiate de l'Aéroport de Toulouse-Blagnac.
Tramway Station de tram à quelques mètres, reliant l'Aéroport.
Bus Lignes de bus 30 et 31 + navette Aéroport reliant le centre-ville de Toulouse.
Les informations sur les risques auxquels ce bien est exposé sont disponibles sur le site Géorisques : www.georisques.gouv.fr
Voir plus
Afficher les consommations énergétiques
Favoris
Exporter
Appeler
Contacter
Signaler cette annonce










