Notre équipe est composée d''experts du marché immobilier d''entreprise, et renforce ainsi notre position de leader des transactions immobilières à Toulouse. Notre mission est de vous guider afin d ...
En savoir plus
65 m²
HT HC
Location bureau - 65 m²
Toulouse (31000)
Dernière mise à jour : Aujourd'hui
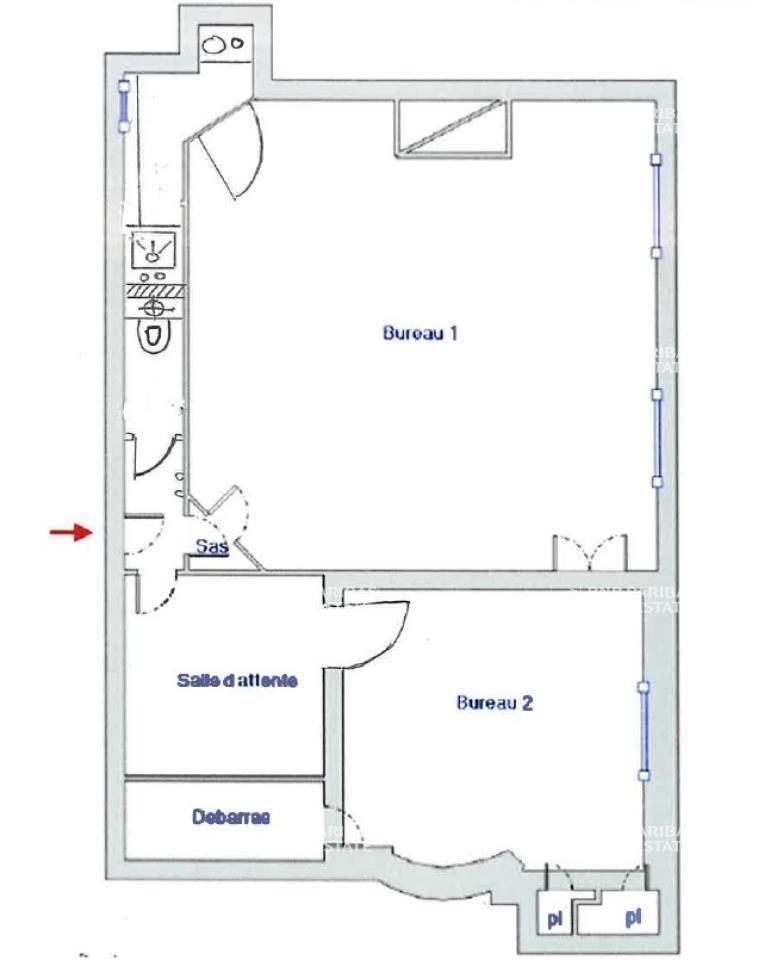
SECTEUR SAINT-GEORGES : BUREAUX RENOVES A LOUER A proximité immédiate de la Place Saint-Georges et du Capitole, BNP Paribas Real Estate vous propose une surface de bureaux rénovée disponible à la location.
Disponibilité: 12/12/2025
Honoraires: 15% HT du loyer HT/HC. à la signature du bail
Honoraires: 15% HT du loyer HT/HC. à la signature du bail
| Fiche technique du bien | |
|---|---|
| Métro | 250 m |
| Bus | 400 m |
| Desserte routière | 4 km |
| Aéroport | 10 km |
| Gare | 1 km |
| Climatisation | Réversible |
| Aménagement des bureaux | Cloisonnés |
Afficher les consommations énergétiques
Localisation et transport aux alentours
Favoris
Exporter
Appeler
Contacter
Signaler cette annonce
