Depuis 2003, KEOPS Toulouse accompagne les entreprises dans leurs projets immobiliers sur toute l’aire urbaine toulousaine.Notre équipe de professionnels passionnés met à votre service sa connaissa ...
En savoir plus

428 m²
HT HC
Location activité/entrepôt - 428 m²
Villeneuve-Tolosane (31270)
Dernière mise à jour : Hier
Local d'activités neuf à louer, situé au sud-ouest de Toulouse
Accès : par A64 sorties n° 38 et 39
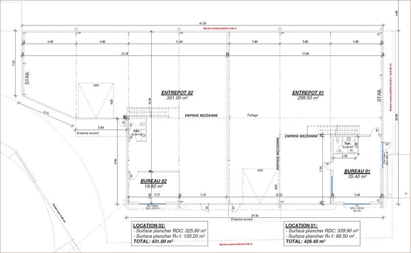
Dans un petit ensemble immobilier, local d'activités neuf d'une surface de 428 m²Une partie bureaux sur deux niveaux totalisant 123,9 m², avec salle de réunion, bureaux, sanitaires...Une partie dépôt de 299 m² avec porte sectionnelle électrique (4x4m), dalle béton quartzBâtiment type structure métallique, bardage double peauTerrain clôturé avec portail
Accès : par A64 sorties n° 38 et 39
Dans un petit ensemble immobilier, local d'activités neuf d'une surface de 428 m²Une partie bureaux sur deux niveaux totalisant 123,9 m², avec salle de réunion, bureaux, sanitaires...Une partie dépôt de 299 m² avec porte sectionnelle électrique (4x4m), dalle béton quartzBâtiment type structure métallique, bardage double peauTerrain clôturé avec portail
Voir plus
Afficher les consommations énergétiques
Localisation et transport aux alentours
Favoris
Exporter
Appeler
Contacter
Signaler cette annonce
