L’agence CBRE Nice-Sophia Antipolis conseille et accompagne les chefs d’entreprise dans leurs projets immobiliers quels que soient leur taille et leur secteur d’activité. Spécialistes de la transac ...
En savoir plus

560 m²
HT HC
Location activité/entrepôt - 560 m²
Nice (06000)
Dernière mise à jour : Il y a 2 jours
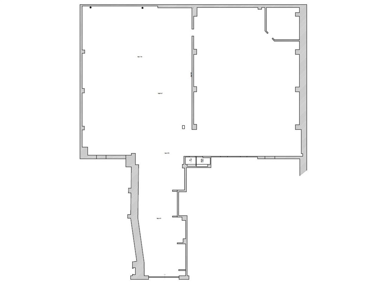
LOCAL D' ACTIVITES A LOUER - NICE CENTRE (06300)
NICE CENTRE (06300) - CBRE vous présente à la location un local d'activités d'une surface de 560 m². Ce local d'activités à louer offre un emplacement central idéal, une grande surface de stockage, avec une belle hauteur permettant l'ajout d'une mezzanine pour optimiser l'espace. Il dispose d'une aire de livraison spacieuse (13m), d'une grande porte sectionnelle, et d'un accès pour véhicules légers. Les bureaux préfabriqués (70m²), les commodités (WC, douche), et les installations neuves (électricité, toiture) garantissent fonctionnalité, confort et sécurité.
NICE EST (06300) est une localisation stratégique, bien desservie, bénéficiant d'un réseau de transports en commun performant (tram et bus), et facilitant les déplacements dans le centre-ville. Proximité des axes routiers: proximité des axes routiers majeurs comme l'autoroute A8 et la voie rapide, ce qui est un avantage pour la logistique et la clientèle.
Si vous êtes intéressés par ces locaux d'activités à louer à NICE CENTRE (06300) ou si vous souhaitez obtenir plus d'informations, n'hésitez pas à nous contacter pour planifier une visite et obtenir toutes les informations requises pour votre projet immobilier.
Régime Fiscal : T.V.A.
Dépôt de garantie : 3 mois de loyer HT/HC
Paiement Loyer : trimestriel
Honoraires : 20% HT du loyer annuel HT/HC à la charge du preneur
Prestations :
Accessibilité:
SNCF Gare de Riquier à 5 min
Tramway Lignes 1 et 2 à 5 min
Bus Réseau urbain
Route Basse corniche à 2 min
Route Port à 5 min
Les informations sur les risques auxquels ce bien est exposé sont disponibles sur le site Géorisques : www.georisques.gouv.fr
NICE CENTRE (06300) - CBRE vous présente à la location un local d'activités d'une surface de 560 m². Ce local d'activités à louer offre un emplacement central idéal, une grande surface de stockage, avec une belle hauteur permettant l'ajout d'une mezzanine pour optimiser l'espace. Il dispose d'une aire de livraison spacieuse (13m), d'une grande porte sectionnelle, et d'un accès pour véhicules légers. Les bureaux préfabriqués (70m²), les commodités (WC, douche), et les installations neuves (électricité, toiture) garantissent fonctionnalité, confort et sécurité.
NICE EST (06300) est une localisation stratégique, bien desservie, bénéficiant d'un réseau de transports en commun performant (tram et bus), et facilitant les déplacements dans le centre-ville. Proximité des axes routiers: proximité des axes routiers majeurs comme l'autoroute A8 et la voie rapide, ce qui est un avantage pour la logistique et la clientèle.
Si vous êtes intéressés par ces locaux d'activités à louer à NICE CENTRE (06300) ou si vous souhaitez obtenir plus d'informations, n'hésitez pas à nous contacter pour planifier une visite et obtenir toutes les informations requises pour votre projet immobilier.
| Étage | Type | Surfaces | Dispo | Loyer | Charges | Type de bailRév. annuelle |
|---|---|---|---|---|---|---|
| RDC | Activités | 560 | Immédiate | 171,43 m²/an HT HC | 3-6-9 ansIndice ILAT |
Régime Fiscal : T.V.A.
Dépôt de garantie : 3 mois de loyer HT/HC
Paiement Loyer : trimestriel
Honoraires : 20% HT du loyer annuel HT/HC à la charge du preneur
Prestations :
- 560m² dont 70m² de bureau en préfabriqué: polyvalence d'utilisation (stockage et gestion administrative)
- Belle hauteur + possibilité d'ajouter une mezzanine: amélioration de l'efficacité opérationnelle et de la capacité de stockage
- Aire de livraison de 13 mètres devant le local, pour VL: facilite les chargements et déchargements
- Porte sectionnelle 3m50 X 4m: isolation thermique et acoustique, sécurité adaptabilité aux grandes dimensions
- 1 WC et 1 douche: confort du personnel.
- Électricité neuve: conforme aux normes actuelles, sécurité et efficacité énergétique.
- Toiture neuve: meilleure isolation et une durabilité accrue.
- Surface RDC : 560 m²
- Surface terrain : 0
- Accès bâtiment : aire de manoeuvre
moyens porteurs - Nbr de portes plain pied : 1
Accessibilité:
SNCF Gare de Riquier à 5 min
Tramway Lignes 1 et 2 à 5 min
Bus Réseau urbain
Route Basse corniche à 2 min
Route Port à 5 min
Les informations sur les risques auxquels ce bien est exposé sont disponibles sur le site Géorisques : www.georisques.gouv.fr
Voir plus
Afficher les consommations énergétiques
Favoris
Exporter
Appeler
Contacter
Signaler cette annonce










