RCG Bordeaux est un cabinet de conseil en immobilier d'entreprise est située au cœur du quartier des Chartrons au 107 cours Balguerie Stuttenberg à Bordeaux. Cette agence propose un large choix de ...
En savoir plus

744 m²
HT HC
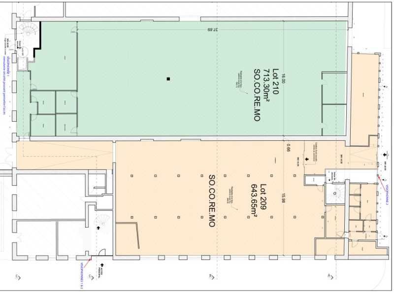
Location activité/entrepôt - 744 m²
Bordeaux (33000)
Dernière mise à jour : Aujourd'hui
A LOUER - LOCAL D'ACTIVITES 744 M² - BORDEAUX CHARTRONS
A BORDEAUX, proche des Boulevards dans le quartier des Chartrons, RCG vous propose à la location un local d'activités de 744 m² sur un site clos et sécurisé.
Hauteur 4.10 m, rideau métallique 2.5 x 2.5m, rackage sur 2 niveaux, radiateurs électriques et aérothermes.
Locaux sociaux et salle de repos. Bureaux cloisonnés avec faux plafond, courant faible. Fibre optique.
Possibilité de changer de destination
Accès PL
Parking extérieur en foisonnement
Impôt Foncier : 7224 €/HT/an
Régime Fiscal : T.V.A.
Dépôt de garantie : 3 mois de loyer HT/ HC
Honoraires : 30% HT du loyer annuel HT/HC à la charge du Preneur
Information sur le Bail :
charges locatives à la charge du preneur : 7188 euros HT/an Parking en foisonnement - si locataire souhaite des places attribuées : 1.000 euros/U/an HT
Prestations :
Accessibilité:
Bus A proximité des lignes 45/46
Tram A proximité de la ligne C - station "Grand Parc"
Autoroute A 10 minutes de l'accès Rocade sortie 4
Les informations sur les risques auxquels ce bien est exposé sont disponibles sur le site Géorisques : www.georisques.gouv.fr
A BORDEAUX, proche des Boulevards dans le quartier des Chartrons, RCG vous propose à la location un local d'activités de 744 m² sur un site clos et sécurisé.
Hauteur 4.10 m, rideau métallique 2.5 x 2.5m, rackage sur 2 niveaux, radiateurs électriques et aérothermes.
Locaux sociaux et salle de repos. Bureaux cloisonnés avec faux plafond, courant faible. Fibre optique.
Possibilité de changer de destination
Accès PL
Parking extérieur en foisonnement
| Étage | Type | Surfaces | Dispo | Loyer | Charges | Type de bailRév. annuelle |
|---|---|---|---|---|---|---|
| RDC | Activités | 744 | Immédiate | 107,53 HT/HC/m²/an | 8,05 m²/an HT | 3-6-9 ansILC Indice des Loyers Commerciaux |
Impôt Foncier : 7224 €/HT/an
Régime Fiscal : T.V.A.
Dépôt de garantie : 3 mois de loyer HT/ HC
Honoraires : 30% HT du loyer annuel HT/HC à la charge du Preneur
Information sur le Bail :
charges locatives à la charge du preneur : 7188 euros HT/an Parking en foisonnement - si locataire souhaite des places attribuées : 1.000 euros/U/an HT
Prestations :
- Structure pierre
- Charpente bois
- Hauteur 4.10 m
- Rideau métallique 2.5 x 2.5m
- Rackage sur 2 niveaux
- Radiateurs électriques et aérothermes
- Locaux sociaux et salle de repos
- Bureaux cloisonnés avec faux plafond, courant faible
- Fibre optique
- Possibilité de changer de destination
- Accès PL
- Site clos et sécurisé
- Parking extérieur en foisonnement
- Surface RDC : 744 m²
Accessibilité:
Bus A proximité des lignes 45/46
Tram A proximité de la ligne C - station "Grand Parc"
Autoroute A 10 minutes de l'accès Rocade sortie 4
Les informations sur les risques auxquels ce bien est exposé sont disponibles sur le site Géorisques : www.georisques.gouv.fr
Voir plus
Afficher les consommations énergétiques
Favoris
Exporter
Appeler
Contacter
Signaler cette annonce
