Avec près de 80 implantations en France, Arthur Loyd est le premier Réseau National de Conseil en Immobilier d’Entreprise. Nous vous accompagnons dans vos projets sur l’ensemble du territoire natio ...
En savoir plus

220 m²
Activité/Entrepôt à vendre - 220 m²
Petit-Couronne (76650)
Dernière mise à jour : Il y a 4 jours
A VENDRE - LOCAL D'ACTIVITE NEUF
A VENDRE - LOCAL D'ACTIVITE NEUF
Régime Fiscal : TVA
Honoraires : 5% HT du prix NV à la charge de l'acquéreur
Prestations :
Accessibilité:
Autoroute Au coeur d'une zone d'activité historique, rapidement accessible par la SUD III Accès A13 direction Paris, Caen, Le Havre à 5 min. Rouen Centre à 10 min.
Bus ligne 27 du réseau Astuce (Métropole Rouen)
Les informations sur les risques auxquels ce bien est exposé sont disponibles sur le site Géorisques : www.georisques.gouv.fr
A VENDRE - LOCAL D'ACTIVITE NEUF
| Étage | Type | Surfaces | Dispo | Prix(m²) | Charges | Honoraires | Fiscal |
|---|---|---|---|---|---|---|---|
| 1 | Bureaux | 51,51 | n.c. | n.c. | 5% HT du prix NV à la charge de l'acquéreur | TVA | |
| RDC | Sanitaires | 7,56 | n.c. | n.c. | 5% HT du prix NV à la charge de l'acquéreur | TVA | |
| RDC Stock. | Activités | 161,2 | n.c. | n.c. | 5% HT du prix NV à la charge de l'acquéreur | TVA | |
| Total Cellule | Activités | 220,27 | n.c. | n.c. | 5% HT du prix NV à la charge de l'acquéreur | TVA |
Régime Fiscal : TVA
Honoraires : 5% HT du prix NV à la charge de l'acquéreur
Prestations :
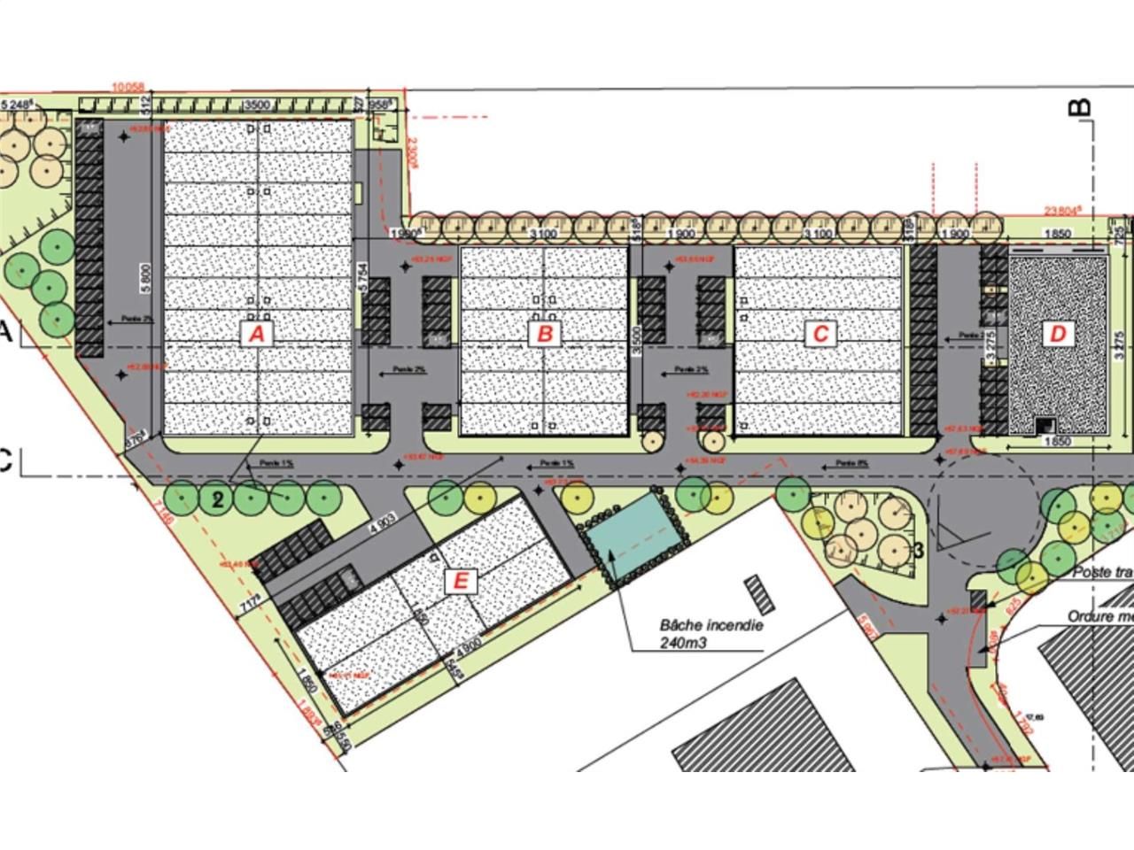
- A Petit Couronne, un programme neuf proposant un parc d'activité total d'environ 6 100 m2 répartis en 4 bâtiments d'activités.
- BATIMENT B proposant 6 lots de 220,27 m2 comprenant les aménagements suivants :
- Stockage d'environ 161,20 m2 :
- Dalle béton
- 1 Porte sectionnelle (hauteur 3.5m largeur 4m)
- Murs coupe feu 2 h entre entre les cellules
- Hauteur sous poutre 6.6 m
- Skydome
- 1 Porte piéton
- Livrée brut de béton et fluide en attente
- 1 étage de bureaux :
- Mezzanine métallique
- Huisseries en double vitrage en aluminium
- Livrée brut de béton en aluminuim
- Sanitaire en rdc
- Espace extérieur :
- 14 places de parkings VL privatives
- Site clos
- Portail coulissant électrique
- Local vélos
- Prix de vente : 1.450 euros / m2 net vendeur
- Surface RDC : 0 m²
- Ossature : Lamellée collée
- Murs périmétriques : Double bardage
- Couverture : Bac acier isolé
Accessibilité:
Autoroute Au coeur d'une zone d'activité historique, rapidement accessible par la SUD III Accès A13 direction Paris, Caen, Le Havre à 5 min. Rouen Centre à 10 min.
Bus ligne 27 du réseau Astuce (Métropole Rouen)
Les informations sur les risques auxquels ce bien est exposé sont disponibles sur le site Géorisques : www.georisques.gouv.fr
Voir plus
Afficher les consommations énergétiques
Localisation et transport aux alentours
Favoris
Exporter
Appeler
Contacter
Signaler cette annonce









