Avec près de 80 implantations en France, Arthur Loyd est le premier Réseau National de Conseil en Immobilier d’Entreprise. Nous vous accompagnons dans vos projets sur l’ensemble du territoire natio ...
En savoir plus

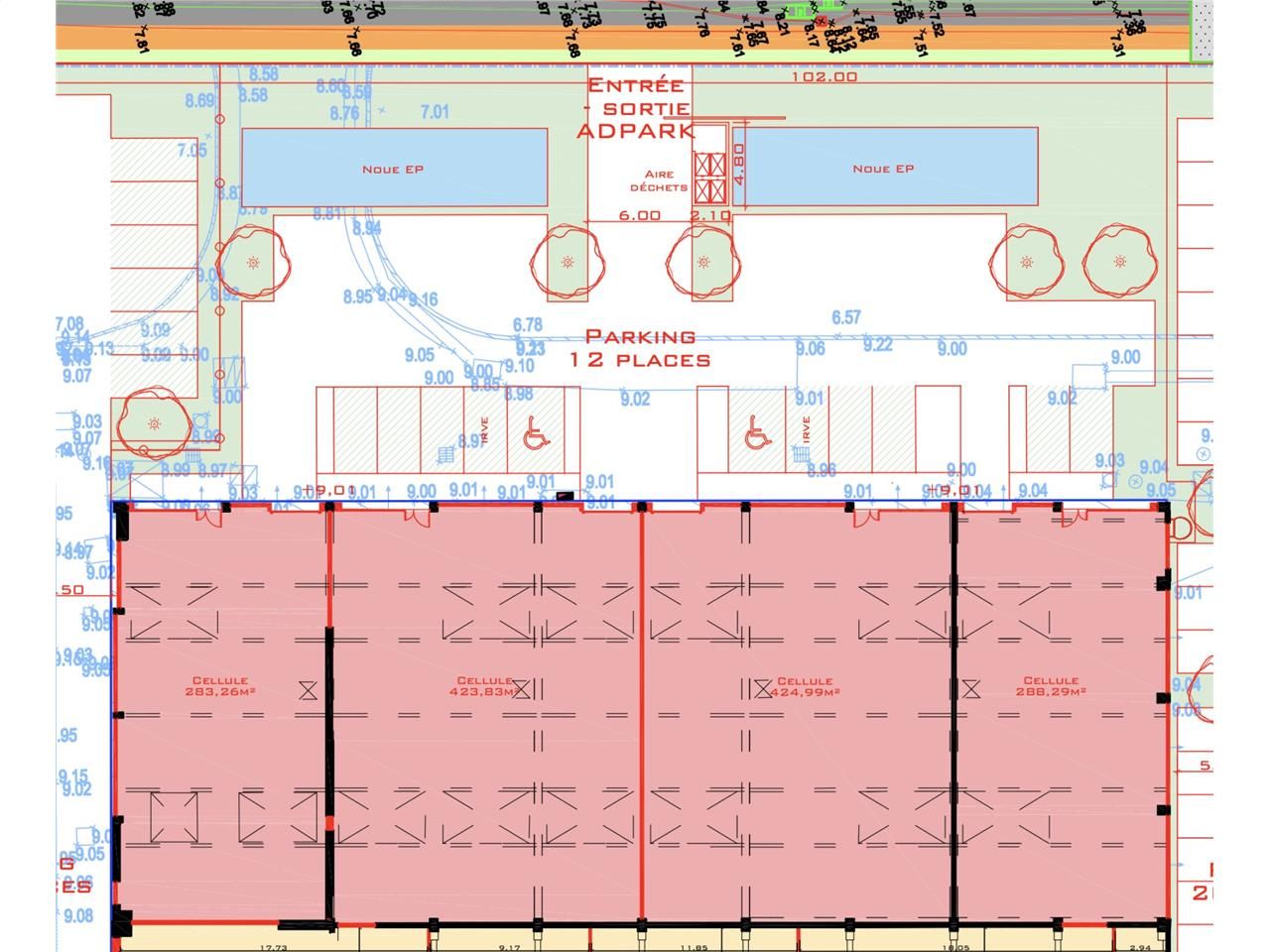
863 m² divisible dès 431 m²
Activité/Entrepôt à vendre - 863 m²
Petit-Couronne (76650)
Dernière mise à jour : Il y a 2 mois
Bâtiment d'activité de 1.420 m2 divisible en cellules à partir de 283 m2 - Ensemble immobilier neuf sur une zone industrielle entièrement réhabilitée
Impôt Foncier : 4,5 €//m2 /an HT
Honoraires : 6% HT du prix NV à la charge de l'acquéreur
Prestations :
Accessibilité:
Autoroute Accès rapide à l' A13 en direction de Paris / Le Havre / Caen
Route Centre-ville de Rouen à 10 km
SNCF à 10 minutes de la Gare SNCF Rouen Rive Droite
Route Ce projet emblématique bénéficie d'un emplacement stratégique aux portes de l'Agglomération et d'une proximité directe des principaux axes autoroutiers alentours et plus particulièrement d'un accès direct à l'A13 en direction de Paris et Le Havre
Les informations sur les risques auxquels ce bien est exposé sont disponibles sur le site Géorisques : www.georisques.gouv.fr
| Étage | Type | Surfaces | Dispo | Prix(m²) | Charges | Honoraires | Fiscal |
|---|---|---|---|---|---|---|---|
| RDC | Activités | 432 | 1216,81 m² net vendeur | n.c. | 6% HT du prix NV à la charge de l'acquéreur | ||
| RDC | Activités | 431 | 1219,07 m² net vendeur | n.c. | 6% HT du prix NV à la charge de l'acquéreur |
Impôt Foncier : 4,5 €//m2 /an HT
Honoraires : 6% HT du prix NV à la charge de l'acquéreur
Prestations :
- Site implanté au coeur de l'ancienne rafinerie qui a été entièrement réhabilité et dépollué depuis 2014 par la société VALGO sur Petit Couronne.
- Dans un ensemble immobilier industriel entièrement reconditionné, un bâtiment d'activité d'une superficie totale d'environ 1.420 m2 divisible par cellules à partir de 430 m2.
- Livré brut de béton, possibilité d'aménager des bureaux sur demande.
- Terrain en façade indépendant entièrement bitumé. Places de stationnement privatives en cas de division, au prorata des surfaces louées.
- Surface RDC : 1420,37 m²
- Haut. libre min. ss poutre : 5 m
- Nbr de portes plain pied : 4
- Ossature : Métallique
- Murs périmétriques : Parpaing
- Couverture : Bac acier isolé
Accessibilité:
Autoroute Accès rapide à l' A13 en direction de Paris / Le Havre / Caen
Route Centre-ville de Rouen à 10 km
SNCF à 10 minutes de la Gare SNCF Rouen Rive Droite
Route Ce projet emblématique bénéficie d'un emplacement stratégique aux portes de l'Agglomération et d'une proximité directe des principaux axes autoroutiers alentours et plus particulièrement d'un accès direct à l'A13 en direction de Paris et Le Havre
Les informations sur les risques auxquels ce bien est exposé sont disponibles sur le site Géorisques : www.georisques.gouv.fr
Voir plus
Afficher les consommations énergétiques
Localisation et transport aux alentours
Favoris
Exporter
Appeler
Contacter
Signaler cette annonce









