Prolocaux est un acteur de l'immobilier d'entreprise spécialisé dans la location, la vente et l'acquisition de biens professionnels en région.Présents depuis 2015 en Normandie, dans les Hauts-de-Fr ...
En savoir plus

854 m²
HT HC
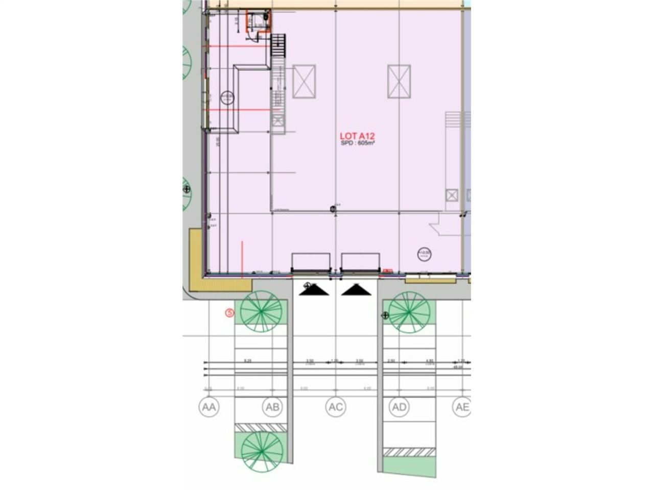
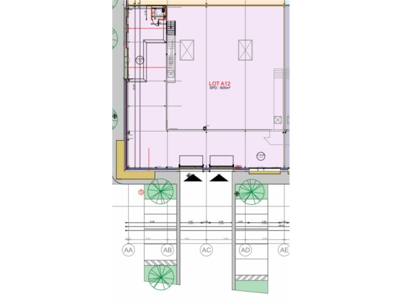
Location activité/entrepôt - 854 m²
Saint-Laurent-de-Mure (69720)
Dernière mise à jour : Il y a 3 jours
A louer en RDC et mezzanine local professionnel de 854m² (activité de 605m² et mezzanine aménagée en bureaux de 198m² et terrasse de 51m²) au sein d'un parc d'activité neuf.
regroupement possible de plusieurs lots : nous consulter
Ce bien à la location vous est proposé par PROLOCAUX
Les informations sur les risques auxquels ce bien est exposé sont disponibles sur le site Géorisques : www.georisques.gouv.fr
Agent commercial - inscrit au RSAC de GRENOBLE sour le numéro 950 956 961
Local d'activité 605m² en RdC et mezzanine 198m² (aménagée en bureaux) terrasse de 51m²
hall avec porte sectionnelle motorisée Htr 3m50
regroupage possible de lots : nous consulter
Local d'activité : sol dallage béton quartzé
Eclairage automatique downlights LED et châssis de désenfumage / vitrés en toiture
courants forts : armoire électrique
Hauteur sous poutres charpente métallique 7m40
WC normes PMR / points d'eau
Bureaux en mezzanine : plateau libre aménagé
Éclairage : pavés LED à détection
courants faibles et forts : en plinthes périphériques
sol carrelage / belles prestations
WC H/F norme PMR / point d'eau
Hsp 2m50
10 places de parking au prix de 200€HTHC/U/an
restauration à proximité
Proximité des gares de Part-Dieu (30km) et St Exupéry (6km)
Proximité aéroport Saint-Exupéry (6km)
Proximité A43 (2km)
Proximité des transports en commun (lignes JD251 / C201)
Disponibilité : Mi Octobre 2025
Loyer annuel : 92500 € HT
Charges annuelles : 8113 € HT
Type de bail : Commercial
Dépôt de garantie : 3 mois
Honoraires à la charge du preneur : 15 % HT
Voir plus
Afficher les consommations énergétiques
Favoris
Exporter
Appeler
Contacter
Signaler cette annonce










