L’agence CBRE Nantes conseille et accompagne les chefs d’entreprise dans leurs projets immobiliers quels que soient leur taille et leur secteur d’activité. Spécialistes de la transaction de bureaux ...
En savoir plus

3 420 m²
Loyer sur demande
Location activité/entrepôt - 3420 m²
Saint-Herblain (44800)
Dernière mise à jour : Il y a 4 jours
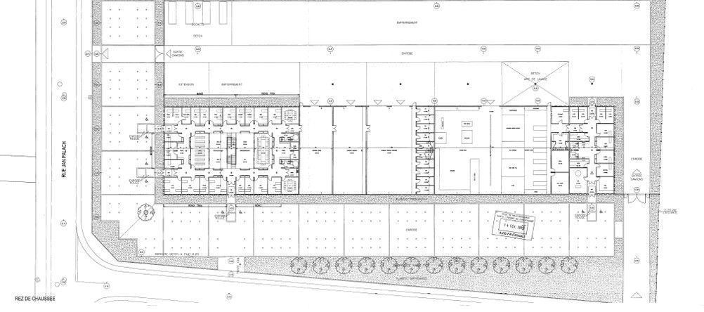
Situé à l'ouest de Nantes, à Saint-Herblain, au sein d'une zone d'activité attractive et dynamique, CBRE vous propose à la location un local d'activité comprenant environ 1 700 m² de bureaux et 1 670 m² d'ateliers, le tout sur un terrain en partie clos de 12 000 m². 3 portes sectionnelles et 140 places de parking viennent compléter l'offre.
le site est doté de 3 portes sectionnelles et les bureaux sont climatisés.
Impôt Foncier : 17,5 €/m²/an
Régime Fiscal : T.V.A.
Dépôt de garantie : 3 mois de loyer HT/HC
Honoraires : 15% à la charge du preneur.
Prestations :
Accessibilité:
Tramway ligne 1 arrêt François Mitterrand
Aéroport Nantes-Atlantique à 20 minutes
Les informations sur les risques auxquels ce bien est exposé sont disponibles sur le site Géorisques : www.georisques.gouv.fr
le site est doté de 3 portes sectionnelles et les bureaux sont climatisés.
| Étage | Type | Surfaces | Dispo | Loyer | Charges | Type de bailRév. annuelle |
|---|---|---|---|---|---|---|
| RDC | Activités | 1649 | Immédiate | 3-6-9 ansIndice ILAT | ||
| RDC | Bureaux | 1506 | Immédiate | 3-6-9 ansIndice ILAT | ||
| RDC | Bureaux | 265 | Immédiate | 3-6-9 ansIndice ILAT |
Impôt Foncier : 17,5 €/m²/an
Régime Fiscal : T.V.A.
Dépôt de garantie : 3 mois de loyer HT/HC
Honoraires : 15% à la charge du preneur.
Prestations :
- Puissance EDF : 380 v
- Hauteur sous ferme : 5 à 6.4 m
- 3 portes sectionnelles
- > 2 de 4.5 x 4 m
- > 1 de 3 x 3 electrique
- Bureaux climatisés
- Air de lavage extérieur
- Parkings
- 1649 m² d'activité environ
- 1771 m² de bureaux environ
- Surface RDC : 3420 m²
Accessibilité:
Tramway ligne 1 arrêt François Mitterrand
Aéroport Nantes-Atlantique à 20 minutes
Les informations sur les risques auxquels ce bien est exposé sont disponibles sur le site Géorisques : www.georisques.gouv.fr
Voir plus
Afficher les consommations énergétiques
Favoris
Exporter
Appeler
Contacter
Signaler cette annonce
