Besoin d'un conseil en immobilier ? Nous sommes une équipe dédiée à 100% à nos clients utilisateurs avec des services variés (stratégie immobilière, recherche immobilière, renégociation de bail, dé ...
En savoir plus

1 305 m²
HT HC
Location activité/entrepôt - 1305 m²
Pusignan (69330)
Dernière mise à jour : Il y a 2 jours
Bâtiment indépendant de 1 305 m² à louer sur un terrain fermé à Pusignan
Savills vous propose une opportunité rare : un bâtiment d'activités indépendant de 1 305 m², implanté sur la commune de Pusignan, à moins de 20 minutes en voiture de Lyon.
Ce bien bénéficie d'un environnement sécurisé et fonctionnel.
Son emplacement stratégique offre une excellente accessibilité, notamment grâce aux lignes de bus 32 et JD129, qui desservent directement la zone.
Impôt Foncier : 6000 €/
Régime Fiscal : T.V.A.
Dépôt de garantie : 3 mois de loyer HT HC
Honoraires : A la charge du preneur
Prestations :
Accessibilité:
Bus n° 32 "Pusignan - Bruyères" à 1 min à pied
Bus n° JD129 " Coquelicot" à 7 min à pied
Autoroute A 432 et D 332 à proximité
Aéroport Lyon-Saint Exupéry à 10 min en voiture
Les informations sur les risques auxquels ce bien est exposé sont disponibles sur le site Géorisques : www.georisques.gouv.fr
Savills vous propose une opportunité rare : un bâtiment d'activités indépendant de 1 305 m², implanté sur la commune de Pusignan, à moins de 20 minutes en voiture de Lyon.
Ce bien bénéficie d'un environnement sécurisé et fonctionnel.
Son emplacement stratégique offre une excellente accessibilité, notamment grâce aux lignes de bus 32 et JD129, qui desservent directement la zone.
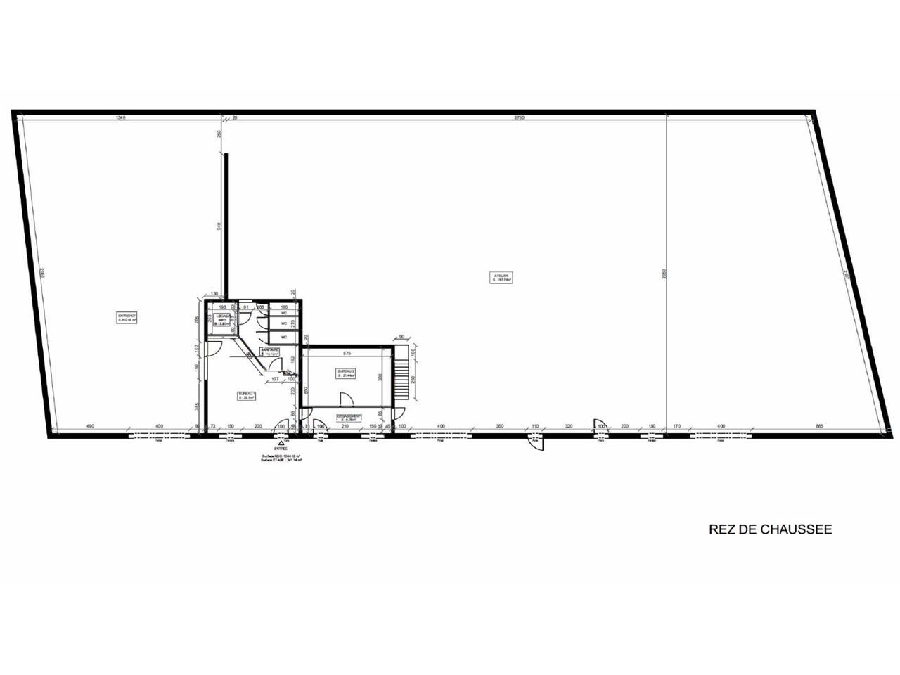
| Étage | Type | Surfaces | Dispo | Loyer | Charges | Type de bailRév. annuelle |
|---|---|---|---|---|---|---|
| Bureaux | 85 | Immédiate | ILAT Indice des Loyers des Activités Tertiaires | |||
| Mezzanine | Mezzanine | 159 | Immédiate | ILAT Indice des Loyers des Activités Tertiaires | ||
| RDC | Activités | 984 | Immédiate | ILAT Indice des Loyers des Activités Tertiaires | ||
| RDC | Bureaux | 77 | Immédiate | ILAT Indice des Loyers des Activités Tertiaires | ||
| Parkings | ILAT Indice des Loyers des Activités Tertiaires | |||||
| Total Cellule | Activités | 1305 | Immédiate | 61,3 m²/an/HT-HC | 3-6-9 ansILAT Indice des Loyers des Activités Tertiaires |
Impôt Foncier : 6000 €/
Régime Fiscal : T.V.A.
Dépôt de garantie : 3 mois de loyer HT HC
Honoraires : A la charge du preneur
Prestations :
- Bâtiment d'activité indépendant situé dans la commune de Pusignan, à environ 20 min en voiture de Lyon.
- Le bien est situé à proximité de stations de bus (lignes 32 et JD129).
- Activité -
- Charpente acier
- Structure acier
- Dalle béton.
- Hauteur : jusqu'à 6,5 m sous faîtage
- Chauffage : gaz et pompe à chaleur électrique
- Bureaux -
- Carrelage
- Cloisons vitrées
- Climatisation réversible
- Immeuble indépendant
- Surface RDC : 1061 m²
- Surface terrain : 2000
- Accès bâtiment : 1 porte sectionnelle motorisée 4 m x 4 m
2 rideaux métalliques motorisés 4 m x 4 - Chauffage : Aérothermes gaz
Accessibilité:
Bus n° 32 "Pusignan - Bruyères" à 1 min à pied
Bus n° JD129 " Coquelicot" à 7 min à pied
Autoroute A 432 et D 332 à proximité
Aéroport Lyon-Saint Exupéry à 10 min en voiture
Les informations sur les risques auxquels ce bien est exposé sont disponibles sur le site Géorisques : www.georisques.gouv.fr
Voir plus
Afficher les consommations énergétiques
Localisation et transport aux alentours
Favoris
Exporter
Appeler
Contacter
Signaler cette annonce






