Nous sommes Immprove, une grande équipe de plus de 200 experts en immobilier d’entreprise, implantés localement avec plus de 20 agences sur tout le territoire.Depuis 2009, notre proximité, notre ét ...
En savoir plus

836 m² divisible dès 217 m²
HT HC
LE DORIAN - Location activité/entrepôt - 836 m²
Paris 11 (75011)
Dernière mise à jour : Il y a 14 jours
Immeuble LE DORIAN
Immprove vous propose plusieurs surfaces d'activité au sein d'un hôtel industriel de bon standing, offrant un cadre fonctionnel et sécurisé.
Ces locaux bénéficient d'une belle hauteur sous plafond, d'un monte-charge et d'un quai de déchargement, idéals pour les activités de production et d'assemblage.
Implanté sur un site sécurisé et gardienné, l'ensemble dispose également de places de stationnement.
Une belle opportunité à saisir pour développer votre activité dans des conditions optimales.
Régime Fiscal : T.V.A. (20%)
Dépôt de garantie : 3 mois de loyer HT HC
Honoraires : 30% HT du loyer annuel HT HC à la charge du preneur.
Information sur le Bail :
Garantie à Première Demande exigée - correspondant à 3 mois de loyer TTC + 20 % / remise de la GAPD bancaire et d'un chèque de banque avant la signature du bail. Les seules activités autorisées dans les locaux construits seront des activités de caractère industriel et artisanal à exclusion de toute activité principale de commerce, d'exposition ou d'entreposage
Prestations :
Accessibilité:
Métro Faidherbe - Chaligny (8)
Métro Rue des Boulets (9)
Métro Reuilly - Diderot (1,8)
Métro Nation (1,2,6,9)
RER Nation (A)
Bus Faidherbe - Chaligny (46,86)
Bus Rue des Boulets (56)
Bus Reuilly - Diderot (57,215)
Bus Charonne - Voltaire (76)
Route Reuilly - Diderot (N11)
Les informations sur les risques auxquels ce bien est exposé sont disponibles sur le site Géorisques : www.georisques.gouv.fr
Immprove vous propose plusieurs surfaces d'activité au sein d'un hôtel industriel de bon standing, offrant un cadre fonctionnel et sécurisé.
Ces locaux bénéficient d'une belle hauteur sous plafond, d'un monte-charge et d'un quai de déchargement, idéals pour les activités de production et d'assemblage.
Implanté sur un site sécurisé et gardienné, l'ensemble dispose également de places de stationnement.
Une belle opportunité à saisir pour développer votre activité dans des conditions optimales.
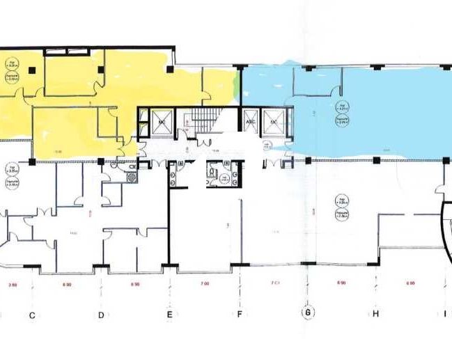
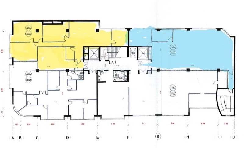
| Étage | Type | Surfaces | Dispo | Loyer | Charges | Type de bailRév. annuelle |
|---|---|---|---|---|---|---|
| 3 | Bureaux | 217 | Immédiate | 192 m²/an HT HC | 46,83 m²/an HT | Bail Commercial 3-6-9 ansselon l'indice du coût de la construction (ICC) |
| 2 | Bureaux | 229 | Sous option | 192 m²/an HT HC | 46,83 m²/an HT | Bail Commercial 3-6-9 ansselon l'indice du coût de la construction (ICC) |
| RDC | Bureaux | 390 | Sous option | 192 m²/an HT HC | 46,83 m²/an HT | Bail Commercial 3-6-9 ansselon l'indice du coût de la construction (ICC) |
Régime Fiscal : T.V.A. (20%)
Dépôt de garantie : 3 mois de loyer HT HC
Honoraires : 30% HT du loyer annuel HT HC à la charge du preneur.
Information sur le Bail :
Garantie à Première Demande exigée - correspondant à 3 mois de loyer TTC + 20 % / remise de la GAPD bancaire et d'un chèque de banque avant la signature du bail. Les seules activités autorisées dans les locaux construits seront des activités de caractère industriel et artisanal à exclusion de toute activité principale de commerce, d'exposition ou d'entreposage
Prestations :
- Immeuble industriel
- Accès véhicules légers
- Aire de chargement
- Parties communes de bon standing
- Ascenseur
- Monte-charge
- Gardiennage
- PC sécurité
- Locaux organisés en espace ouvert
- Espace lumineux et traversant
- Possibilité de décloisonnement
- Fibre optique
- Charge au sol : 1 tonne /m² sur 1er étage
- Charge au sol : 600kg /m² étages supérieurs
- Hauteur libre : 3.25 m
- Parkings disponibles : 1000 euros/U/an HT
- Surface RDC : 390 m²
Accessibilité:
Métro Faidherbe - Chaligny (8)
Métro Rue des Boulets (9)
Métro Reuilly - Diderot (1,8)
Métro Nation (1,2,6,9)
RER Nation (A)
Bus Faidherbe - Chaligny (46,86)
Bus Rue des Boulets (56)
Bus Reuilly - Diderot (57,215)
Bus Charonne - Voltaire (76)
Route Reuilly - Diderot (N11)
Les informations sur les risques auxquels ce bien est exposé sont disponibles sur le site Géorisques : www.georisques.gouv.fr
Voir plus
Afficher les consommations énergétiques
Localisation et transport aux alentours
Favoris
Exporter
Appeler
Contacter
Signaler cette annonce










