Avec 40 ans d''expérience sur le marché local, l''agence BNP Paribas Metz Real Estate peut répondre aux besoins de tout entrepreneur. Elle accompagne ses clients dans des projets d''agrandissement, ...
En savoir plus
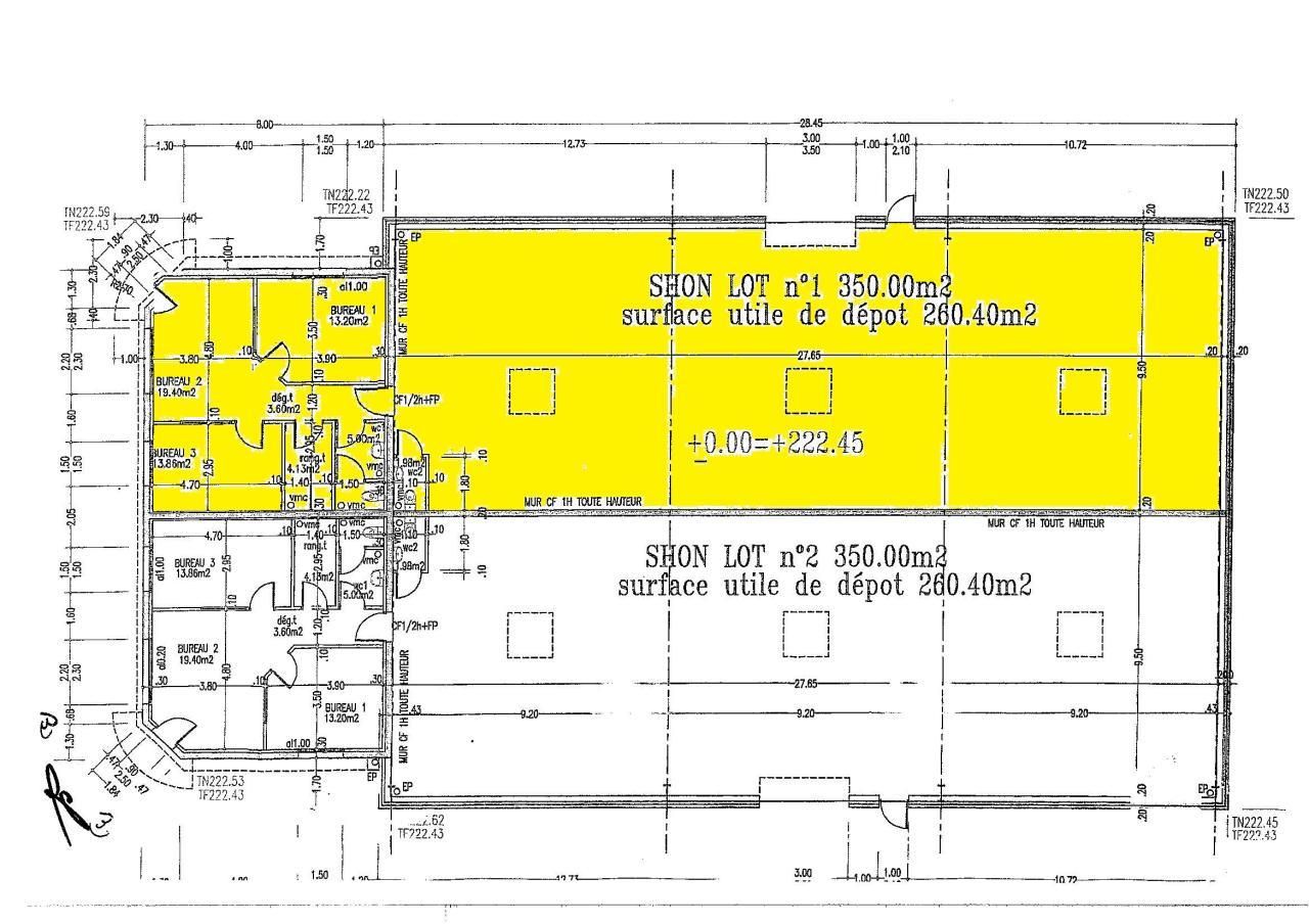
Location activité/entrepôt - 350 m²
METZ ACTIPOLE - 350 M² - A LOUER
Nous vous proposons un local d'activité avec 260 m²~ de dépôt et 90 m² ~ de bureaux, pour un loyer annuel HT de 33073.30 €.
Le btiment érigé sur un site clôturé fait partie d'ensemble de construction récente et de qualité.
Caractéristiques
Site clôturé
Portes sectionnelles
Bureaux aménagés
Situé au coeur de l'Actipôle de Metz, l'ensemble est à quelques minutes du centre-ville de Metz, à proximité des autoroutes A31 et A31 accessible par la rocade A315 ce qui rend la zone d'activités prisée.
Metz Actipôle est une zone industrielle et commerciale importante. De nombreuses entreprises et commerces, ainsi que des services divers tels que des restaurants, des hôtels et des infrastructures sportives y sont installés. Il est aujourd'hui un pôle économique dynamique qui contribue au développement économique de la ville de Metz.
Accessibilité
A4/431 rocade Sud
Transports en commun
Gare TGV de Metz : 15 min. ~
BUS : METTIS
Depuis 40 ans à Metz, BNP PRE TRANSACTION vous accompagne dans votre recherche d'immobilier professionnel, bureaux, locaux d'activité, dépôts et entrepôts logistiques, à Metz et en Moselle.
Disponibilité: ImmédiateHonoraires: 15% HT du loyer HT/HC. à la signature du bail
